
今天小美为大家分享的这个“高颜值”案例,来自广西南宁,业主小姐姐注重品质与环保,需要舒适、唯美的家居环境,喜欢极简轻奢风格,另外她希望定制一个能满足多功能收纳的衣帽间,解决家居储物、收纳功能需求。

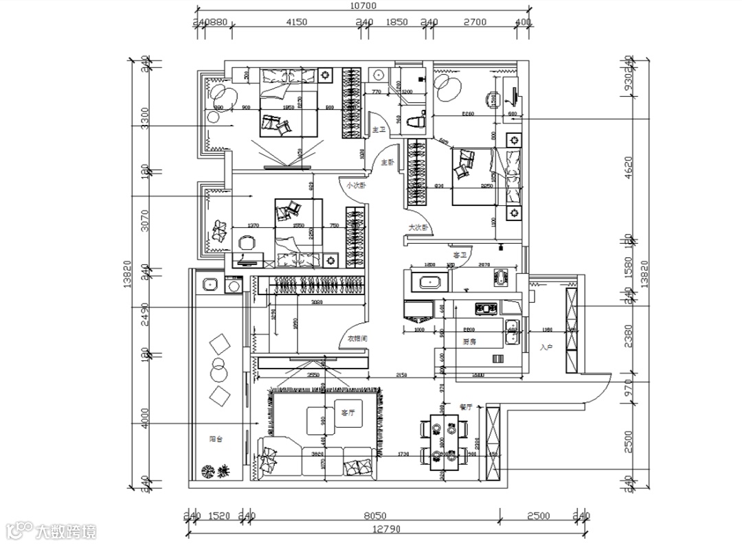
四室两厅130㎡,客餐一体,整个户型空间布局合理,格局方正,采光通风良好,客餐卧厨卫等各个功能区的面积大小都比较合理,居住体验便利,整体舒适度高。

玄关面积虽小,却用定制鞋柜打造出大量的收纳空间。鞋柜底部留空,摆放常穿的拖鞋;开放储物格用于存放钥匙、包包等物件,配合灯带的设计,给人一种亲近温暖的感觉。预留出优雅换鞋区,搭配时尚的换鞋凳和软垫,让玄关成为颜值担当,进门第一眼就被惊艳到。

客厅圆润的沙发带给人恰当好处的舒适感,背景墙的艺术挂画与书柜、茶几、一字型定制电视柜形成一个整体,地毯上的纹格图案也与客厅设计相呼应。在浅灰色的空间中加入有着较高明度的黄色家居装饰,搭配暖白的茶几台面和棕色柜体,显得精致而优雅。

温和的材质,弯曲的线条,简洁的造型,沉稳低调的色彩关系,简约和自然,给人一种简简单单的舒适感,整个空间格调精致高端,演绎极简轻奢美。

餐厅布局流畅,视感惊艳且吸睛。餐桌岩板桌面触感细腻,实木桌腿锤纹质感更时尚;嘉炫系列餐椅造型优雅别致,给业主稳稳的环抱式幸福感。

定制餐边柜,装点业主的美好食光,为酒类、餐具、茶具等预留充足的收纳空间;艺术吊灯为餐厅增添了仪式感。整体空间给人以视觉上的变化和舒适感,有颜值更添美味。

厨房的瓷砖地板与客餐厅的木地板形成鲜明对比,在视觉上界定了厨房和客餐厅区域,并采用岛台进行隔断。

设计师为开放式厨房设计了电器三件套、集成电器两种方案,电器上采用双开冰箱、消毒柜、蒸烤箱等。演示了如何在黑白灰的基调上,设计出有温度、实用又美观的厨房空间。

主卧空间利用色彩渲染出独特的氛围,释放出一种高级美感,将床、衣柜、床头柜、梳妆台、休闲椅和舒适睡眠组合,融入到整个氛围中。

床周身精细包裹,用柔软支撑,让你在舒适中安然入睡;定制大衣柜布局合理,内饰柔软而不腻;梳妆台设计感十足,视觉效果更轻盈。清新柔雅的灰、蓝色,活力十足的黄、绿色,让梦幻与现实结合。

大次卧布局合理,雅致而静谧,木色与金属线条的搭配,白棕色与黄蓝色的优雅共鸣,除了营造舒适、静谧的感觉外,也能满足正常的生活需求。

定制衣柜造型稳重而不失巧妙,一柜多用,多元储存,精致优雅的造型让卧室更加美观大气。窗边书桌点亮空间的整体调性,内饰柔软而不腻,平面形状、中性色调和温暖的木质肌理互相补充、形成对比。

小次卧在设计了衣柜、床与床头柜的同时,在原飘窗台区域利用巧妙设计,增加了书柜、办公椅等,极大提升了整个房间的储物功能。定制书柜的沉稳色调,不仅带来视觉上的层次感,更为空间增添了时尚优雅的气息。从灯光的多重布局,到木地板与地毯的运用,都能看到设计的巧思。

多功能房根据业主姐姐的需求,定制了兼具衣帽间与书房双重功能的多功能房。因为一家人的物品较繁多,因此这里就能容纳全家换季衣物,也能存放被褥、行李箱等。衣柜的一侧采用书桌书柜一体组合设计,书桌增加一排抽屉作为储物区,增强收纳置物需求。整体空间内外兼修、灵活混搭,突破想象力壁垒。
往期推荐
你家多少㎡?

