▼▼▼
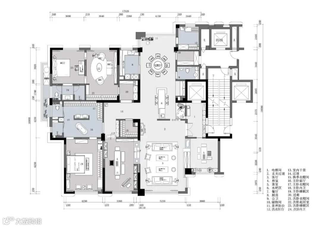
房屋信息

户型图
业主:陈先生
坐标:浙江·金华
面积:320㎡
户型:四室两厅
业主陈先生说:
“陈先生和他的爱人都很喜欢东方格调,多年的海外生活经历又让他们对现代简约主义感兴趣,所以我们选择‘万物’系列来打造他们家,最后营造出一个传统和当代相融的复合空间,满足他们对‘新中式’家的向往。”





曲美家居▼▼▼
房屋信息

户型图
业主:陈先生
坐标:浙江·金华
面积:320㎡
户型:四室两厅
业主陈先生说:
“陈先生和他的爱人都很喜欢东方格调,多年的海外生活经历又让他们对现代简约主义感兴趣,所以我们选择‘万物’系列来打造他们家,最后营造出一个传统和当代相融的复合空间,满足他们对‘新中式’家的向往。”




