今天介绍的全屋设计案例位于无锡市,是一个比较典型的横厅户型,整个布局动静分区,客餐厅空间相对较大,但中间需要留出一个较宽的过道才能保证动线顺畅。

最终,客厅的设计通过改变了原先电视背景墙阻碍过道的问题,使整个空间更为敞亮整体。我们一起来看看。
需求分析:
高知家庭,对生活品质有高要求
这套房子的男主人王先生是一位大学教授,特别喜欢看书和收藏书籍,他的妻子则是医务人员,女儿刚上中学。平时的夫妻二人有摄影的兴趣爱好,对生活有品质要求。
家庭结构:三口之家
兴趣爱好:喜欢看书、摄影
设计需求:热爱生活,舒适、现代、简约
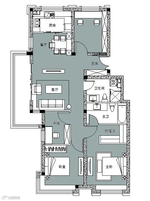
户型分析:
舒适大横厅+动静分区+合理动线

客厅分为就餐区、会客区,整个空间布局聚散得体,对称有致,让人感觉整个空间视觉开阔而不空荡,紧密而不烦乱。
卧室分为休息区、储物区、视听区、休闲区等,整个空间满足了业主不同生活需求,搭配北欧风格的饰品与色彩,端庄中有着别样的活跃感,明亮点缀中又不失稳重大气.
01 玄关 (关键词:储物)
入户门厅柜采用了灰木纹的柜体颜色,搭配荷花白,完美融入了整个空间。贴心为女主人设计的挂镜,功能性与外观为一体,也让整个空间更加宽敞明亮。

02 客厅 (关键词:简约、温馨)
客厅的设计改变了原先电视背景墙阻碍过道的问题,使整个空间更为敞亮。木隔板做的电视背景新颖出彩,成为客厅的点睛之笔,营造出轻松的氛围,整个人都不由得放慢脚步,享受室内的静谧与美好。

03 餐厅 (关键词:现代)
餐厅的设计讲究实用与美观,配色选择了与客厅一样的灰木纹,定制的餐边柜使餐桌内嵌式,节省了空间,凸显现代时尚的意大利风格。

04 主卧 (关键词:舒适)
主卧室的有度设计,诠释温馨、安静的精神气度,用暖橙色的色调点缀整个空间,让现代与传统的碰撞。

洗练的温润与安详,一壶茶水便可谈天说地一整日,室外有风景,室内也有自己创造出的美家。

05 主人书房 (关键词:办公、储物)
考虑到业主有收藏书籍和喜欢看书的爱好,通过定制书房,打造一个既能办公又能储物的空间。AB墙面做了一个色彩的跳跃,选用抹茶绿与暖黄色装饰物的色彩碰撞,让书房宁静舒心,适合学习办公。

06 女儿房 (关键词:甜美、成长)
次卧室女儿房的设计简约而不简单,给个人更多的思考空间,大气明快的暖色调,暖黄色和藕粉色的点缀着空间的每一处,意在打造一个成长的私人空间。充满阳光的午后,总能给人无尽的动力,平静之中又不失活泼与清新。

跳跃的装饰画和装饰小摆件,也是家人给予的陪伴,象征着“你的成长中有我的陪伴”。

07 女儿书房 (关键词:安静、学习)
考虑到进入初中后,女儿学习压力大,对书房有较高的需求,特别为女儿留出一间独立书房。房间面积不大,刚好可以放下一张书桌和一个书柜,干净简洁的设计排除一切干扰,让孩子专注于学习。

整个空间以灰色为基调,融入自然元素,让空间自然灵动。整体以舒适自在的现代风为主,配合曲美家居简练时尚的自在系列家具,减少多余的软装配饰,留下更多舒适与放松的空间。

