战疫期间,想装修怎么办?
疫情期间,各行各业都用自己的办法
在对抗疫情的同时,保证复工复产
而装修是难免与人接触的
想「足不出户」
又「想看效果图」怎么办?
别担心!春诺来帮你!

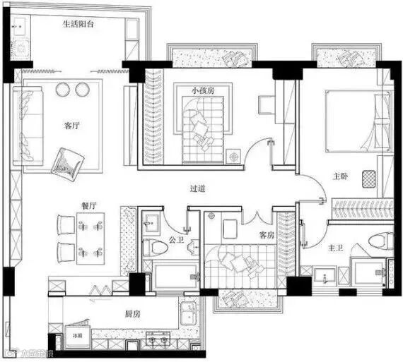
你只需要提供户型图
我们给你两个「零」
0元设计!0接触!







你提供户型图
我O元设计全屋家具+360度ⅤR全景效果图
零接触!!!
春诺家具全国各门店在线征集中!

春诺家具战疫期间,想装修怎么办?
疫情期间,各行各业都用自己的办法
在对抗疫情的同时,保证复工复产
而装修是难免与人接触的
想「足不出户」
又「想看效果图」怎么办?
别担心!春诺来帮你!

你只需要提供户型图
我们给你两个「零」
0元设计!0接触!







你提供户型图
我O元设计全屋家具+360度ⅤR全景效果图
零接触!!!
春诺家具全国各门店在线征集中!
