

规范的VOCs废气排放口是科学监测和评价排污情况前提,《大气污染防治法》明确规定排污单位要按国家规定设置排放口,不按规定设置是违法行为。那么国家有哪些规定呢?排放口又咋设置才符合要求呢?

VOCs治理

1、排放口设置“便于采集样品、便于计量监测、便于日常现场监督检查”的原则。
2、排气筒(烟囱)应设置监测采样孔、采样平台和安全通道。
3、采样孔位置应优先选择在垂直管段和烟道负压区域。
4、采样孔位置应避开烟道弯头和断面急剧变化的部位,设置在距弯头、阀门、变径管下游方向不小于6倍烟道直径处,以及距上述部件上游方向不小于3倍烟道直径处。对矩形烟道,其当量直径D=2AB/(A+B),式中A、B为边长。
5、采样断面的气流速度≥5m/s。
6、在选定的测定位置上开设监测采样孔,采样孔法兰内径应不少于100mm,采样孔管长应在100mm-200mm之间为佳,不使用时应用法兰盲板密封。
7、采样平台为检测人员采样设置,应有足够的工作面积使工作人员安全、方便地操作。采样平台面积应>6m2,周围设置1.2m以上的安全防护栏,采样平台面距采样孔约为0.5-1.5m。

符合以下任意一项条件的需安装自动监控设施:
1、列入设区以上人民政府生态环境主管部门发布重点排污单位名录或污染源自动监控建设计划的。
2、环评及批复文件中要求安装自动监控的。
3、排污许可证载明排放口应实施自动监控的。
4、排污许可证申请和核发技术规范、排污单位自行监测技术指南等要求监测频次为自动监测的。
5、废气烟囱≥45m的。
6、火电、钢铁、水泥、铸造、焦化、碳素、玻璃、陶瓷、氮肥、石化、有色金属冶炼、原料药制造、农药等重点行业工业企业的所有集中式废气排放口。
排放口设置要求:排放口应符合“一明显,二合理,三便于”的要求,即环保标志明显;排放口设置合理,污染物排放去向合理;便于采集样品、便于监测计量、便于公众参与监督管理。废水排放口设置在厂界外。
标志牌设置要求:对于污水排放口或采样点在厂界附近或厂界外的,标志牌就近设置在污水排放口或采样点附近醒目处;对污水排放口及采样点采用开放性通道与厂区外界相连通的,要根据通道长度合理设置标志牌。
鼓励有条件的企业在污水排放口附近设置电子显示屏,实时公布污水排放口水污染物在线监测数据及其他环境信息。
1.1.1.1排污口设置
本项目污染物排放口主要包括废气处理设施排放口,无废水外排。项目须对废气收集处理措施及固体废物暂存进行规范化建设,企业排污口设置主要包括以下内容:
1、废气排放
项目新设置的废气处理装置应根据相关规定排气筒(设置直径不小于75mm的采样口和采样平台,同时设置设置明显标志。
2、废水排放
项目无废水外排,厂区内设置的雨水排放口,满足雨水排放要求。
3、固体废物存储场
项目须对固体废物仓库进行规范化建设,并根据相关规范要求设置防渗、防漏设施。
4、标志牌设置
企业污染物排污口(源),应设置提示式标志牌,排放有毒有害污染物的排污口设置警告式标志牌。
标志牌设置在排污口(采样点)附近且醒目处,高度为标志牌上缘离地面2m,排污口附近1m范围内有建筑物的,设平面式标志牌,无建筑物的设立式标志牌。
1.1.1.2规范化管理
(1)公司生产过程中,公司应如实向环境管理部门申报排污口数量、位置及所排放的主要污染物(或产生公害)的种类、数量、浓度、排放去向等情况。
(2)本项目的废水排放实现清污和雨污分流,雨水设清下水排放口。
(3)废气排气筒设置便于采样,附近设置环境保护标志。
(4)固体废物贮存(处置)场所在醒目处设置标志牌。
根据环保管理要求,对污染源监督管理有三方面要求:
(1) 排污口规范化监测的要求;
(2) 污染物监测的要求
(3) 排污信息申报的要求
排污口规范化管理要求:排放口整治、排放口立标、排放口建档。
关于排污口规范化:
一、废水
1.实行雨污分流,合理确定污水口排放位置。
2.按照《污染源监测技术规范》设置采样点。如工厂总排放口、污水处理设施的进水和出水口。
3.应设置规范的、便于测量流量、流速的测流段。
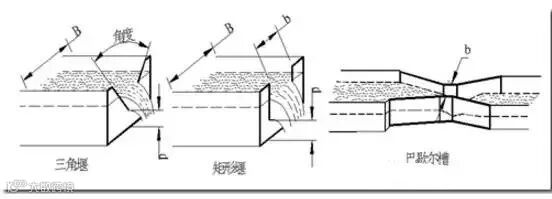
一般排污口可按照三角堰、矩形堰、测流槽等测流装置或其他计量装置,重点污染源要求安装在线监控设施,并于当地环保部门联网。



1. 排污口应符合“一明显,二合理,三便于”的要求,即环保标志明显;排污口设臵合理,排污去向合理;便于采集样品、便于监测计算、便于公众参与监督管理。
2. 建设项目需设置排污口,必须经负责审批环境影响报告书(表)的环保部门审查批准。凡需在水利工程管理范围内设臵废水排污口的建设单位,还应当向水行政主管部门提出申请,办理报批手续。环保部门在对环境影响报告书(表)审批时,必须明确允许设臵排污口的数量、位臵和规范化建设要求,并作为环保设施竣工验收的重要内容之一。
3. 凡在城镇集中式生活用水地表水源一、二级保护区、国家和省划定的自然保护区和风景名胜区内的水体、重要渔业水体、其他有特殊经济文化价值的水体保护区,以及海域中的海洋特别保护区、海上自然保护区、海滨风景旅游区、盐场保护区、海水浴场和重要渔业水域等需要特殊保护的水域内,不得新建排污口。在生活饮用水地表水源一级保护区内已设臵的排污,限期拆除。
4. 城镇集中式生活饮用水地表水源准保护区、一般经济渔业水域和风景浏览区内的水体等重点保护水域,从严格控制新建排污口。
5. 每家排水单位、企业在排水开口雨水、污水排水口设置辨识度高的标示牌。
二、排污口设置
1、哪些地方需要设置环保图形标志牌?
企事业只要排污,就须按照国家标准《环境保护图形标志》的规定,设置环保图形标志牌。各个标志牌的形式、规格、内容是有环保部门统一设置。
1)废气、废水、地下水等标志牌位置应距污染物排放口(源)及采样点较近且醒目处。当排放废气、废水含剧毒、致癌物及对人体有严重危害物质时应在排放口(源)设置警告性环保图形标志牌。
2)噪声:设置在排放源标志牌设置在距监测点较近处。标志牌上缘距离地面2米。
3)固废:一般固废设置在贮存(处置)场或采样点较近且醒目处。危废在临时贮存(处置)场或采样点较近且醒目处设置警告性环保图形标志牌。
4)辐射类:需在距离辐射源(放射源)外,辐射防护设施外的醒目位置设置警告环保图形标志牌。
污水、废气、噪声的图形要求

一般固废、危废、电离辐射的图形要求(具体请建设单位咨询环保部门)

2、环保图形标志辅助标志内容是什么?
1)环保图形标志牌的辅助标志上的内容、形式、规格是环保部门统一设置,统一组织填写,企业不得私自编、和填写,否则不符合规定。辅助标志字型:黑体字。辅助标志的内容一般包含:排放口标志名称、排污单位名称、编号、排放污染物种类、某环境保护局监制等。
废水

废气

标志牌要求长久保存、外观要好,清晰等。标志牌具体尺寸、格式,请查阅相关规范、要求。
三、环保图形标志请查阅生态环境部官网核对。



四、环境保护图形标志—排放口(源)(有国标参考:GB15562.1-1995)


五、环保标志、标识、图像



联系我们


来源:环保365 整理:环保莞家

声明 | 本号对转载、分享、陈述、观点保持中立,目的仅在于行业交流,版权归原作者所有。如涉版权和知识产权等侵权问题,请与本号后台联系,即刻删除内容处理!点击下方“阅读原文”访问“怡美环保·水处理”官方网站,了解更多...


