
衣帽间设计:如何设计实用,如何设计美观?
下面我们先来看看这些漂亮的衣帽间
▼
看了以上图片,那么问题来了
为什么看了这么多的收纳技巧
依然整理不好一个家?
为什么这些很棒的设计方式
无法搬到我们个人的家庭装修中来呢?
衣帽间该如何布局呢?
布局衣帽间的设计依据是什么呢?
衣帽间怎么设计才会实用,才会美观呢?
接下来小编为您分享一些方案步骤
布局衣帽间第一步
独立式衣帽间。布局的第一个重点,也是要坚守、不可妥协的重点:
我们活动的尺度。面向于衣帽间,我们要进行站立、伸手、抬臂、臂展、蹲姿、转身的活动。
衣帽间,采取什么样的平面布局,或者是否能做某种布局。
并非取决于哪种布局好,哪种布局不好。哪种布局空间利用率大,哪种布局浪费多。
而是取决于:
留出我们的活动空间来以后,还有多少多余的空间,供我们用来储藏、储物。
上图俯视图中:人体正常走动,横向空间-400到+400,再到+600之间。
即:横向宽幅800mm---1000mm。
在平面设计中,人体活动所需要的空间,就是我们设计衣帽间的“依据”。
例图▼
我们需要一个可以转身的空间,用来容纳我们的这些活动。这是布局衣帽间的第一步。
考虑到衣帽间的镂空设计。我们完全可以把这一空间设置成900mm*900mm。
由例图:2017-0503我们可以发现:
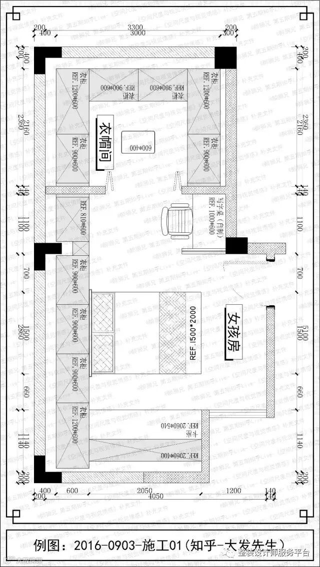
标准式“L”形衣帽间(例图:2017-0503-S1),净空不小于1500mm*1500mm。
标准式“二”形衣帽间(例图:2017-0503-S2),净空不小于2100mm*1000mm。
混合式“L”型衣帽间(例图:2017-0503-H1),净空不小于1500mm*1200mm。
混合式“L”型衣帽间(例图:2017-0503-H2),净空不小于1200mm*1500mm。
由例图:2017-0502我们可以发现:
标准式“C”形衣帽间(例图:2017-0502-S3),净空不小于2100mm*1600mm。
(如果拿掉“C”形的底部,衣帽间即变身为“II”字形衣帽间)
混合式“C”形衣帽间(例图:2017-0502-H1),净空不小于1800mm*1600mm。
混合式“C”形衣帽间(例图:2017-0502-H2),净空不小于1500mm*1500mm。
600mm的柜深,可以用来储藏被褥、可以挂衣服,我们称之为标准柜深。
*注:600mm是柜深的一个标准规格;实际的柜子箱体深度为570mm,柜门22mm。
在我们实际的装修设计工作中,并不是每个衣帽间都能:既满足活动空间要求,又能布局标准柜的柜深。
布局衣帽间第二步
当衣帽间尺度,不能同时满足人体活动和标准柜深的时候,优先牺牲柜子深度,保留人体可活动空间。
如果不这么做,能想像一下:横着进衣帽间,无法转身,只能倒退出来是个什么体验么?
即使一部分柜深被牺牲掉了。所保留的柜子深度,应尽量保持在300mm以上。用来储藏、存放其他需要层板承托的物品。比如包包、储物篮、叠放整齐的衣服。
不管采取“L”型,还是“II”型,或者“C”型,都要保持留有一个不小于900mm*900mm的活动空间。
以上,是比较常见的小巧的“标准式衣帽间”、“混合式衣帽间”,所需要最小的空间尺寸的分析。
在我们的装修设计工作中,为了更加简洁、出效果的空间感受,或者为了更高的利用率:
需要将标准矩形衣帽间,改造成其他形状,以实现多方面的利用。
实现更高的利用率。
衣帽间布局、卧室布局,永远围绕着“尺度”展开。多余的空间就是浪费的,我们可以划给其他的功能空间。
不管我们怎么设计衣帽间。“不小于900mm*900mm”的活动空间、是布局的第一步。
对于其他的功能空间设计。我们一样需要留出“足够转身”的活动空间来。
为此,我们自己也做过一个小小的试验,并分享在了知乎Live中。
由这个试验,我们分析了各种生活环境下,所需要的“通过尺度”
大家可也以自行完成这个试验。不管是自购房子,还是租的房子,都能完成这个试验。
布局衣帽间第三步
衣帽间依墙而建。
布局设计时,所有墙体都可视为:衣帽间潜在的设计对象。
在功能设计中,活动空间之外的空间,都是浪费的。
尤其是满足了生理活动空间,又满足了视觉情感空间。再多余的空间尺度,纯属浪费。
我们可以通过设计的方式,将这些多余空间划在靠墙一边;依墙而作储物柜。
或者布置陈列家具。
这样我们就有了更大的衣帽间。
做不好所谓的“收纳”工作。很可能是:设计的储物空间不够用,甚至是设计的不合理。
在前些年的设计工作中。讨论储藏家具设计。
我的顾客总跟我要“大格子”。他们的理由依据是:现在想不起放什么东西来,万一放个“大件”呢?格子小了肯定放不下?
层板能够承托更多的物品。一味的追求“大格子”。
会让我们的“小件”无处存放。
即使一时的舍弃一些生活用品,也无法舍掉家庭成员,其他的生活需求、娱乐需求、工作学习需求。
作为成年人,我们可以过着如艺术家一般的生活:清净、无为、心外无物,断舍离……。
但是先生和孩子呢?
难道孩子不需要玩具么?难道孩子的成长,不需要不断的换代玩具和衣物么?虽然先生可以委屈一下下。
布局衣帽间第四步
尽量保持完成面的整洁。尽量保持完成面,为简单的几何图形,尤其是活动空间的形状。(比如矩形、比如圆形和椭圆形)
有时候,我们一谈到衣帽间,大家就想到在衣帽间里
放置一件沙发凳。
设计成:步入式——衣帽间。
是否能布局“步入式——衣帽间”,依然取决于衣帽间的尺度。
下图,我们就“步入式——衣帽间”可行性,画几张图片▼
我们以500*800的衣帽间沙发凳为例:
沙发凳周围预留出800mm的通过、转身空间。
(前面提到预留900mm的转身通过空间,为什么这里只留800mm?可参加我的知乎Live中提到的那个试验。事实上,这里就算只留700mm,依然能够满足步入式衣帽间的需求。)
这是一个比较理想的,标准式的步入式衣帽间。
内部净空尺度3600mm*2700mm。
那么,小一点的空间能不能做步入式衣帽间呢?
例图:2014-1112 大概是最小的,全标准柜深的“步入式-衣帽间”了。
例图:2017-0504
在保留“步入式”的空间尺度前提下,衣帽间所需的最小空间尺度与布局方式分析。
“标准式”(例图:2017-0504-C-S2),2800mm*2100mm。
“混合式”(例图:2017-0504-C-H1),2800mm*1800mm。
“混合式”(例图:2017-0504-C-H2/H3),2500mm*2100mm。
“混合式”(例图:2017-0504-C-H4),2200mm*2100mm。
SO,衣帽间采取何种布局的前提,更加取决于空间的尺寸、结构,以及开门方向。
在满足更大尺寸的前提下,我们才有多余选择的空间。
我们也总有办法,把我们所遇到的空间,改造成“步入式-衣帽间”,不是么?
除了独立的衣帽间布局。还有独立的鞋帽间布局。
也要遵守:可活动空间,最小满足转身活动的需求。
布局衣帽间第五步
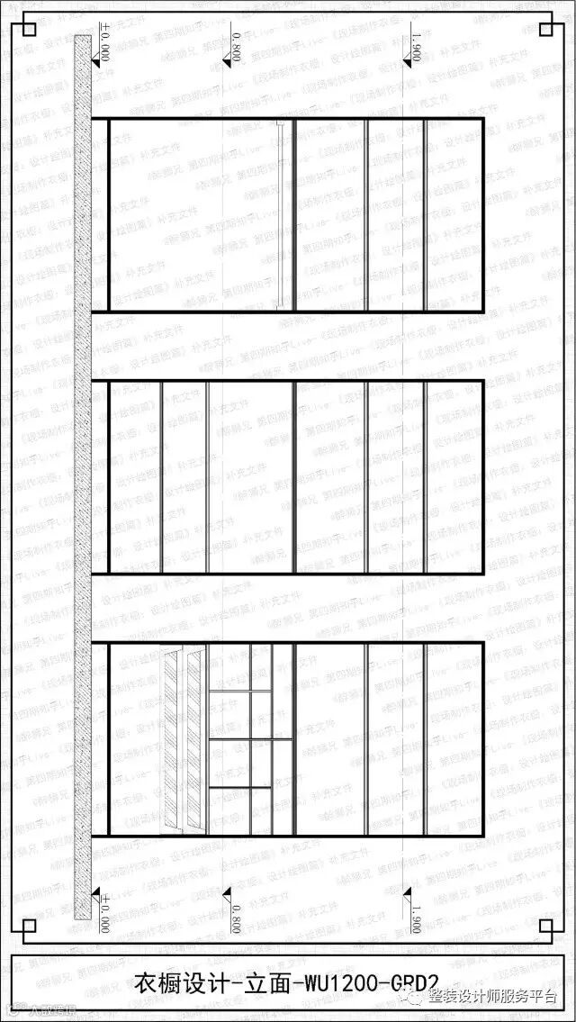
衣帽间的衣帽柜,在设计时,尽量的采用标准单元组合的形式。
无论我们采取定制,还是采取自制。又或者,购买成品单柜。
如果有一个固定的尺寸模数那就再好不过了。省掉了我们每看一件家具,都要详细的去问能不能放的下的问题。
同时,标准的单元柜,更加方便我们采购升级所需的:衣帽间拉篮、衣物篮、裤架、转角架、抽屉等设备。
常用的衣帽间单元柜,平面模块尺寸:(面宽*柜深)
450*600、600*600、900*600、1200*600
其他不常用的标准单元模块尺寸(面宽*柜深)
800*600、1000*600、1100*600
采取这标准单元模块,升级设备时候较为容易。也尽量避免开“非标定制”。非标定制不但花钱多,而且周期长。
有时候,我们排满标准单元后,会发现距离墙边、或者距离房顶还有几公分的距离。
有这个空隙,那么恭喜你,就太好了。
按照图上,紧紧的挨着墙体,很可能会出现:柜子无法推移进去的可能,又或者磨墙、磨顶。
有30mm到100mm的缝隙,正好可以避免这个问题。将柜子移动到位以后,采取封边的方法。装饰一下,就OK了。
布局衣帽间第六步:立面
为什么有的衣帽间设计出来实用,有的衣帽间设计出来不实用?
请大家想象一下:回到家,我们喜欢随手将东西放在哪里
包包、钥匙串、购物袋新买的食物、衣物、还有快递小哥刚送来的快递。
最长放的地方是哪里?
地面?挂墙?打开柜子放柜子里?
按照大多数人的习惯,是喜欢将这些东西,放在入户鞋柜的桌面上、餐桌桌面上、橱柜台面上、写字桌桌面上。
是的,我们最喜欢在桌面上操作。也最喜欢将物品,放置在桌面高度的承托板上。
因为一伸手,就能拿取得到。
随手就可以放置。
比桌面再低一些,我们可能要躬身、弯腰,才能进行储藏操作。
在衣帽间立面布局设计中,与桌面等高处,设置一层托板。就会给我们带来更多的“桌面”空间。
这条与桌面等高的等高线,在距离地面720mm——840mm之间。我们可以任意选取一个数值,作为设计的参考模数数值。
(选整数,不要选个位数非0的毫米数,不好画图、干活不好下尺。)
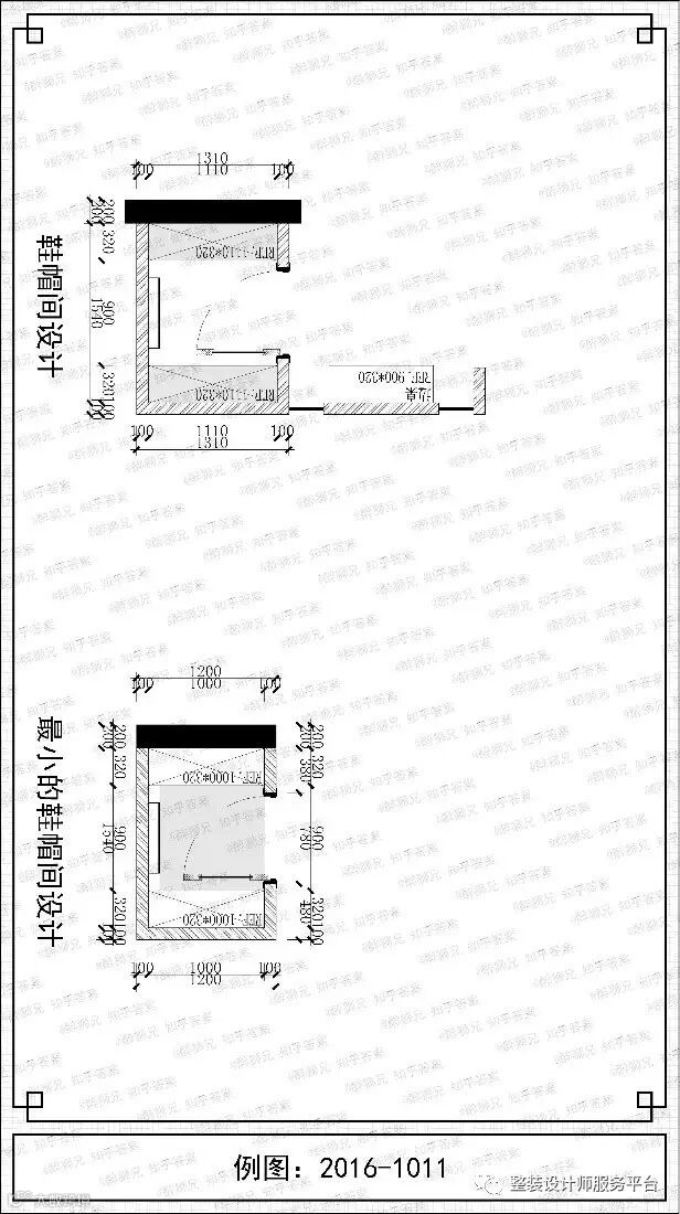
下图右下角,女士伸手拿取最高处的物品。一伸手,最高可以拿取到1900mm高处的物品。
经过试验测试我发现,我们国家大多数男人、女人,也是如此。
一伸手就能拿到最高处的物品,大概在1900mm左右。
再高了,我们就要踩在凳子上了。
从理论上来说,这一点都不麻烦。
在生活中,真的需要踩着凳子才能拿到的物品。
我们一般都很少去拿取。或者干脆把经常拿取、放置的物品,放置在:不需要踩凳子,就能拿得到的地方。
尽管我们认为:搬凳子,踩在脚下很容易。
但是需要踩凳子才能存放的物品,它的触碰几率已经被甩开了一条线;这条线就是:距离地面1900mm的等高线!
低于这条线,我们一伸手就能拿到。
高于这条线,我们就要踩凳子了。
这条线以上的空间,更加适合储藏、存放不常用的物品。比如换季的被褥,比如陈旧的衣物。
在衣帽间立面布局设计中:1900mm等高处,设计层板(托板)用来区分一伸手就能拿到物品的空间,和踩着凳子才能存放物品、拿取物品的空间。
还是我汉语博大精深呀。“拿取”、“存放”、“置物”。就是比“收纳”有画面感,语义更清晰呢……!
作为屌丝设计师,俺真的不习惯,用这种语义不清的“舶来词”……!
900mm标准单元柜模块
更多的“与桌面等高的台面”,使得我们的储藏、存放工作更加方便。
知道大家PC网页看图不方便,但是若是手机客户端,点击图片,就会发现…………!
手机横过来,发现没有?
以上几张,根据大家从各处搜来的图片,制作的1200mm单元柜模块。
布局衣帽间第七步:立面
在同一个空间内的衣橱,特别是无门衣橱,尽量的让层板(托板)保持在同一水平线上。
标准单元模块,使得单元柜的面宽统一。或者呈一定的比例。
层板、托板,统一高度,会使得视觉上更加整洁大方。
这是设计师为了出效果?
不实用?
生活中,我们习惯了一定的桌面高度,一定的储藏高度后。会形成固有的顺手拿取、顺手存放的习惯。
比如顺手开抽屉,比如顺手挂衣服,比如顺手打开柜门、顺手放置物品、顺手拿取物品。
层板、托板设置在统一的高度。会更加符合(顺应)我们肢体,所形成的习惯。
反而,高低不平的储物格,却要花费我们的视觉精力、肢体精力耐心的去寻找。去适应不同高度和矮度。
木工做的衣橱完成后
我们再来观察一些著名设计师设计的衣帽间▼
可以发现:横向线条和纵向线条,都近似于绝对的,去保持了统一。
统一面宽和统一托板、层板的高度。
衣帽间设计,从效果、“视觉美感”来谈,灯光很重要。
背景灯光,会让空间视觉,显得更有广度、深度。
有时候,我们设计工作中遇到的情况,并非图片上展示的这么整洁和完美。
比如遇到柱子,比如遇到承重墙,又比如坡屋顶。
那么,在这种环境中:应该优先保证,衣帽间高度,顶部高度略高于我们的身高。
这样,当我们进行储藏、存放工作的时候,不至于需要躬身、弯腰才能进行储藏操作。
尤其在自制衣橱设计中,有时候设计出来,看上去较为精致,有的看上去,一看就是木工打的柜子。在设计工作中,一些技巧可以让我们做得这件工作,体现的价值更高。
柜身侧剖面结构分析(01)
柜身侧剖面结构分析(02)
为什么我们设计的衣橱,就无法像Houzz、pinterest、以及Archiproducts上一样漂亮呢?
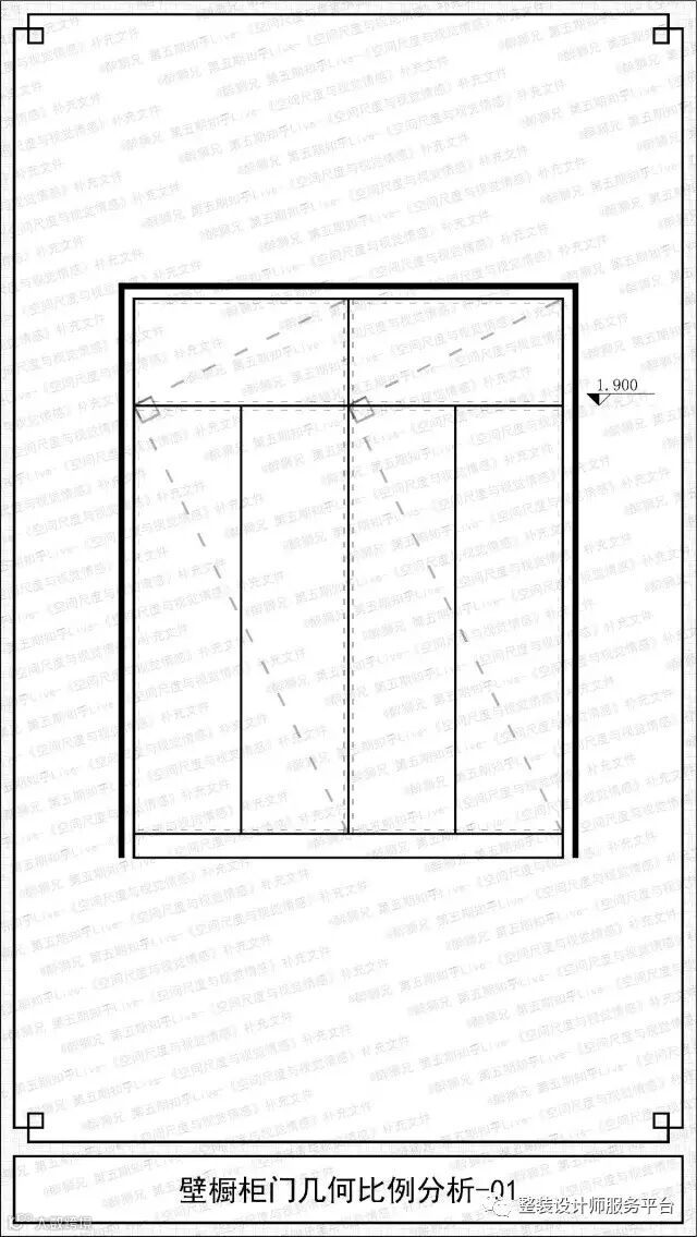
布局(设计)衣帽间第九步:线条比例、几何比例
这就涉及到另外两个概念:
我们看到某些建筑、某些风景、某些家具或者人。
在潜意识里,我们总是试图,与已经认识的世界,建立某种联系。
试图将这些新认识的事物,与我们已经掌握了的知识,建立某种关联。
尤其是触动了我们的视觉情感、触觉情感、嗅觉情感、听觉情感、记忆情感……!
这些柜子该做多高呢?
建筑设计多高、家具设计多大,从来都不是凭空蒙出来的数值。即使空间尺度允许我们无限的发挥;设计一样需要恪守着自己的尺度。
我们试图为其建立某种联系,线条上的、色彩上的、格局上的……!
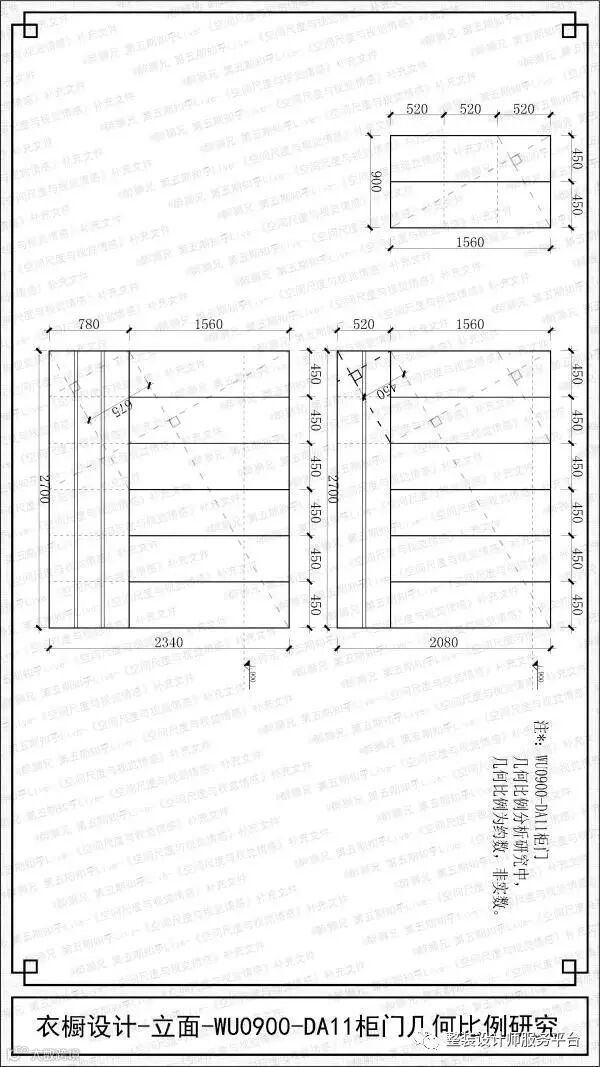
真的是要柜门通顶才好看?
有些时候,我们试图在这些家具身上找到某种联系。即使这种关联是最简单的。
用几何黄金矩,对柜门的高度进行分析。
工作中用到的并非只有一种几何比例。它可以是很多种几何比例关系。
就如提问所问到的,如何出效果?
正是因为我们的潜意识,试图找到某些联系,驻留更多的目光,更长的观赏时间。
值得观赏的时间越长,就越有“效果”。
在光线较强的空间环境,选用灰度较深饰面材料。可以彰显家具的沉稳和空间背景的轻盈、包容度。
在光照较差的环境里,选用灰度较浅、反光较强的饰面材料,可以杜绝空间的沉闷。
但无论选择哪一种材料,“自然感”,自然的花纹,是选材的首位。其次是环保,再次是加工的难易程度。
相关视频
HAWA Folding Concepta 25 瑞士頂級摺疊收納門五金
HAWA-Folding Concepta 25 Deutsch瑞士頂級摺疊門收納櫃五金
完

欢迎关注“整装设计师服务平台”公众号:Iwoodtimes
(或回到顶部点击“整装设计师服务平台”关注)
小编个人微信
18482190131(手机号也是微信号)
18072812340(手机号也是微信号)
17858962799(手机号也是微信号)

