

传播整木文化 树立行业品牌

本案住宅空间,空间较宽且采光条件良好,因此设计师围绕建筑自身的这一优势展开一系列设计,在设计过程中充分分析使用功能与视觉效果之间的平衡关系,并努力做到古为今用。
项目概况
设计师将本案取名为“游园惊梦”,空间正如其名,意在将戏剧化的美学概念植入设计的表达之中,将中式传统古典建筑元素的精华所在与现代生活的时尚气息融为一体,并将空间造型的比例、尺度及材料质感与色彩搭配和谐地组织在一起,力求在整个设计中达到合理创新,并且彰显时代精神与人文品质的时尚标准。
项目名称:游园惊梦
项目面积:1200平方米
部分效果展示

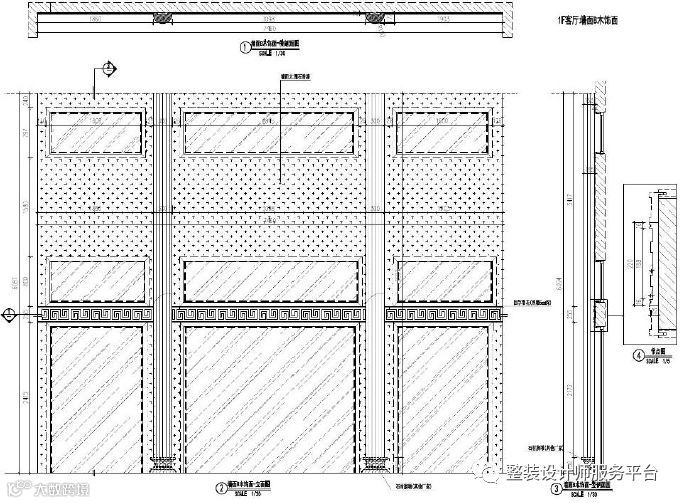
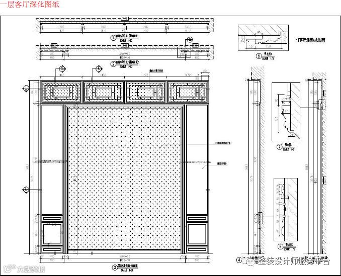
一层客厅▼


一层客厅实景图▼

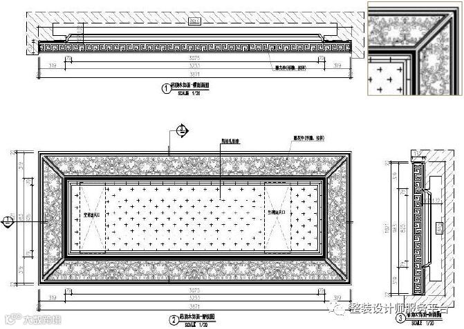
一层餐厅吊顶▼
一层茶室吊顶▼

一层老人书房▼

细节讲解
01

玄关背景分为两层式设计,外面一圈线框,里面暗藏灯光,在灯光的照射下,背景更显大气,设计的难点在于雕花,中式雕花追求立体感,还要注意拼接点的位置,如何对起来,又尺寸刚好,需要设计仔细核算,在中间多出变化,才不会被看出来,改变了花型。
02

设计吊顶的阴角线的时候要充分考虑现场情况,现场的木基础有可能出现几个毫米的弯曲误差,那么就线条下面需要设计收口线,或直接顶线上加出来折边效果(如图)。

03

顶部花格可以做成活动格式,墙纸先安装,花格可以采用侧面锁钉的模式来安装。
中间山水石材归属于石材公司,故图纸只有填充,没有山水纹体现。
04

由于拱形线条的外径和内径的相差,回字纹不能再设计成直线条了,这个需要首先看外径和内径周长相差的总尺寸,再算好有多少个回字纹,就可以知道每个回字纹外宽和内宽的相差尺寸了,在采用阵列工具排列,最后再来调整下面垂直的那一排的尺寸。
以上图片内容均出自青木大讲堂出品的
《整木定制设计师成长手册—案例实战详解》

全书共含十大案例
每个案例平均40页篇幅详细讲解
讲解内容各不相同,涵盖实战中的种种问题
对应美式休闲、新古典、经典美式、摩登法式风格、新古典混搭、新中式、现代美式、法式风格、轻奢风格、现代简约等十大风格
本案例的主要内容
1.设计理念分享
2.一层深化图纸
1)玄关深化图纸
2)客厅深化图纸
3)过道博古架深化图纸
4)餐厅深化图纸
5)中西厨深化图纸
6)茶室图纸分析
7)老人房背景设计
8)老人房书房设计
3.地下室深化图纸
1)过道装饰柜
2)次卧一衣柜设计要点
3)酒窖详解
4)影视厅图纸详解
5)多功能区吊顶图解
4.二层深化图纸
1)起居室设计要点
2)主卧室深化图纸
3)儿子房设计解析
4)女儿房设计解析
5.结尾语
因篇幅有限内容未能完整呈现
本书特此限时7折出售
另外
原价1000元含CAD电子版的图集
现半价出售
只需500元
需要的用户请移步青木微店进行购买
折扣来得快去得也快
千万别错过了哦
完

欢迎关注“整装设计师服务平台”公众号:Iwoodtimes
(或回到顶部点击“整装设计师服务平台”关注)
小编个人微信
18482190131(手机号也是微信号)
18072812340(手机号也是微信号)

