所有关注保驾护航的朋友
99%都是各行各业有身份的人
现在房子当中有都一些凹凹凸凸的角落
这些空间就像鸡肋一样,
食之无味,弃之可惜。
毕竟这个房子里面的每一个空间都是高额房价的一部分!
辣么,许多业主or许多设计师也就会把这些部分都利用起来啦
当然更好地利用起每一个储藏空间及展示空间是对已经购买房子最大的尊重。
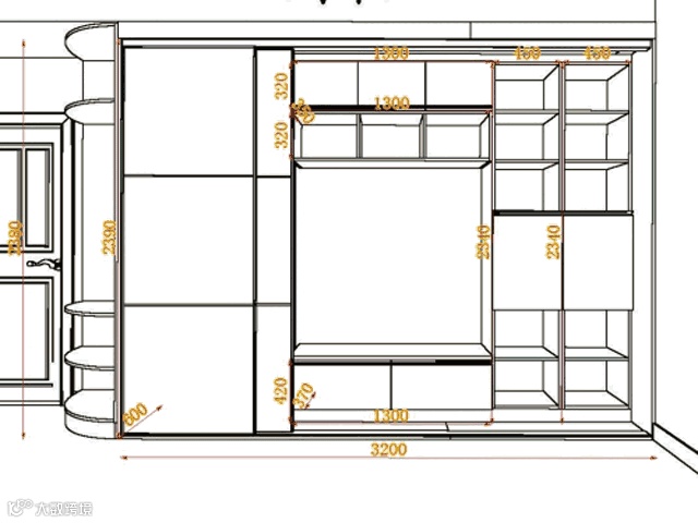
小编将贡献6张嵌入式柜体的尺寸及效果图供大家参考。


(嵌入式柜体整体增加书房的功能性与储藏功能,给人一种不一样的氛围)

(增加儿童房的利用率,现在二胎盛行,这样的格局适合家中两个小孩生活)

(餐厅新方式,给大家一种新的体验!)

(可储存可装饰的电视柜,比那些华丽的背景墙有用多啦!)

(厨房边可能就有立管,为了充分利用空间就可以做一个嵌入式的橱柜和吊柜)
-End-

4、明星家的儿童房也不过如此,你也可以!(内附儿童房效果图)

戳“阅读原文”更多装修效果图在这里等着你哦!

