大数跨境

鹭湖宫8区E组团,户型解析

鹭湖宫8区E组团,户型解析 青木宜居
2017-09-27
2
导读:鹭湖宫8区户型方案共享,云尚家居持续更新!




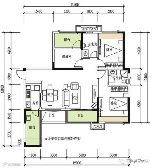
A1户型-原始平面图



A1户型-平面布置图





A2户型-原始平面图



A2户型-平面布置图





A5户型-原始平面图



A5户型-平面布置图





A6户型-原始平面图



A6户型-平面布置图





A7户型-原始平面图


A7户型-平面布置图





关注我们!!!!



【声明】内容源于网络
0
0
青木宜居
内容 8
粉丝 0
青木宜居
总阅读2
粉丝0
内容8