

本案设计风格为带有多元思维的美式风,带有意大利风格及巴洛克的影子,木作的苏格兰格造型装饰吊顶,厚重大气的窗帘及金色的流苏,安娜女王式的椅子,都体现出美式风格的多元性,明朗的线条,配上优美典雅的的意大利风格家具,营造出精致大气、高贵浪漫的居住空间。
项目概况
项目名称
开元广场
项目名称
浙江萧山
价格信息
本案购买价格:26500/平方米
产权年限:70年
总户数:1880户
占地面积:165334㎡
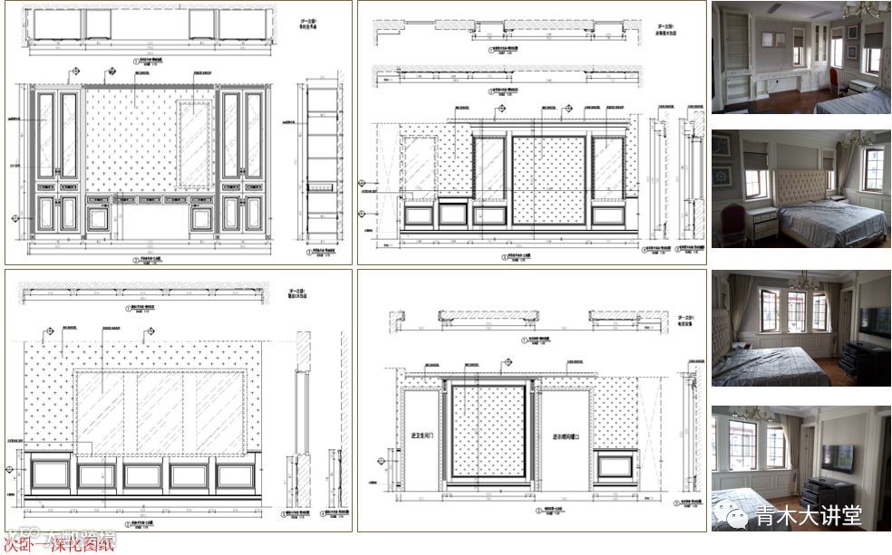
部分效果展示
客厅▲
餐厅▲


入户玄关及过道▲


次卧一▲
细节讲解

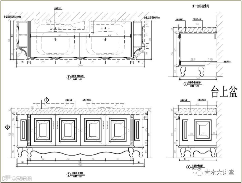
卫浴柜的设计需要注意几点:
1.上下水的位置需要特别注意,上水有三角阀的,需预留检修口,所以一般卫浴柜在台盆位置不做背板;
2.上下水的位置尽量对其台盆中心,便于水管的接洽;
3.台盆柜碰到后面有地暖分水器的,要预留分水器的开门位置;
4.台盆柜分台上盆,半台上盆和台下盆三种,不管哪种,记住,国内设计标准都是台盆的上口离地面高850mm,这样根据水盆的高低就可以设计台盆柜了。

衣帽间的设计是很多木门,楼梯、橱柜及工装系统企业转型过来的设计师的难点,这个需要长时间的去积累,去分析客户类型及客户喜好,比如,客户的长短衣比例是接近1:2还是1:3,这样就好设计长衣区和短衣区的数量了,还有需要关注的是客户是否有保险箱或密码抽等特殊需求。
此图中有一个设计错误,如红线位置,由于重力关系,下面的层板很容易往下垂,这样下面的抽屉就很容易拉不出来,埋下了隐患。

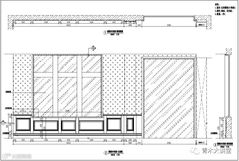
窗台板与护墙板的接口位置需要注意下,窗台石有几种处理方式:
1.窗台板后装,
2.窗台板给护墙空出护墙板厚度;
3.腰线提高,错过窗台板的位置。

布艺设计要点
基本的口诀可以总结为:“色彩基调要确定,尺寸大小要准确,布艺面料要对比,风格元素要呼应”。
首先,一个空间的基调是由家具确定的,家具色调决定着整个居室的色调,空间中的所有布艺都要以家具为最基本的参照标杆;
其次,像窗帘、帷幔、壁挂等悬挂的布艺饰品的尺寸要合适;
再次,在面料材质的选择上,尽可能地选择相同或相近元素,避免材质的杂乱,当然采用与使用功能相统一的材质也是非常重要的。
又次,整体空间的布艺选材质地、图案也要注意与居室整体风格和使用功能相配,在视觉上首先达到平衡的同时给予触觉享受,给人留下一个好的整体印象;
最后,在居室的整体布置上,布艺的色彩、款式、意蕴等也要与其他装饰物呼应协调,它的表现形式要与室内装饰格调统一。
丰富多彩的布艺不仅能为家居增光添彩,还能折射出主人的喜好和品位,所以布艺不再只是配角,甚至在很多居室空间中占据了大半江山,地位已经大大提升。

关于软装搭配的基础讲解:
1.软装的色温知识讲解;
2.软装的家居布艺介绍;
3.软装挂画的基础知识讲解
以上图片内容均出自青木大讲堂出品的
《整木定制设计师成长手册—案例实战详解》

全书共含十大案例
每个案例平均40页篇幅详细讲解
讲解内容各不相同,涵盖实战中的种种问题
对应美式休闲、新古典、经典美式、摩登法式风格、新古典混搭、新中式、现代美式、法式风格、轻奢风格、现代简约等十大风格
本案例的主要内容
1.多元思维的美式风格定位
2.利用装饰公司做好的户型来分析业主喜好
3.通过业主的一些表现来分析业主的财力物力
4.对照效果图及现场照片来图纸细化
5.软装的定义讲解
6.软装的基本风格分析
7.软装的基础灯光知识讲解
8.软装挂画的基础知识讲解
9.软装的家居布艺介绍
10.本案的软装配饰方案
11.软装完成后呈现的效果赏析
因篇幅有限内容未能完整呈现
本书特此限时7折出售
另外
原价1000元含CAD电子版的图集
现半价出售
只需500元
需要的用户请移步青木微店进行购买
折扣来得快去得也快
千万别错过了哦
完

欢迎关注“青木大讲堂”公众号:qingmulecture
青木大讲堂传播整木定制文化,梳理整木定制知识体系,助力设计师快速成长
如果每天五分钟的阅读已经成为习惯,那么让更多的伙伴建立这种习惯吧!
请将学习内容转发到各种群里和朋友圈,让我们一起来快乐的学习吧!
小编个人微信
18482190131(手机号也是微信号)
18072812340(手机号也是微信号)

