

钱江南岸的这套星耀城公寓,以生活为轴心,城市为符号,打造出现代、雅致、温暖的居所空间,让家与城市,相辅相成。

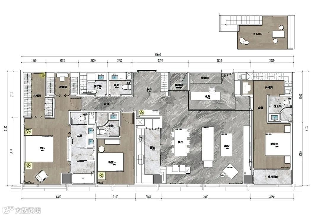
云丝细腻、调性亲和的宝格丽棕大理石地面从玄关延伸至客厅和过道,稳重内敛,柔润的光泽使区域更为通透明亮。









衣帽间在深色玻璃后方,浴室位于另一侧,靠近阳台的区域设有浴缸,灰褐色大理石与客厅空间相得益彰。

完

欢迎关注“青木大讲堂”公众号:qingmulecture
青木大讲堂传播整木定制文化,梳理整木定制知识体系,助力设计师快速成长
如果每天五分钟的阅读已经成为习惯,那么让更多的伙伴建立这种习惯吧!
请将学习内容转发到各种群里和朋友圈,让我们一起来快乐的学习吧!
小编个人微信
18482190131(手机号也是微信号)
18911683842(手机号也是微信号)
18072812340(手机号也是微信号)

