戳上面的蓝字关注广州美屋分享平台

实木护墙板是近年来发展起来的新型装饰墙体的材料,一般采用木材等为基材。是一种屋内墙用护板,它由上、下水平框、竖直框、芯板和角框组成,在上、下水平框的内侧有厚度渐小的花边和凹槽,上、下水平框可以插接成不同的长度,插接处采用凹凸配合,竖直框横向两边有与上下水平框内侧相同的结构,其纵向两端有与上下水平框内侧插接相对应的结构,角框的横向两边有凹槽,芯板就插接在上、下水平框、竖直框或角框形成的框内。它具有安装方便、快捷,省时、省力,互换性好,可多次拆装使用,不变形、寿命长等优点。
护墙板主要由墙板 + 装饰柱 + 顶角线 + 踢脚线 + 腰线几部分组成。
护墙板按材料分为纯实木墙板、实木综合类墙板及实木复合墙板三类。
护墙板按组合形式可分为:墙裙板、墙框两组合(简称落樘)、墙裙墙框两组合、墙板两组合(简称满护墙)、墙裙墙框上围裙组合、护墙板包柱与背景墙组合、护墙板罗马柱与背景墙组合、床头背景墙、门洞套、窗套和装饰垭口套等几种形式。
护墙板设计的构图方式有对称式构图法、圆形式构图法、左中右式构图法、上中下式构图法、上下式构图法。
实木护墙板主要分风格主要有中式、新中式、欧式(巴洛格风格、洛可可风格、新古典风格)、美式、地中海、简约风格等,设计师可根据不同的客户需求,用不同的材质和风格,结合木作全案设计的三性分析设计出精彩的护墙板产品。






















































































































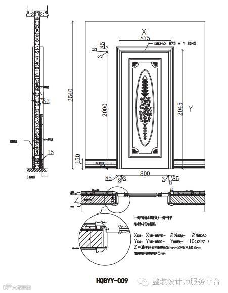
此处摘取《整木定制产品模块图集》中护墙板部分的145款护墙板设计样式仅供参考。
更多详情请关注美屋公众分享平台和官网。

| MW |广州美屋



点击下角“阅读原文”一键关注!





























