
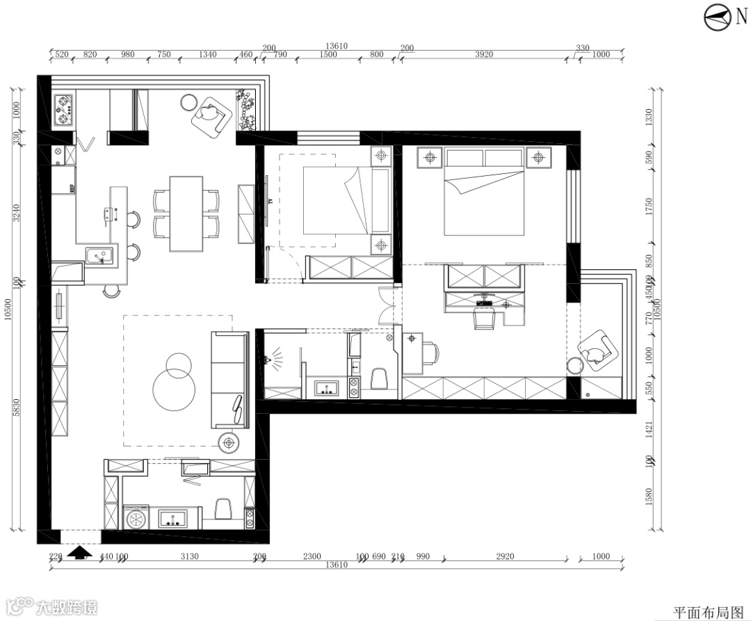
整屋格局

这是一个位于青年路的项目,三室两厅,套内面积110平,是一对新婚夫妇住,还有2只猫。房子的前身是由链家接手的,为了空间最大化利用,隔成了四室一厅。
做设计前,业主在功能上提出了4个需求:
1.改善客厅采光;
2.留两个卧室就够用;
3.衣帽间;
4.要有独立办公空间。

根据需求重新规划格局,橙色是拆掉的墙体,蓝色是新建的墙体。主要是拆除了厨房和卧室1之间的墙体,打通了客餐厨三个空间,让阳光晒进客厅;其次是打通了卧室3和卧室4之间的墙体,与此同时两个卫生间的墙体也做了新的规划。

最终平面图
格局改造
门厅缺少了收纳功能,采光也不好,客卫门在门厅右手边,导致去卫生间的动线也不顺。
狭长的“一”字型厨房利用率很低,把墙体拆除,做“U”型开放式厨房,客餐厨三个空间做成一个开敞空间,餐厅和客厅之间保留了洄游动线,空间更加顺畅。
卧室3和卧室4由于挨着特别近,两个卧室的隐私不是特别好。
主卫借用了原有卧室4的储藏间,做出了三分离,格局分别为淋浴间、台盆和马桶。

意向图
客厅在不同光影下的呈现,自然光和灯光的对比图:白天有阳光的客厅,自然光打到淡蓝色墙上,干净整洁;夜晚低色温的射灯打到姜黄色的沙发上,温暖舒适。
沙发下面用的是亚麻地毯,猫很喜欢抓地毯。
从门厅看向阳台的角度,可以更清楚地看到客厅、餐厅、厨房以及端景,这4个空间打通后,采光变得很好。

餐厅与阳台打通,增加了餐厅的面积和采光。

餐边柜旁边预留了猫爬架的空间。
从阳台看向门厅角度。
台面上安装了升降式插座。
客厅和餐厅的中间是走廊,通往两个卧室和卫生间。
走廊的另一个尽头是端景。
床的正对面是临时换衣柜,衣柜用了两扇推拉门。
从这张图上我们可以明确的看出,主卧和书房以及储藏柜的分割,中间侧墙后面是临时换衣柜,但是图片中侧墙被挡住了。

这是主卧临时换衣柜门关闭的状态,主卧和书房是敞开的。
这是主卧临时换衣柜门打开的状态,主卧和书房是封闭的。
书房和衣帽间共用空间。
保留了原有的次卧没有动,整体设计比较简单,同时也是为了节省预算,次卧没有安装衣柜门,用衣柜帘代替。以便朋友和父母临时来住时使用。
次卧颜色以橄榄绿、黄色和白色组成。
主卫的这个角度是设计师和业主最喜欢的一张照片,用了鱼鳞砖和一些金属元素做出它的复古感。
三分离卫生间,左边是马桶,右边是淋浴。
最终呈现的鱼鳞砖和黄色墙面直线无缝衔接,离不开杨林工长现场对墙用细刷描绘,用后补漆方法修补。上面是施工过程中,鱼鳞砖和墙面不平的对比图。
最后,再附上王先生的随手记装修花费,供大家参考。

沙发对面的幕布,在幕布的后方做了整面墙的收纳柜,满足了日常的收纳。
整体还原度达到了95%之上。


(Mobile:1380 250 8781)

全屋E柜·长按关注
![]()
巨大创意园·共享云智能科技 设计生产一体化平台:www.egui.me |



