一、功能介绍
该功能仅限企业用户使用(即全屋E柜设计生产一体化用户均可使用此功能);设计师可一键上传DXF文件,可快速实现板件异形设计,满足用户不同设计场景需求。
二、功能入口
选择场景内任意定制模型,双击进入【组件模式】选择任意一块板件,对象工具栏即可看见【板件编辑】入口(如果没有看到入口,需要在【风格替换】-【板件样式】-【板件】-【CAD板件】进行替换),单击入口直接上传已经设计好的CAD文件即可。
三、注意点
1、上传文件:仅支持DXF格式,且文件大小不得超过5M。
2、画CAD时一定是一个封闭的区间,不能是组合文件,需打散上传。
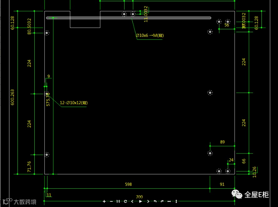
3、CAD所画的板件尺寸(长宽高)需和场景中模型所需要替换的板件尺寸一致(如果不一致会无法匹配)。如下图所示
四、CAD板件方向、定位
2、定位:CAD板件的左下角需放在原点(0,0)
操作步骤:
①右击坐标点,点击‘世界’,此时的坐标点才是世界原点,不能直接拖动坐标点到图形的左下角上,需移动图形到原点上;
②全选图形--Ctrl+X(剪切)--Ctrl+V(粘贴)--输入坐标:0,0--按回车确定。
五、拆单测试
所替换的板件需重新适配工艺


(Mobile:1380 250 8781)

共享云科技·长按关注
![]()
巨大创意园·共享云智能科技 设计生产一体化平台:www.egui.me |



