
户型图
对于一家5口人居住的房子,3.6平米的卫生间和长条型厨房面积都不算大,如果是两个人居住,卫生间和厨房面积大小还算合理。
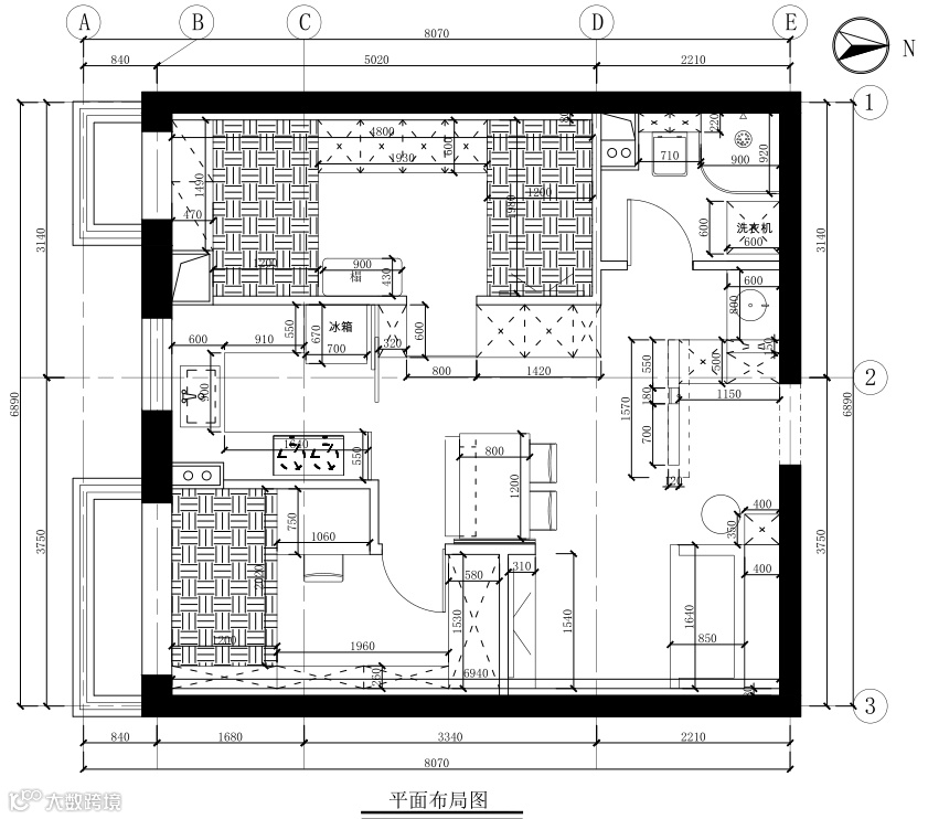
最大的主卧做了两个分开的榻榻米,满足了爷爷奶奶因年龄大、睡觉轻而分床睡的需求,卫生间也做了干湿分离,防止早高峰洗漱拥挤,并且还有独立门厅。
1.轻体墙多——改为三居室的必备条件。
全屋都是轻体墙,方便后期改为三居室和增加卫生间厨房面积,拆掉了室内所有的轻体墙,重新划分紧凑的家庭空间。
墙体全部清空重新规划空间布局,只有烟道和管道是固定的,所以厨卫的位置是固定的。
三个卧室+餐厅+厨房+卫生间,安排在50平米的房间中,还装家具和日常用品吗?
这是板楼房子,与左右邻居家隔音不好,在50平米的房子中还做了隔音墙,墙体仅仅增加了8cm厚,隔音板就占了1平米的面积。
顺便普及下隔音板安装的一些小知识:
1.选好隔音材料。
2.正确的施工。施工方要严格按照隔音板安装流程施工。需要做好这两项才能做好隔音效果。
每个房间都有足够的收纳空间:
餐厅的收纳归到厨房;
这次分析一下厨房吊顶里的布局。
放好这些机器,吊顶内部设计还没有结束。
由于餐厅、门厅公共区域没有自然光,全天需要灯光照明,常规设计是装筒灯,但筒灯照明光源比较呆板,最后做了无主灯设计——磁吸轨道灯,它的优势是可随时更换灯光的形式和照明位置,来满足不同空间的灯光需求。

有大理石表面的玄关常用的处理手法,内砌10cm红砖墙外挂大理石,玄关厚度最小15cm。
玄关下半部分做了镂空设计,中间用金色装饰。
业主两人都喜欢金色,餐桌椅纤细的腿、厨房和次卧的推拉门门框、金属踢脚线都使用的金色,在厨房的灰墙上还做一片装饰性金色大板。整个餐厅区仅黑、灰、金三种颜色。
主卧做的隐形门,由于隐形门没有靠墙,左右两边是进深60cm的收纳柜,作为主卧门每天开关门在10次左右 ,使用频率很高,考虑到牢固性,在门左右两侧做了10cm红砖墙加固。
老年人闲下来的时候,是离不开电视的,在爷爷奶奶床中间安装墙挂伸缩电视,电视支架可以平移和旋转,两边的床上看电视都很方便,都能正对电视角度。
这个房间需要当作卧室夫妻俩睡觉休息,还需要当作客厅,偶尔一家人在这里聊天看电视——对面留好了电视。
卧室推拉门大面积用长虹玻璃时,购买玻璃需注意玻璃特性,有绿色玻璃和白色玻璃可选择,不需要绿波的玻璃,定制前要确认选“超白波”。
白色玻璃和绿色玻璃波纹效果展示。


学习桌是从旧房中直接搬来了,也是设计前预留好的尺寸。
卫生间做干湿分离,把洗衣机放在了卫生间。
小户型的空间多功能柜,进深500mm的门厅柜,外面350mm鞋柜,内侧150mm洗漱收纳柜。
外面看到整齐封闭小厨房,放置了橱柜和冰箱之后,门的宽度只有650mm,门洞固定了,购买厨房大件家电,就要多留心了,不能买大尺寸的电器,比如冰箱需要买进深636mm薄款,购买进深670mm大冰箱,会放不进厨房中。
厨房常用电器、冰箱、还有餐厅收纳都归置安排到厨房中了,表面的容量一眼能看全。
从左到右依次是景森设计师、业主、何继荣工长。



(Mobile:1380 250 8781)

全屋E柜·长按关注
![]()
巨大创意园·共享云智能科技 设计生产一体化平台:www.egui.me |



