国瑞大厦
『国瑞大厦』落位于南中国国际旅游岛,海口大英山CBD核心的国兴大道上海南省府旁,集金融、贸易、购物、居住、展览、文化、政策红利等为一体的城市中央区,项目未来潜力无限。
大英山CBD 黄金轴线
大英山CBD中心区域,南邻国兴大道,西侧与海南省政府办公群楼隔路相望,东侧紧靠海口全球贸易之窗写字楼,与日月广场、名门广场、海口富力中心、海口双子塔等商业地标共同组成现代化综合性商务办公片区。
国瑞大厦项目概况
基本信息
项目内部采用200-2000m²阔绰办公格局,灵活多变分割空间,满足企业不同发展阶段的商务空间需求;3.8米办公层高,合理的进深尺度,以及前瞻性商务设计,提升办公室内开阔的视野与舒展的办公体验。
双层中空LOW-E玻璃墙幕
本项目打造绝版全玻璃幕墙立面,在阳光下流光溢彩,成为海口商务巨著集群中的耀眼符号。
3层地下车库 满足泊车需求
项目规划高配比停车位,满足上下班高峰期的泊车需求;停车场地下车库入口处配备地下智能车库管理系统,办公楼层电梯直达,指示标识清新明确,帮助商务精英快速找到车位,便捷出行,提高商务效率。
项目地理位置
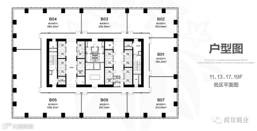
户型鉴赏
上下滚动查看更多
END
扫描左侧二维码
关注我们
获取更多房源
186-8996-6499/133-7980-8200


