专业、高效、服务是唯一标准
首选#尚世商业#尚享装饰
海南找写字楼装修服务一站式:
办公装修|写字楼租售|招商运营|工商注册|法务咨询
服务专线:0898-65359007
官方网址:http://www.dcshangshi.cn/
01-房源信息
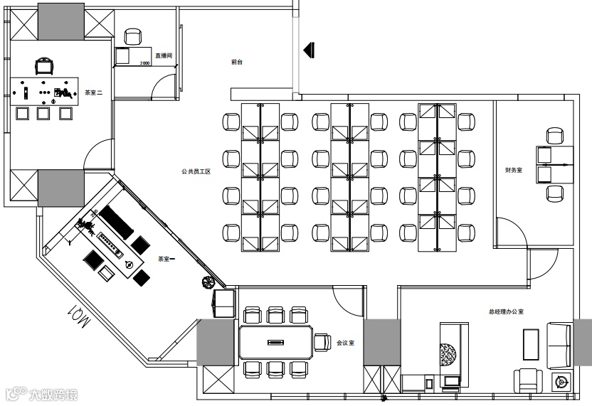
楼盘名称:互联网金融大厦
租赁面积:547平
租赁价格:40元/平
是否含税:实收
交付标准:精装交付
房屋格局:8+1
物业费用:16元/平
空调费用:按电费计算
水电费用:商水商电
空间描述:前台+员工区+总经理+财务室+会议室
02-房源图片
03-项目信息
顶端商务体,率先占据了市场资本先机
『互联网金融大厦』项目占地面积3.5万平方米,总建筑面积28万平方米,容积率5.5,绿化率35%,物业公司为海南物管集团股份有限公司,具有一级物业管理资质。项目由3栋楼组成,其中A、B座同为162米,均为36层,首层为 商业,层高5.4米,二层以上为写字楼,层高为3.9米(14和24层为避难层)。C座106米高,23层,其中1-4层为 商业,层高5.4米,并拥有10.8米高的入户大堂,5层以上为写字楼。外立面采用了黄色石材及玻璃幕墙,外窗均为双层中空LOW-E玻璃,有效的隔热隔音防紫外线并透光,可以营造一个阳光、生态的商务空间。
04-地理优势
1.交通便利,商圈环绕
位处大英山CBD,分别以海秀快速路、龙昆南路、蓝天路、海府路等联结西海岸、国贸商圈、解放路商圈、海甸岛商圈,国兴大道延伸线直达江东新区。
2.特色空间设计,科技智能服务,给予舒适商务办公体验
全玻璃幕墙,南北精装双大堂,智能高配比立体车位,五大智能自动化系统,整套架空网络地板,200-2000㎡灵动无柱空间。
3.科技智能服务,资源优越
南邻国兴大道,西侧与海南省政府办公群楼隔路相望,东侧紧靠海口全球贸易之窗写字楼。项目四周分设南北两侧四个车辆出入口,提升车辆内部行驶商务效率,
4.吃 购 行
健身房、便利店、餐厅、读书室、银行等商业以及生活设施配套完善,容纳吃喝住行。
05-一站式服务宗旨
1. 购房全流程一站式:从房源咨询、资格审核、贷款办理,到签约备案、税费代缴,全程“一人对接、全程代办”;无需客户多头奔走,用清晰的流程、透明的信息,让购房从“繁琐事”变成“省心事”,实现“签约即安心”。
2. 交付入住一站式:交付当天集中提供验房、收房、产权办理、装修咨询、家电选购等“打包服务”;联合物业、装修公司、家电品牌现场驻点,让客户当天完成收房手续,同步敲定后续居住筹备,实现“收房即拎包”的无缝衔接。
3. 售后生活一站式:入住后整合物业维修、社区活动、家政服务、亲子托管等资源,打造“线上服务平台+线下服务中心”;客户有任何需求只需一键呼叫,无需自行寻找第三方服务,用“管家式集成服务”,让居住生活全程无忧。

