九月的青岛
青山,碧海,红瓦,绿树
美的自然、美的大方
迎着秋日碧海的温润
我们拜访了夏卿的幸福五口之家
项目细则
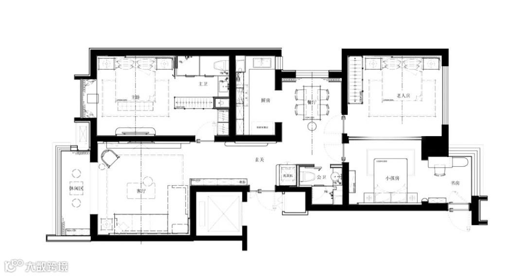
案例:青岛230㎡大平层
风格:现代美式
家具:北美定制·大都会系列
理念:设计有度 舒适有度
CHAPTER 01
三代人的幸福于此上演
夏卿和她先生都是媒体工作者,虽然时常出差,但是两人对于生活的明朗想象总是关乎阳光。
一进门,就被她家温馨有爱的家氛围所吸引,一家人的欢声笑语,孩子放开的玩耍,爷爷奶奶相伴左右。
客厅在色彩上少一点明艳的张扬,多一些蓬松的柔软,连接阳台的通透视野,正如他们夫妻开阔的人生格局。
在洒满阳光的客厅里一起畅想未来,创造每天的温馨回忆。
北美定制·大都会系列
设计有度 舒适有度
无主灯设计让顶面更加简洁干净,视觉上显得层高更高,光线更加均匀。每个物品有着自己的适度表达,在移步间一帧帧细腻的生活图景,不断丰盈、呈现。
皮质沙发与单人椅,泛着光泽的质感和细腻的手感透露着时尚的气度,云母色的茶几摆放着精致的茶点,为干净利落的空间注入轻松愉快的活力感。
白色大理石作为电视背景墙,在光线的点缀下,自然的纹理显得更加明媚与清晰,为空间注入更多的层次。
白棕相间的大幅色调营造出视觉上的华丽精致,在不同色彩和若干摆件的点缀下更加别具一格。
CHAPTER 02
有仪式感的就餐环境
而比起客厅的温和淡雅,餐厅区的色彩与材质运用则更加清新活力。
一束散发着迷人芬芳的香槟玫瑰凝成金黄缀在餐桌之上,为整体餐厅空间增加了生机,一个有仪式感的就餐环境成为了一家五口生活里不可或缺的场景。
北美定制·大都会系列
大面积的镜面设计打造出空间的时尚感,延续出另一个空间视角,更将幸福的时刻一一记录,美食、快乐都是双倍的了。
设计有度 舒适有度
CHAPTER 03
温暖安逸的休息环境
主卧套间在低调与时尚之间寻找平衡
是最具温度与仪式感的存在
小面积的橙色格调与大面积的浅灰搭配
铺叙出静谧的基调,散发安宁恬静的气息
喧嚣褪去,在灯光映衬下整个房间尽显雅致温馨,让所有感官在静谧中自由舒缓。
墙面定制转角衣柜,一方面满足了收纳需求,一方面增加了大空间中的空间层次感,玻璃的运用让视觉通透而私密,使空间串联增加层次,丰富了空间的质感,创造一个含蓄内敛的生活氛围。
北美定制·大都会系列
CHAPTER 04
慢享暮年温和时光
窗外光线大方的落入父母房,让室内成为亲近自然的空间,窗外的景色浑然天成,随四季更替。
白色和烟熏色大幅色调,散发出硬朗的魅力,浅灰色地毯搭配木色地板,形成了明度上的对比,丰富了空间的层次。
北美定制·大都会系列
无论凭窗看海,还是遥看楼林,都让人心神开阔,更添悠闲淡泊的避世意境。
设计有度 舒适有度
CHAPTER 05
专属孩子们的成长天地
女儿房以莫兰迪色系为基调
充满着孩子般的童趣与大自然的气息
一抹粉红色是跳跃的音符
谱下一片充满光的小天地
传递情景感与情绪交错的空间
那精巧的摆件就是一节节机敏玩味的变奏,它们在艺术的底色——时间上欢欣跃动,也在时间的载体——生活上摛彩铺文。
初秋的海风轻柔地拂过
散发淡淡的海水咸味
我们暂别夏卿的家
“遇见最美的家”
我们下一次再见~


