搜索
首页
大数快讯
大数活动
服务超市
文章专题
出海平台
流量密码
出海蓝图
产业赛道
物流仓储
跨境支付
选品策略
实操手册
报告
跨企查
百科
导航
知识体系
工具箱
更多
找货源
跨境招聘
DeepSeek
首页
>
130㎡精装房改造,简约纯净的空间,才是生活的模样
>
130㎡精装房改造,简约纯净的空间,才是生活的模样
圣格威全屋整装
2020-07-31
2
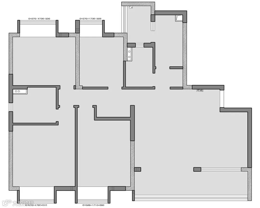
导读:平面局部改动:①增大客厅的开间,将原有的外阳台融入到客厅和餐厅;②将主卧与主卫共用的墙往主卫移了60公分,改
平面
局部改动:
①增大客厅的开间,将原有的外阳台融入到客厅和餐厅;
②将主卧与主卫共用的墙往主卫移了60公分,改变进主卫的开门方向,增大主卧的空间;
③在内阳台打造了一个水吧台。
设计依照建筑式思维,整合室内相互穿插的界面,带来多维度的空间层次。人与空间的关系,得以在自由与平衡中达至共生。
客 厅
客厅较小,打掉外阳台和客厅与餐厅的这堵墙,增大空间。原有的电视墙面积也偏小,扩大了电视墙面积。
留白的墙面让一切从减法开始,
把更多的可能性留给未知的时光。
黑与白,无论放在任何时代,都是一个永恒的组合。
强烈的黑白色对比,
是最适合搭配极简主义风格的设计。
将简约的色彩进行大胆灵活的搭配,
让简约的颜色重新焕发它的魅力。
电视墙的冷色石材、与暖色木色墙板结合,打造空间的平衡感。
落地窗户,使客厅采光充足,没有了昏暗的问题。
有效利用公共区域的
活动
范围与空间层次,给予开阔之感。
餐 厅
除了餐厅均采用无主灯设计,保持简练洁净的质感。恰到好处的柔光射灯为照明带来更多层次,也中和了白墙和家具的冰冷。
卧 室
主卧遵循整体风格,极简的空间布置,
木色的背景墙,配浅灰床单,
带来默然与静谧,增添一份舒适与温情。
石材与木饰面创造出床头背景墙面的立体层次,
透过深浅不同的木纹色系层次妆点温润质感。
主卫的门和衣柜相结合,
隐藏式的门让卧室变得更加私密与规整,
也是衣柜的另一种方式利用,弹性定义新的生活方式,
将生活的琐事与繁杂隐匿于线条与自然的安逸中。
老人房沉静内敛,配色搭配温柔舒缓
。
儿童房
小宝贝是一个五岁左右的小男生,喜欢汽车模型。
空间布局保留很强的可变性,
希望能伴随孩子的成长发生不同的改变。
阳 台
打通阳台,借助光线最自然的塑造,让空间拥有充沛的光线和自然的气韵。
坐在窗边喝着刚刚煮好的咖啡,在舒适的空间中制造出浪漫的动人细节。
走 廊
过道的尽头是一幅线条感极强的装饰画,
左边是收纳需求的柜体,采用暗藏方式弱化柜体本身,
增加空间的线条感与纵深感。
【声明】内容源于网络
0
0
圣格威全屋整装
内容
387
粉丝
0
关注
在线咨询
圣格威全屋整装
总阅读
157
粉丝
0
内容
387