南京扬子江国际会议中心的设计灵感来自于宋代名画《层波叠浪》,整个建筑采用了大量新型材料,其中就有10000多平米的UHPC幕墙,且几乎全不采用的进口品牌材料,在近几年的工程中实不多见。接下来我们就来谈谈UHPC(超高性能混凝土)在本幕墙工程中的个性化使用。

UHPC作为创新型高科技建筑材料,具有强度高、耐久性好、可塑性好等诸多优点。UHPC最高抗压强度可以达到810Mpa,抗剪力达到25Mpa以上,且高隔热、高防水,质地细腻,在使用专用防护剂后,基本可以隔绝一切有害物质,大大延长使用寿命。
本项目的UHPC主要用于首层位置,大多为倾斜立面,具有多种角度,最大的倾斜角为45°,标准板块尺寸为2400*1200mm,带R角,板块的造型多,板块与板块之间错缝布置。

-UHPC节点-
在本项目中UHPC固定方案采用的是预埋套筒加不锈钢挂件,最大板块尺寸为2400*1200mm,主龙骨采用的是160*80*6mm的热浸镀锌钢管,次龙骨采用L50*5mm热浸镀锌角钢,每块面板均是模具一次浇筑成型。

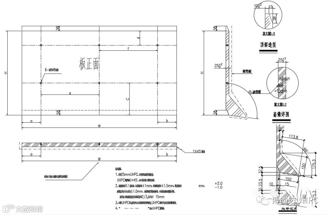
-UHPC面板加工图-

-UHPC套筒点位布置图-


-UHPC现场完工图-
如上图中所示,该项目也使用了BIM建模技术,利用BIM建模对幕墙表皮进行碰撞分析,对模型整个分格进行优化,提高了施工的便捷性和经济性。由于UHPC的可塑性好,结合建模技术,完美解决了异形建筑幕墙难以实现的难题,也受到越来越多设计师的青睐。

夜幕降临,华灯初上,扬子江国际会议中心的灯光设计凸显了“城市之光,创新之光,扬帆起航,江波弄影”的主题,承载着人们对江北新区未来发展的美好愿景。

