厨房:在任何家庭中都占有核心地位。我们不仅仅在厨房里吃饭,还在这里相守、欢笑、争吵、和解、放松、学习、相爱......用一句话总结:我们在这里生活。懂得这一点,从此刻起,厨房就再也不被隔绝于家庭其他空间之外,而代表着一个有机、流动且灵活的空间:厨房与客厅通透相连,不再只是挤满家电,持续向居家环境一体化转变。厨房在设计阶段也将迎来一场真正的革命。定制空间、关注细节、照顾整个家庭环境的需求、考虑美学与功能性(或多功能性),但最根本的,是考虑到那些使厨房成为欢乐与幸福源泉的情感元素。
厨房设计篇
一、一个家最幸福的地方
作为掌管一家人饮食的重要场所,大部分人对它都有很深的执念,特别是在当下提倡分享生活方式的浪潮中,做饭几小时,拍照半个钟,吃饭才几分钟,如果厨房设计不好,做饭的人不仅累,还耽误时间。
一年四季,一日三餐,从筹备到收场,全仰仗厨房这一方小天地。有人说厨房是家的心脏,从那里散发出爱的味道,厨房设计是否够迷人,吸引做菜人爱上下厨房,很重要。既然如此重要,厨房又该怎样做到实用美观双丰收呢?
二、当下的部分问题
01.操作台面较小
南北方饮食差异较大,北方面食的制作要求台面较宽,在设计前期应当考虑南北差异。
02.厨房功能较单一,枯燥
一個普通的居家主妇每天花在厨房里的时间将近3个小时多,长时间的制作餐点,需要调节心情。
03.厨房与其他空间之间互动较少,相对封闭
关在厨房制作美食的家长无暇照顾孩子,与父母,爱人之间交流过少。
04.收纳问题
厨具细小杂碎、种类繁多,锅有炖锅、平底煎锅、高压锅、蒸锅、砂锅......机器有豆浆机、榨汁机、咖啡机,日常厨具更不用说,有菜盆、案板、刀具、擀面杖等等等等。。。多到厨房塞不下,要用时还找不到。
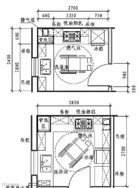
三、厨房得先做好空间规划
厨房规划的基本原则是要设计出一个“做饭三角区”,指的是由水槽、厨灶、储藏区组成的厨房空间,目的就是让做饭的动线更流畅:准备、清洗、切配、烹饪料理。

厨房操作流线
在平面布局的空间规划上,首先要考虑到户型及其面积占比,其次按照动线最短设计。以下是归纳总结的常见厨房布局:
01.I型厨房
一字型厨房适用于开间较小、狭长的空间,使储存、洗涤及烹调区一字排开,将清洗、配膳与烹调设置于同一工作面上,工作流线成一条直线,其操作流线过长。
|I型厨房平面
02.双I型厨房
双排型厨房,将工作区安排在两边平行线上,动线距离变短,且直线行动减少,但操作者经常需要转180°,由于设备增多,储藏量明显增加,且操作平面较多。
|双I型厨房平面
03.L型厨房
L型是将洗、切和烹调区依次沿两个墙面转角展开布置,是国内最为常见和最经济实用的类型。
|L字型厨房平面
04.U型厨房
U型是沿连续的三个墙面布置洗、切和烹调区,洗涤池在一侧,切和烹调区相对布置,这样能形成较为合理的厨房工作三角形,操作路线短,操作效率高。
|U字型厨房平面
05.岛型厨房
岛型厨房可以把岛作为操作台,也可以作为就餐区,但主要的功能是给全家人提供一个可以在厨房交流或者小型聚会的地方。通常设置为“岛”的空间比较宽敞,全家人可以围坐在岛前准备晚餐或者就餐,可以使家庭气氛更加融洽,增加与家人的沟通。
|岛型厨房平面
05.无障碍型厨房
难道厨房只能站着操作么?有没有考虑过容易疲惫的老人/甚至年轻人、轮椅使用者的需求呢?其实,无论是洗菜、切菜、炒菜还是装盘,都是可以坐着完成的,为什么只能选择一种模式呢?
|无障碍型厨房

四、设计细节让做饭变成一种享受
厨房设计三原则:合理动线、注重细节、打造美观。简而言之,一个厨房,若要让做饭的人爱做饭,那么细节上就要让人觉得处处顺心、东西随手可得、打扫清理的时候的便利,最后兼顾设计风格、美学观念。
1、厨房操作台最佳高度
很多人,进厨房时元气满满,洗菜,切菜,炒菜,颠勺,刷锅,清理台面……一套整下来累的不行,好菜在桌上也没兴致吃饭了。
烧饭这么累,多数是操作台高度没做好,科学反复试验得出,厨房操作台的高度一般为85~90cm最佳,这个高度正好是身高1.6米的女主人手臂自然抬起的高度。


01.空间尺度的细节把握
好用的厨房就是好厨房,充分考虑台面尺度、柜体高度及家电尺寸等空间尺度是否符合人体工程学、空间方位布置。
● 台面尺度
根据中国平层房子的层高,一般吊柜在离地拔起1.6米的位置以上最佳,如果低于1.5米,不仅影响厨房操作空间,而且厨房会显得局促压抑。
吊柜的设计要满足两个条件:
拿取方便、不能碰頭


1、吊柜一般分成两格,下格的东西要满足1.6米高的人很轻松地拿放。
2、还要考虑高个(1.8米的男性)洗菜和切菜的时候,不要碰头。
反复试验,最佳尺寸为吊柜厚度一般在300-350mm,离洗手盆台面的高度为700mm。
|吊柜示意
● 人体空间尺度
厨房工作主要尺度:操作台一般宽0.6m,走道宽度最小0.9m。
|走道宽度示意
● 常见家电尺寸
设计与家电,从电器功率与硬装电线、家电尺寸与平面布置,它们都是相互关联的,这需要充分考虑冰箱、油烟机、嵌入式燃气灶、消毒柜、集成灶、微波炉、洗碗机、蒸箱、烤箱、电饭煲、电磁炉等厨房家电尺寸,提前规划好占用面积。
|冰箱刚好嵌入预留区
02.空间材料的恰当使用及管道插座设计
主要充分考虑厨房防滑、易清洁、防火等功能性用料。
● 天花板的材料使用
铝扣板检修方便、防水乳胶漆美观
● 地面的材料
大理石,瓷砖易清洁
● 墙面材料
石材、不锈钢、瓷砖、易洁板复合材料
● 操作台材料
一体式不锈钢、一体式人造石,减少缝隙易清洁
|一体式材料
● 其他
煤气罐检修/热水器暗藏、台面挡水沿高度,滴水槽的设计以及各种家电的插座预留及位置的合理设计。
特别需要一提的是,现代厨房的插座功能需求越来越多样,需充分考虑新的需求,为其预留设计,如入户净水器电源、垃圾粉碎器电源、视频播放器电源等。
|家电的插座预留
五、最大化利用每一寸空间
如何在几十件厨房用品中快速找到某件物品?绝对是一项考验。除了常年累月对厨房的熟悉之外,收纳绝对是关键!
好的收纳设计兼顾便捷性、美观性和实用性,做到容易拿取的同时能够容易找到。
厨房里的东西多而杂,好的厨房收纳设计能够充分考虑这些物品的特征、使用频度和操作顺序等,创造出一个易于清理的厨房。
01.分出不同的收纳区
要做到空间利用的最大化,需要将根据厨房特点将厨房分出不同的收纳区,同时充分利用容易被忽视的转角、墙面、柜门等空间,做到科学合理的收纳。具体可分为:
● 厨电区收纳
烹饪区、电器、锅炉餐具

● 食品收纳区
如高深拉篮收纳、常用食品收纳、备用食品收纳等。

米桶用起来有诸多不便,在柜子里加入米缸专门放米,这样瞬间感觉方便多了。
● 冰箱及嵌入式家电
● 清洁区
|清洁用品收纳
|內嵌式垃圾桶
● 中岛台/吧台
|可升降油烟机
|台面收纳
|柜体收纳
|桌边收纳
● 上柜及墙面收纳
|上柜收纳
|柜门背板收纳
|下拉式收纳篮
● 橱柜细节:橱柜明把手、暗扣手、柜内隔板多为木夹板,但实际上不锈钢板较好,受潮不变形,可水冲,打理方便
02.收纳原则
厨房收纳一般按照“上轻、下重、中间常用”的收纳原则,常用的调味品放到做饭顺手就能拿到的地方,轻便的零食干货可以放到吊柜里,吊柜里面可以安装下拉拉篮,避免拿不到的问题,笨重的锅具碗具放到地柜里。
|台面收纳
|地柜收纳
03.其他分享

|双洗涤水槽
如果有条件,家里一定要备两个水槽,一大一小,洗碗和洗菜,可以兼用。同时还要有可旋转的水龙头,能服务两个水盆。

|水槽玻璃菜板
大水槽上面可以覆盖一块高强度玻璃菜板,食材在小水槽洗净后直接在菜板上切片加工,十分方便有木有?
再极致一点,玻璃菜板下面放一块不锈钢沥水板,洗完的锅碗还可以在里面控干,一点也不占地。

|抽拉式水龙头
360°无死角的清洁龙头是厨房的必备神器。好的水龙头必须灵活,拿哪里都行,而且还可以抽拉,一般最好能抽拉出15mm,怎么冲洗蔬菜都可以。

|厨房台面隔水沿
厨房台面都是水?一不小心滴到身上、落到脚上,心情立刻down到底,不想这样?那就一定要购买可防水的橱柜台面,如上图边沿挡水线,下部止水线, 都要有。


|吊柜下灯带设计
在橱柜下方安装一条灯带,这样台面永远亮亮堂堂,切菜时,我们也不会被自己的身躯挡住光线,操作起来特别痛快~

|带开关的插座
厨房操作,手经常是湿的,为了避免危险发生,最好装预留带开关的插座。
小提示:插座要设计距离水槽边缘80cm,这是一个反复试验过的既能避免水花溅到,而且为准备区预留了足够空间的黄金距离。

|静音水盆
洗菜哗啦啦的流水声是不是能挑起你细微的情绪躁动?此刻,静音水盆服务你。在水槽下面安装一个低噪音厨余垃圾处理器,它能利用离心力将食物粉碎排入下水道,操作便捷且无噪音。安安静静的洗菜是不是更舒心?

|净水装置
现在的水质多数不达标,为了家人的身体健康,最好在橱柜下方装一个双重净水装置,水经过过滤,可以保障家人更多饮水安全。

|可社交的电子炉
一个投影幕加上一个可触控的电子炉就可以进行社交的互动了。
你可以将做菜视频投射到上面,还可以在应用内创建联系人,比如,在煮饭时和妈妈实时互动,让她实时指导你的进度,还可以和朋友交流学习,这样厨房会更充满温情。

|智能蒸箱
蒸是中国传统的烹饪方法,非常健康。独特的无压蒸汽烹饪,可以让上下层同时烹饪的蔬菜和海鲜不串味。相比较于微波炉对食物内部水分的破坏、辐射问题,更健康环保。

|智能洗碗机
洗碗是最让人头疼的了,很多人享受做菜的过程,但没有一个人愿意收拾锅碗残局,此刻,你需要一台智能洗碗机。
它能帮你收拾残局、还有抵触的心情,让吃饭洗碗都能成为一种享受。

|智能拉篮
智能拉篮,轻轻一碰自动弹出,不用受重物困扰,拉也拉不出来,拉出来还担心拉坏,这样的尴尬将不复存在。

另外,在预制区和操作区连接部位,可以设置180°甚至270°双层旋转底柜或转角拉篮,充分利用转角空间,一厘米也要利用到极致~

|无门开放式柜
平时买菜回来,手中的菜要不放在台面上要不就放在地上。如果在厨房侧柜设计一条短边的开放柜,一切就迎刃而解。平时除了放菜,里面还可以放一些锅碗瓢盆,拿取非常便捷。

|墙柜设计为向左双开门
侧门开的好不好,严重影响体验。根据人体功能学原理,一般操作区左上位置的墙柜设计为向左双开门,且内部是相通的,方便收纳尺寸超过单扇门的较大物品;操作区右上位置的墙柜设计为向右单开门,这样拉门比较顺手。
六、设计升级带来更多可能性
01.加宽操作台
备餐区作为黄金区尽量加大,黄金区宽度可适当加宽。
02.增加娱乐设备
●智慧魔镜,可以听音乐/看新闻/看菜谱,享受厨房生活
●增加摄影装备固定件,可供疫情期间直播烹饪美食
03.加强与客餐厅的沟通
根据家里的成员构成及活动习惯,巧妙的利用空间,可增加岛台作为亲子互动或居家办公的一个平台。
|亲子互动示意
|开窗式厨房
|移门式厨房
|餐厨合一式
04.岛台桌面收纳,增加厨房操作面积
岛台下方做成抽屉式收纳或嵌入厨电,可储物餐椅、餐厅书架功能
|餐厅书架功能
|岛台抽屉式收纳或嵌入厨电
05.杀菌设备增加
●净水装置,饮用放心
现在的水质多数不达标,橱柜下方装双重净水装置,水经过过滤,可以保障家人更多饮水安全。
●疫情期間餐具消毒非常重要
06. 垃圾处理
●嵌入式垃圾桶
保证厨房整洁无异味,另外,垃圾分类尤为重要,内嵌式的分类垃圾桶可以兼备环保、美观、整洁及便利等功能特点。
●垃圾粉碎机等可更好的分解厨余垃圾,避免滋生更多的细菌
07.收纳及细节上的多种可能性
● 厨房照明
目前,大多数厨房做到的只有整体照明,常常只有一盏吸顶灯,需要改变单一光源的传统。
除自然光外,厨房室内照明有天花集成照明(空间主照明)、吊柜底照明(操作台照明使用)、柜内灯带(功能照明)、厨房紫外线消杀灯(夜间厨房消杀功能使用)。色温 4500K 白色光源为主。
|吊柜底照明(操作台照明使用)
|柜内灯带(功能照明)
|自动感应移动式紫外线消杀灯
● 收纳细节
|上柜暗藏镜子,可看清柜子里的物体
|转角柜收纳
|厨房医药箱收纳
一个厨房尺度会影响幸福的宽度,本篇关于厨房设计的再思考,主要为厨房最基础的动线、布局、收纳等功能性设计,更多侧重于其实用性。随著生活方式的改变,大家会对美观、风格的打造越来越重视,开放空间、互动交流型厨房、功能组合多样化厨房会成为趋势。

