
钱塘繁盛,市井昌荣,一座城市彰显的明耀光彩,是城市里的每一户家庭倾心造就的,而这座城市,又给了每个家庭予以安生享乐的欣然姿态。
钱江南岸的这套星耀城公寓,以生活为轴心,城市为符号,打造出现代、雅致、温暖的居所空间,让家与城市,相辅相成。

客厅后侧是厨房,格挡是采用深色玻璃制作而成的推拉门,内部整体为白色柜面,墙体呼应客厅背景墙,以爵士白大理石为装饰,优雅温厚,细节充盈。
一层是书房,内部以白色条纹墙面为主,形式简约的展示柜别具一格。
从与玄关一墙之隔的楼梯上行,空间满足了各类休闲功能,儿童活动区位于一侧,以城市楼宇的抽象形体为元素,使夹层区更为活跃烂漫,也迎合了整体城市主题。
公共卫生间与洗衣房在走道一侧。走道尽头是主卧区域,隐私度较高。
衣帽间在深色玻璃后方,浴室位于另一侧,靠近阳台的区域设有浴缸,灰褐色大理石与客厅空间相得益彰。
儿童房与主卧一墙之隔,蓝灰色调含蓄温和,简洁的布局使人舒适自在。
通过走道和客厅,客卧在房屋的另一端。墙面层叠的造型令人耳目一新,与主卧立面遥相应和,独立的卫生间与衣帽间为客卧的不同使用者提供了贴心的私人起居。
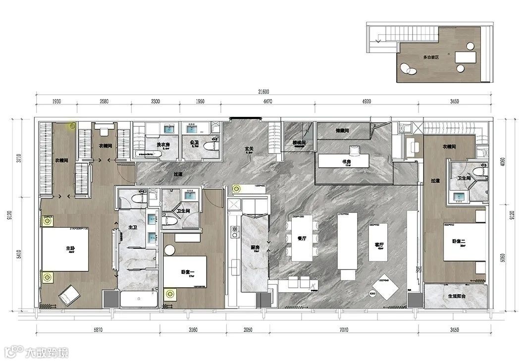
平面图
▽

