卫浴设备的更新,让卫生间的功能更人性化,功能更强大,储物收纳更加精细化,这让我们对卫生间的设计有了新的要求。
通过尺度推敲、流线整合等设计手法,精打细算定制经济、舒适、宜居户内空间。
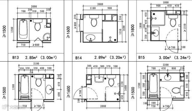
卫生洁具距墙及相互间尺寸
①便器中心距侧墙不应小于400mm;中心距侧面洁具边缘不应小于350mm(下图)。

②坐便器采用下排水时,排污口中心距后墙为305mm、400mm和200mm三种,推荐尺寸为305mm(下图)。

3、坐便器采用后排水时,排污口中心距地面高度为100mm和180mm两种,推荐尺寸180mm(下图)。

4、淋浴器喷头中心距墙不应小于350mm。喷头中心与低位洁具水平距离不应小于350mm(下图)。

5、洗面器中心距侧墙不应小于350mm,侧边距一般洁具不应小于100mm,前边距墙、距洁具边缘不应小于600mm(下图)。

6、电热水器、太阳能热水器储水箱侧面距墙不应小于100mm(下图)。

空间布局
卫生间该怎么么合理布置,与每个用户的经济条件、文化、生活习惯、家庭人员构成,设备大小......有很大的关系。
因此布局上有多种形式,归结起来可分为集中型和独立型(分离式)两种形式。
1、集中型
把浴盆(淋浴)、洗脸池、便器等洁具集中在一个空间中,称之为集中型。
“三大件”基本的布置方法是由低到高设置。即从卫生间门口开始,更理想的是洗手台向着卫生间门,而座厕紧靠其侧,把淋浴间设置最内端。这样无论从作用、生活功能或美观上都是流畅的。关注经典人居

长方形卫生间设计
·优点:节省空间、经济、管线布置简单等。
·缺点:一个人占用卫生间时,影响其他人的使用;此外,面积较小时,贮藏等空间很难设置,不适合人口多的家庭。兼用型中一般不适合放洗衣机,因为入浴等湿气会影响洗衣机的寿命。


2、分离式
分离式是指,把一部分分离开来布置。
何为干湿分离?干湿分离是卫浴设计中比较流行的设计概念,干湿分离是指保持干燥空间与可能被水浸的区域分离。
优点:各室可以同时使用,特别是在高峰期可以减少互相干扰,各室功能明确,使用起来方便、舒适。洗衣机一般会考虑放置在此类空间内。关注经典人居
缺点:空间面积占用多,建造成本高。
(1)二式分离
这种常见的二分离不等同于干湿分离,而是把洗手盆或者马桶完全独立出来。
① 独立淋浴区
浴室和厕位分离,这是常见的卫生间形态,占地面积小,却也可以作出简单的干湿分区。面积较小的卫生间内,物件摆放应该做到足够精简。

② 独立洗面台
下面是典型的二分离卫生间,洗面台独立设置,马桶与淋浴间则以隔断区隔。

(2)三式分离:浴室+洗漱+厕位
三分离式卫生间,是指将卫生间一分为三,洗、厕、浴在同一个空间中做到相对独立的卫生间设计。相比传统的卫浴设计,三式分离卫生间优势更加明显。
如下图主卫、公卫分离成独立的洗漱台、马桶间和淋浴间,三个人同时使用,互不干扰。

(3)四式分离:浴室+洗漱+厕位+家务间
四式分离卫生间就是将洗面台、马桶、浴室以及洗衣区四个功能完全分离,形成4个区域。示意图
是目前卫生间精细划分的更科学布置方式。
卫生间收纳
卫生间里需要收纳的东西很多,洗浴用品和清洁用品都会放在这里,还有一些化妆品等等。
那么,如何使卫生间高效化、最大化收纳空间?
用心的收纳设计,让生活更条理清晰。卫生间是本身比较紧张的空间,合理的收纳,可以使卫生间空间使用倍率大增。
主卫收纳分为镜柜、地柜、拓展三部分,采用日式收纳细分的方法,满足日常使用和备货存储,女性客户的各种化妆品及美容小电器可以收纳其中。
次卫模块采用主卫主镜柜标准模块满足日常使用。
但是镜柜最好是坚持二八原则——20%露,80%藏。为什么呢,如果采用全封闭式的,很多住户长期会觉得开关镜柜门拿东西超级麻烦,反而会将物品直接放在台面上,镜柜留有20%的半开放式,用来收纳常用护肤品,其他隐藏在镜柜内部,才更满足收纳需求。
在日常的卫生间收纳中,除了壁柜、置物架、收纳盒等可以用来装东西之外,还有一种收纳叫做壁龛,简直集实用、颜值于一体!
壁龛属于一种敞开式的收纳格,它是打造在墙壁内的。这种收纳格的收纳能力非常强大,可以摆放各种各样的卫生间杂物,而且不受重量限制,不用担心物品太重而变形。另外,这种壁龛收纳格最为防水防潮,不会受潮发霉,更不会因卫生间潮湿而受损,因此使用寿命是非常长的,正常使用的话即使几十年也不会坏。
相比于平开门浴室柜不管收纳什么,每次拿取物品都要弯腰或者蹲下,拿取过程太麻烦,而抽屉式只需抽拉打开即可,一览无余,取用时不用蹲在地上略微弯腰即可,使用起来非常方便。
如果有下水管可以巧妙避开管道设计U型分隔抽屉,物品可被分类放置。

洗脸盆柜下方
选用挂墙式的洗面柜时,下面会留出大概距地面40cm的高度(因每个人的身高和习惯安装时,高度略有不同),这个空间可以放置大件物品,如婴儿澡盆等。
马桶侧柜
利用盆柜一侧开放格来放置卷纸、手机、书,既便捷又省空间。

墙上收纳
墙上面积就是最好的收纳空间,特别是在卫生间:
1.上面的空间不容溅水、潮湿
2.地面越少东西就越容易清理
3.能够尽量减少弯腰次数
科技改变生活
卫生间是家里最隐私的空间,也是每个家庭成员最常用的空间。
除了上面提到的诸多细节,好用的收纳空间还涉及更多人性化细节。
电热毛巾架
卫生间作为家中湿气最重的地方,自然是细菌滋生的沃土,挂在浴室里的毛巾要是通风不好的话很容易出现发霉、有异味。
这个时候电热毛巾架可谓完美解决这个问题!一般湿毛巾只要两个小时即可快速烘干,这样可以避免细菌滋生,热毛巾架也可以减少浴室潮气和霉味。

一体式防雾镜
洗手间里面,爱照镜子的美眉会发现一个很牛的设计,防雾镜!


智能镜柜
打电话、天气预报、美妆助手、放音乐、查询问题、甚至云控制浴室温度等样样精通,能在卫生间玩出各种花样来!

升降抽拉龙头
升降抽拉龙头,对于一个每天洗头的人来说,告别弯腰洗头,告别洗头如洗澡的日子无疑是最大的幸福。

此外还装置了利于清理的台下盆、利用镜柜增加收纳,卫浴柜采用抽屉设计,只为减少弯腰的次数。
智能马桶
在房地产精装修市场,智能马桶更是受到了开发商、业主的双层认可。
智能马桶几乎成为智能卫浴的代名词,可见影响力之大。这种产品除了有臀洗、妇洗、烘干等基本功能,还越来越多地加入保洁及娱乐元素,设计也越来越人性化,例如有的马桶配有夜灯,有的能够进行健康监测,有的可以播放音乐,有的甚至可以作为卫浴中枢控制别的设备。
有的还具备人体自动感应功能,一旦靠近,马桶盖会自动打开。
恒温花洒
隐藏式地漏
隐藏式地漏能保证不会露出掉落的毛发,大去水量进一步降低湿滑的危险,极大提高实用舒适感。
适老设计
卫生间是引发老人安全问题最多的地方,卫生间适老化设计也是需要重要考虑的环节。卫浴对老人的关怀,体现在细节当中。
考虑到卫浴过程中频繁蹲坐起身,对于老人的安全威胁更大,因此中国铁建地产华中区域公司从细节入手,保卫老人的卫浴安全。
人性化老人卫浴间:

• 折叠座椅可以让老人在自己的卫浴室坐着淋浴不再担心湿地跌倒;
更先进的产品,如果老人平常进入一个空间,很久没有活动,也会自动报警。
适幼设计
婴幼儿洗澡区
洗手间的空间不够的问题,给孩子洗澡都腾不出位置。
儿童洗漱踏板
没有专门的儿童洗漱台或者供儿童踩踏的凳子,利用这种可抽取的踏板,也可以给孩子增加高度,让孩子在不需要大人帮忙的情况下,自己洗脸刷牙。

伸缩式踏板,可以让孩子在洗漱时可以安全的够到洗脸池和镜子,下方为储物柜。

结语:
卫生间的精致程度,关乎我们的生活质量高度。每天必须使用的卫生间,它的洁净程度、收纳整理、氛围的营造等,都和我们的生活质量息息相关,每一个精细的设计和考量,都传递着生活的温度。
因为公众号平台更改了推送规则
若不想错过精彩内容
读完后可以点一下「赞 」和「 在看 」
新文章推出就回第一时间出现在你的订阅列表里哦

