大数跨境

分享一些收口做法

分享一些收口做法 陈设装饰
2024-01-14
2
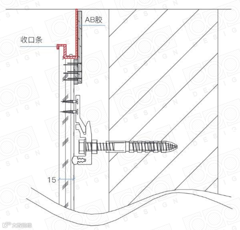
导读:收口,在设计和施工当中的重要性1、带定位平面收口条△带定位平面收口条带定位平面收口条,适用于地面各种材质的平
收口,在设计和施工当中的重要性

1、带定位平面收口条
△带定位平面收口条
带定位平面收口条,适用于地面各种材质的平面收口及分格装饰,固定方式是AB胶固定

2、高低差级收口条
△高低差级收口条
高低差级收口条,适用于高低级设计的地面,用螺丝钉固定,同样能解决“非高即低"的收口通病。

3、带灯槽墙身露边收口条
△带灯槽墙身露边收口条
带灯槽墙身露边收口条,适用于饰面板带灯光的墙身设计收口,用自攻螺丝固定。

4、毛毯收口条
△毛毯收口条
毛毯收口条,适用于地毯与各种地面材质之间的收口,用螺丝钉固定。

5、卡式凹槽踢脚线条
卡式凹槽踢脚线条,适用于墙面饰面板的设计,需要另配饰面板。

6、墙身露边收口条
墙身露边收口条,适用于墙面饰面板的收口设计,用自攻螺丝固定。

7、带灯槽踢脚线(一)
带灯槽踢脚线,适用于地面铺大理石、地砖、木地板,墙面贴饰面板的设计,用螺丝或膨胀螺丝钉进行固定。

8、带灯槽踢脚线(二)
带灯槽踢脚线,适用于地面铺地毯、墙面贴饰面板的设计,用螺丝或发泡胶固定。

9、墙身饰面板收口条
墙身饰面板收口条,适用于墙身饰面板的设计

10、墙身饰面板装饰条
墙身饰面板装饰条,适用于墙面饰面板留缝的设计

11、墙身饰面板留缝收口条
墙身饰面板留缝收口条,适合墙身饰面板留缝设计与使用

12、护墙板挂件
护墙板挂件,适用于各种风格的挂墙板安装

13、留缝收口条
留缝收口条,适合于墙身留缝及墙身不同材料的分割设计与使用

14、饰面板挂墙板装饰条
饰面板挂墙板装饰条,适用于室内饰面板、挂墙板留缝装饰的设计

15、挂墙板阴角收口条(与PC橡胶组合使用)
挂墙板阴角收口条,适用于墙面挂墙板装饰阴角收口设计

16、饰面板顶凹槽踢脚线
饰面板顶凹槽踢脚线,适用于室内墙面饰面板凹槽式踢脚线设计

17、挂墙板阳角收口条
挂墙板阳角收口条,适用于墙面挂墙板阳角收口

18、挂墙板配强化地板收口条
挂墙板配强化地板收口条,适用于室内墙面挂墙板、地面强化地板的收口设计

19、挂墙板凹槽收口条
挂墙板凹槽收口条,适用于墙面挂墙板造型的设计

20、挂墙板平面收口条
挂墙板平面收口条,适用于墙面挂墙板造型的设计

21、挂墙板顶配强化地板带灯槽收口条
挂墙板顶配强化地板带灯槽收口条,适用于室内墙面挂墙板顶带灯槽地面强化地板造型的设计

22、挂墙板T角收口条
挂墙板T角收口条,适用于墙面挂墙板造型卡15、18厘板的设计

23、挂墙板装饰条
挂墙板装饰条,适用于室内挂墙板留缝镶嵌凹槽式设计

24、挂墙板带灯槽收口条
挂墙板带灯槽收口条,适用于墙面挂墙板造型的设计。

25、挂墙板拼缝夹条
挂墙板拼缝夹条,适用于室内挂墙板拼接镶嵌留缝设计

26、挂墙板侧收口条

挂墙板侧收口条,适用于挂墙板侧边收口

27、瓷砖墙身收口条
瓷砖墙身收口条,适用于墙面砖缝的分格装饰

28、挂墙板暗门收口条
挂墙板暗门收口条,适用于挂墙板暗门收口使用

29、瓷砖墙身阳角收口条
瓷砖墙身阳角收口条,适用于墙面瓷砖的阳角收口

30、瓷砖墙身收口条
瓷砖墙身收口条,适用于墙面砖缝的分格装饰

31、T角瓷砖墙身收口条
T角瓷砖墙身收口条,适合在已符合平整度要求的基层上粘贴瓷砖作收口装饰使用

32、带灯槽瓷砖收口条
带灯槽瓷砖收口条,适用于简约轻奢风格装饰空间带灯槽踢脚线收口

33、煽灰墙身强化木地板收口条
煽灰墙身强化木地板收口条,适用于室内墙面煽灰地面木地板或强化地板的收口设计

34、T角石材收口条
T角石材收口条,适用于墙身挂贴石材的装饰收口

35、墙身藏边收口条A型
墙身藏边收口条A型,适用于墙面煽灰设计的收口

36、带灯槽石材收口条
带灯槽石材收口条,适用于带灯槽墙面挂贴石材的设计

37、带灯槽墙身藏边收口条A型
带灯槽墙身藏边收口条A型,适用于墙面煽灰带灯光设计的收口

38、墙身煽灰面收口条
墙身煽灰面收口条,适用于墙面煽灰的设计

39、带灯槽踢脚线(三)
带灯槽踢脚线,适用于地面铺大理石、地砖,墙面煽灰乳胶的设计

40、卡式凹槽踢脚线A型
卡式凹槽踢脚线,适用于墙面煽灰(简约空间)的装饰踢脚线设计


因为公众号平台更改了推送规则    

若不想错过精彩内容      

读完后可以点一下「 」和「 在看 

新文章推出就会第一时间出现在你的订阅列表里哦


【声明】内容源于网络
0
0
陈设装饰
内容 521
粉丝 0
陈设装饰
总阅读3
粉丝0
内容521