
“The ability to simplify means to eliminate the unnecessary so that the necessary may speak.” — Hans Hofmann
简化意味着去掉不必要的元素,让必要元素凸显。
五一劳动节快乐!人的一天起码有三分之一的时间在工作中度过,劳动最光荣,劳动的场所也应该配得起这份“荣光”呀~
本期NORHOR整案,为大家推荐一套办公案例,打破正统的办公设计,舍弃多余的装饰,让空间开启场所的人文温度。
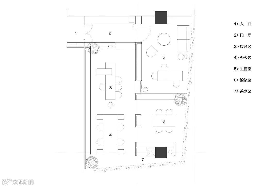
户型图

项目信息
面积:100㎡
地点 :广东省佛山市
设计单位:佛山市城饰室内设计有限公司
软装陈设:FANCY ART
空间摄影:隐象建筑摄影
一个空间,就是一个容器。
怎么填满这个容器,取舍之道非常重要。
门厅
入口的清简奠定了空间素净的基调,清透的大理石和玻璃雕塑,无不展现出至澄至明的特质。

向右转,就来到了接待区,空间的边界由此展开。


1、YUZU沙发 ¥MJ68btDlGYD¥
2、奥特洛扶手椅 ¥OQuIbtDoLpX¥
3、DED茶几 ¥87UVYbXgfjR¥
接待区
为了减少客户等待的心理倦怠感,相较于冷静的办公空间,接待区增添了活跃的亮色做点缀。无论是装饰画的色泽,还是灯具、座椅的造型,都相对活泼,又与空间的性格契合。



1、DED靠背椅 ¥1d88btDolVC¥
2、BRITT温莎椅 ¥WDn3YbXgGHO¥
3、装饰画(售罄)
办公区
白色是最具有包容性的颜色,只有舍弃多余的装饰,轻抹功能与美学的界线,才能自由地释放场所的灵动生机。需要创造性的工作,在灰白底色的办公空间中静默绽放。



KAHN靠背椅 ¥9YDDbtDMt8A¥
洽谈区
当然,如果有客户需要深入洽谈,或集中脑暴,一个相对封闭的空间能够聚焦更多的灵感。场所选用的桌子,也在低调的腿脚处彰显着与众不同的设计,与迸发的idea互相呼应。



1、KIMBELL书桌 ¥w9H5btDM0RE¥
2、KAHN靠背椅 ¥9YDDbtDMt8A¥
主管室
至于主理人办公室,则以低调的气派、不俗的品味为表征。无论是真皮沙发的选择,还是包豪斯风格的座椅、现代的玻璃水泥桌,每一件单品都值得玩味。




1、YUZU沙发 ¥MJ68btDlGYD¥
2、奥特洛扶手椅 ¥OQuIbtDoLpX¥
3、KAHN玻璃工作台 ¥HpEjbtDnBbk¥
4、KAHN靠背椅 ¥9YDDbtDMt8A¥
5、DED茶几 ¥87UVYbXgfjR¥
6、MEDINA抱枕 ¥gJcVYbXTst8¥
7、OBJECTUM茶几 (售罄)
8、mic茶几(售罄)
这所来自广东佛山的办公空间,以小造美,以时尚造趣味,打破办公“正统”的设计,让轻松充盈于此,也让办公室有了家的用心质感。
(编辑:不高的更,感谢 @城饰设计 与我们分享案例,该公司为A+设计师联盟会员,荣获2017年中国建筑设计奖「室内设计」最佳设计企业。)




