经过一轮激烈的角逐,持续两个月的
【广州创寓】空间设计大赛的评选结果
终于新!鲜!出!炉!
可喜可贺~
事不宜迟,马上公布获奖名单
一等奖
<< 滑动查看下一张图片 >>
冯厚华@J2厚华
该作品以“潘多拉盒子”作为设计主题,打破了常规的公寓空间模式,功能上的组合搭配,空间之间的渗透,使公寓达到一个非常理想舒适的状态,呈现出一个“令人惊喜”的共享空间。
服务受众以青年群体为主,以创造“家”为原型,打造由“家”组成的微型社区,利用“模数化”的构件方式营造,控制成本并便于后期维护。
在设计手法上,着重从构成的“模数化”表现空间的“多样性”。今时今日,常规式的公寓已无法满足年轻人的需求,因此年轻化,活力化的公寓更加能够引起共鸣,而模数化的特点在于灵活与便捷,通过多样化的组合,因地制宜,创造出丰富的体验空间,以此将人,生活,空间三者的关系紧密的联系在一起,塑造一个更具人性化的公寓空间。
二等奖
<< 滑动查看下一张图片 >>
陈立坚@CLJD联合创企
1、 功能分区比较清晰,动线运作合理。
2、 懂得年轻人的需求,能把复合的业态呈现出来。
3、 把复杂的建筑形体模块化,能在日后容易实施及灵活变动空间。
4、 成本控制有一定的思考,比较可操作实施。
5、 利用了互联网的工具及思考方式去进行复合业态的整合是不错的亮点。
<< 滑动查看下一张图片 >>
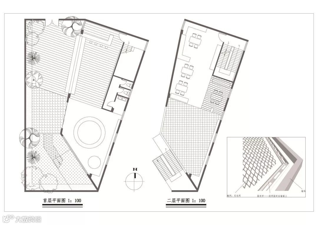
冯厚华@J2厚华
该作品以“角”为命题,通过不同的视角去发掘该空间的潜力,赋予年轻,活力的属性,打造一个集娱乐,文艺,休闲的共享空间。
年轻群体,兴趣爱好者作为受众主体,以不同功能的BOX形式构成各具特色的“兴趣角”。
在设计上,通过体块嵌入,咬合的方式,既保留动线区域的舒适度,也强化了空间的私密性。在功能选择上,针对当下年轻人的喜好主流以及氛围的营造“对角入座”。并且,在空间的局部区域上也做了场景打造,丰富公寓空间的多样性。
<< 滑动查看下一张图片 >>
谢漪钒@akoI营造组
作品“版筑立方 ”无论是设计思路铺展还是方案演绎都很清晰稳健,既有从宏观到微观的思考格局体现,也有契合竞赛主题、紧扣主推概念的设计阐述,而且表达清新、制式严谨、图纸完整,有一种落落大方地将设计者内在的思辨娓娓道来的美妙感觉,让人不禁期待如“版筑立方”轻盈透亮的空间得以实现的真实效果。
三等奖
<< 滑动查看下一张图片 >>
谢漪钒@akoI营造组
评审阶段第一眼看到作品“加厚的边界”时,正如它的作品名字,已然让人惊觉十分edgy,在众多作品中,它充满了前卫果敢的设计力,甚为突出。现在回头再重新审阅,依然对于该作品中敢于打破建筑室内外边界、置入第二交通核心筒同时赋予它最大化的空间记忆点这种种的尝试深感触动,在我看来它可以充分发挥未来该空间片区的社交核心作用,同时成为一个不可错过的场地“打卡点”,创造出属于项目自己的“边界”。
<< 滑动查看下一张图片 >>
冯厚华@J2厚华
在快节奏的生活中,需要一个地方停一停,看一看,聊一聊,舒适的休闲会让我们的生活更加的美好。而该作品为我们呈现出一个别出心裁的休闲空间,以“躺”的方式去体验,享受休闲的状态。
服务受众以年轻群体为主,将首层与二层做氛围上的设计区分,结合功能以不同的形式运营。
设计师运用氛围的营造,打造“动”与“静”的状态空间,首层为“动”的状态,进行室内外空间的融合利用,具有较好的延展性,多变性,。二层为“静”的状态,以书吧的形式呈现,通过“躺下来”的状态营造一个舒适交流的氛围。
<< 滑动查看下一张图片 >>
陈立坚@CLJD联合创企
1、 复合业态的空间利用比较合理。能捉住年轻人的生活形态及空间需求。
2、 建筑形态及元素比较简约、清爽,同时又有一些文创的元素,“无界”这个命题比较能符合这个复合业态及年轻人的喜好。
3、 能抓住重点,空间的分布也相对合理。
<< 滑动查看下一张图片 >>
陶东燊@猫系设计
设计师以互联网的虚拟与现实为理念,通过内外融合、虚实对比的手法,塑造出丰富的空间场景,同时也形成良好的视觉反差。
功能界定清晰、简洁,开放式的大空间,搭配模数化的可变家具,为不同使用场景的切换提供便利,体现出设计的灵活性和延展性,以及对实际运营的思考。
<< 滑动查看下一张图片 >>
陶东燊@猫系设计
设计者对年轻住户的兴趣进行分析归类,把各项功能合理流畅地布局在有限的空间内部。同时把尖角位置通过定制家具化解空间使用难的问题,实现内部空间利用最大化。
金属板虚实结合,起到较好的隔离作用,使每个功能实现独立区分,若加上可移动设计,空间更能实现更多的融合变化。
二维码的设计看出设计团队的创意与心思,给评委们和创寓团队带来深刻的印象与讨论,使设计不仅仅停留在现实建筑上,使年轻人热爱的虚拟社区与现实社区巧妙地结合,为社区的运营创造了更多思考的空间。
入围奖
{知青} by陈映君
创元 by王土坤+林培标
塑料地球Plastic Or Planet
by梁思韵
MEOW X CREATE by罗力嘉
茴 by古心悦+杜泳曦
创寓-绿色隔断 by覃博+龙文杰
格室 by甄子霈+萧涵弋
享与遇 by卢衍宣+梁文惠
创客生活式体验馆 by邱俊凯
心灵驿站——二重奏 by李雪
Encounter(邂逅) by黎铭晞
极简·灰 by梁振堂
奖金&奖品
恭喜各位获奖者!!!
不单有现金大奖
还能抢先入住我们创寓广州店
店长芋头马上带看公寓房间!内有乾坤哦!
话说店长芋头入职前还是只设计湿呢!
【广州创寓】空间设计大赛
专业
评委
场地
支持
主办
单位
合作
支持

