◆ ◆ ◆ ◆
创想都市,寓见美好
CREATE THE MODERN, MEET THE BEST
◆ ◆ ◆ ◆
合富辉煌(中国)旗下合富创寓广州首店——广州创寓-龙洞店将于今年8月中旬正式开业。
为探寻客户需求、征集设计创意,同时为广州创寓项目启动造势,3月18日“广州创寓公共空间设计大赛”正式开始。经过两个月的宣传、报名、评选和公众投票,设计大赛圆满结束,并于5月30日举行了盛大的颁奖典礼。
颁奖典礼邀请到一众业界大咖出席,为大赛增色不少:
颁奖典礼现场,嘉宾对于“房地产市场向存量更新倾斜”、“公寓租赁行业发展”、“客户需求挖掘”、“开发的市场与运营思维”等话题,分别作了独到的发言。
更精彩的是,获奖者现场介绍了各自作品的设计初衷,金句频出,引发嘉宾、评委提出问题和观点,场面气氛十分热烈。
<< 滑动查看下一张图片 >>
创
作
思
路
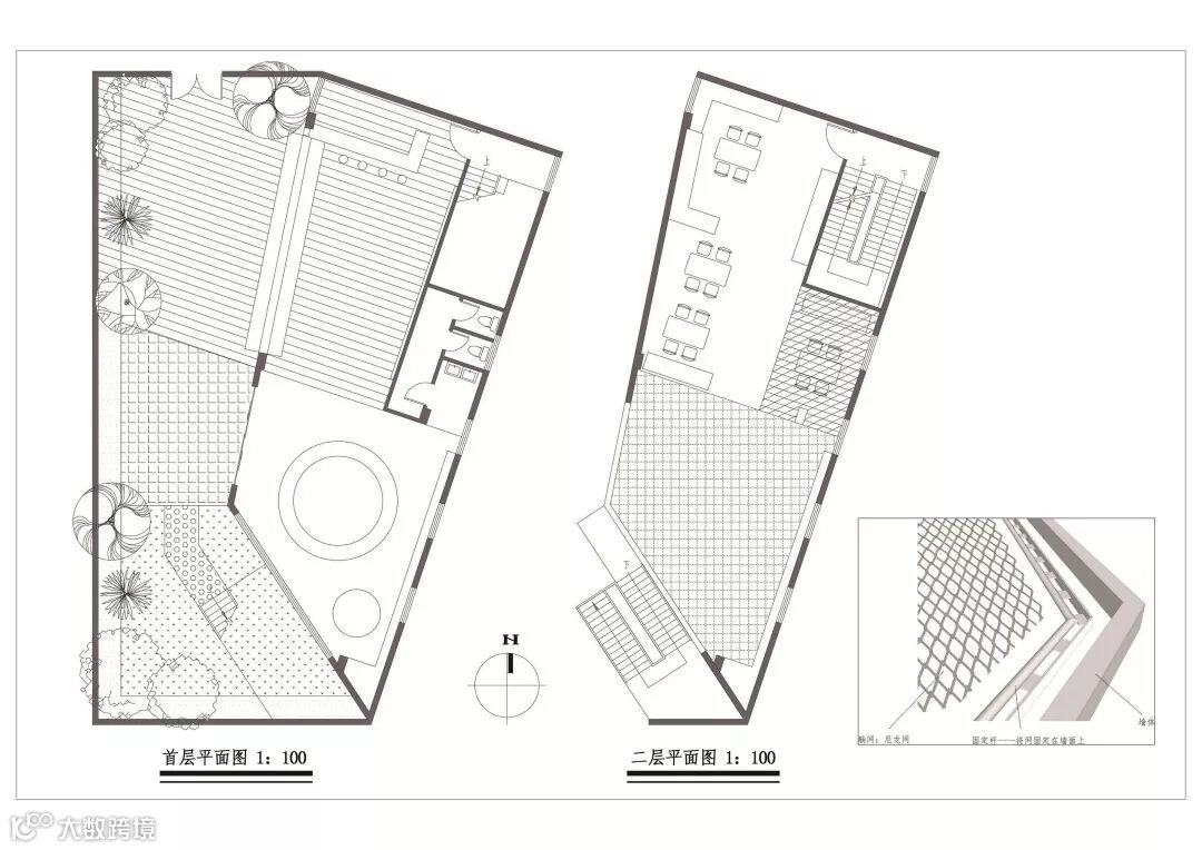
创的核心其实就是要追求个性不被定义,所以我们对这个题目的回应是:一个没有被定义、没有主题的空间,才能为创造提供更多的可能性。这种灵活的社区公共空间,更加体现出社区的创客文化,还有创客精神的所在。
在方案里面我们也加入了这种盒子,它其实有很多功能,就是结合着我们一些年轻人比较喜欢的东西,比如撸猫盒子,也可以是城市的一个橱窗,还有一些可以通过APP来进行租用的共享储存空间。
就是这些大大小小的盒子组成了我们这个方案:潘多拉盒子·垂直生长。
<< 滑动查看下一张图片 >>
创
作
思
路
我们理念和一等奖非常相似,也是通过一种盒子的模块化来进行设计。
我们比较关注共享概念的体现:使用模块化的产品,它既可以作为储存,也可以作为桌椅板凳,包括书架等,形成一些室内家具。
同时我们也考虑到场地周边的环境和动静分区:
一层主要是动区,因为外面有绿化,我们建议做落地窗把室外的景观引进室内。
二层结合周边广工的学校环境,做一个阅览为主要功能的空间。在形式上,像把出挑的橱窗打开,从外面来看会有一种书架的感觉。
<< 滑动查看下一张图片 >>
创
作
思
路
一开始去思考这个主题的时候,我们第一步想要去做的是对年轻人生活和交际方式的探讨。
随着网络的发展,年轻人越来越喜欢去跟熟悉/陌生人分享:分享自己的生活,自己的兴趣。通过微博、视频日志等方式,分享自己的日常生活,然后遇到相同兴趣爱好的人会给你们点赞、评论留言,这其实是形成了一种以兴趣和个性为导向的社交方式。
我们综合考虑、总结了年轻人的社交方式,在这个方案中有所体现。
我们把很多的兴趣点、所谓的网红元素,混杂在了一个建筑里面,使不同兴趣的人都可以在这个空间里面找到自己喜欢的元素,并且跟他人产生关系。
包括我们兴趣角的理念,使用者可以自己发掘想要去进行的活动,去改造环境空间。
<< 滑动查看下一张图片 >>
创
作
思
路
对于“创”这个主题,我们想起了空间的碎片性,通过楼板的错层,把这个空间做成一些合适的尺度:一层的高度可以当成楼梯,两层的高度就可以坐着,三层的高度就可以当成一个书桌。
把建筑空间的一些功能交给使用的人来决定,而不是把它限死了,可以显得空间特别的灵活。
<< 滑动查看下一张图片 >>
创
作
思
路
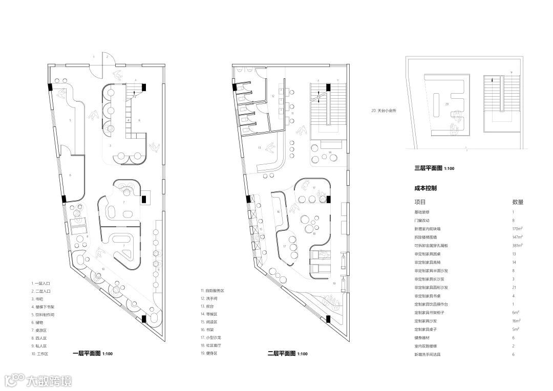
大赛的题目范围比较大,它就一个创字。
对这个创字我们怎么理解?就是我们作品的题目:一个躺字。这个主意其实是躺在床上的时候想出来的。
对于“创”字我们首先想的是,怎样能有一个比较崭新的社交模式。因为共享空间现在已经是一个很流行的话题,各种模式也做了很多。
那社交模式有没有可能躺着去进行?
躺的时候一个人处于很舒服的状态,可能对周边的人的警戒性会降低。有没有可能让陌生人之间进行有效的社交活动?
所以我们就在二层做了这样一个大网,让认识的、不认识的人,都能够躺在一起。
社交活动是使用者自己去决定的,对应那些比较喜欢社交活动的使用者,我们做了一个很开放的空间:我们将房子跟外面的小庭院做了一个打通,成为一个很大的多功能空间。它可以是多用途的,比如展览、看电影或者是喝咖啡,同时也满足动静分区。
<< 滑动查看下一张图片 >>
创
作
思
路
感谢大赛给我们个人展示的机会。大家可以看出来,我的组员是我的女朋友。她不是我们专业,之前一直在问我建筑学专业是做什么的,所以我打算拉她参加一个比赛,让她一起来更加直接了解一下。
我们的题目是无界,也是跟创业主题相关,希望增进现在年轻人更多的交流。
我们对整栋楼的功能和空间都做了一个无界,让使用者在无界的功能空间里面也可以做到无界的交流。
我们在每一层都布置了不同的功能,但是功能之间规划了一个规定的路线。使用者在这个路线当中可以去参与某一个功能,同时又可以跟参与另一个功能的使用者进行无界的交流,最后得出了这个方案。
<< 滑动查看下一张图片 >>
创
作
思
路
我们希望把艺术性的空间融合到生活当中。
在一层我们做了一个“互联网空间”,是一个多变的空间,窗帘拉起来白天办公可以用,到了晚上窗帘拉下来,就可以形成一个年轻人很喜欢的、像KTV这种娱乐性的、自我释放的环境。
然后二层我们就做了一个大空间,通过桌椅组合和一个路演的平台,去给年轻人提供更多的交流。
我认为在未来20年互联网设计肯定还是一个主导方向,这种公共空间也是我们一个努力的方向。
对于建筑角落的三角形空间,我们挖了一个庭院,从一层通到三层,以表达我们的一个理念:
一层互联网、二层现实空间、到第三层就是自然。通过自然去连接我们人类。
<< 滑动查看下一张图片 >>
创
作
思
路
首先感谢合富给了我们一个机会去发挥我们的创意和能力。
大家可以拿出手机扫一扫我们的二维码。
我们的方案除了用金属板去分隔一些灵活的空间让使用者有不同的体验,还根据年轻人的兴趣做了一个线上的平台,可以更高效地使用这个公共空间。这也是方案的重点。
一个建筑可以运作起来,是因为这个建筑会令人觉得很舒服。这个线上平台让不同兴趣的朋友可以在线上交流,是个方便快捷舒服的体验。
颁奖礼在大合照中落下帷幕
广州创寓空间设计大赛圆满结束
但,话题仍在继续……
租来的房子,对年轻人而言,意味着什么?
自己的生活,他们又期盼着什么?
颁奖典礼之后,我们对其中八个获奖队伍进行了深入的采访,从打游戏聊到了撸猫,从宅大床聊到了社区交往。
请持续关注合富创寓公众号,《猫店长采访设计精英》系列,剖析未来新锐设计师们对“生活”的看法!
合富创寓广州龙洞店
还有猫店长带看房☆

