定期干货分享!感兴趣关注上方蓝色字体!
根据相关数据:2025年4月,新建商品房销售额同比下降3.2%,销售面积同比下降2.8%,除部分一线城市部分区域较前几个月基本持平。
2025年仍有购买需求的基本是品质改善及刚需群体,在2025计划入手新房的同志,不得不了解一下新建商品房得房率的提升规则!
例(某地方性文件):
意味着阳台进深可以加大到2.4米,且无论设置在主体内,还是悬挑主体建筑以外,只要是敞开阳台都只计算一半建筑面积,举个例子:

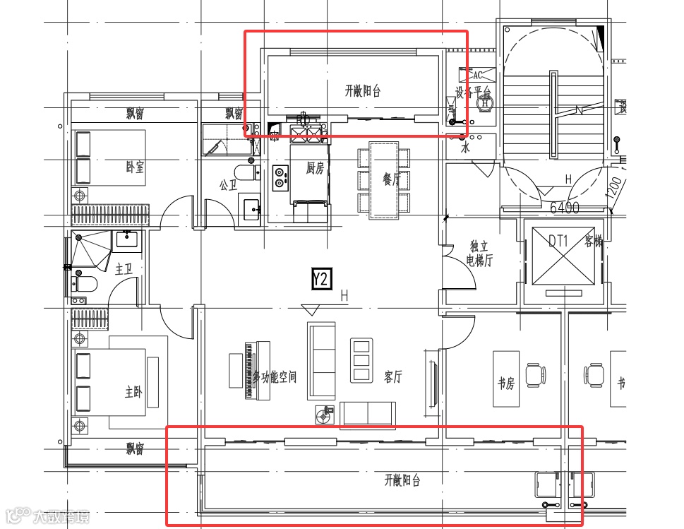
上图为北侧设置进深2.4米阳台,面积约8平方,后期可以直接把下部厨房改造到阳台上面,餐厅区域可以富裕出更多的面积做其他功能使用,(物业允许封闭的情况下)
南侧设置18平方的贯穿阳台,可以预留后期客厅或者南侧卧室内部空间改造的空间,即便是不改造,一个面积接近20平的阳台,体验感较之前6.7个平方还是完全不一样的。
得房率为什么会提高?
两个阳台面积共计26平方,假如该套住宅建筑面积130,得房率为85%,那么公摊面积就是130X(1-0.85)=19.5平方,
实际阳台只按照一半的面积销售,只计了26X0.5=13个平方,
那么实际使用面积就是130X0.85+13=123.5平方
那么实际得房率可以参考123.5/130=95%
多地要求是户型阳台投影面积不大于楼层投影面积20%(上限)即可,户型面积及阳台面积分配合理的情况下,得房率超100%并不奇怪了!
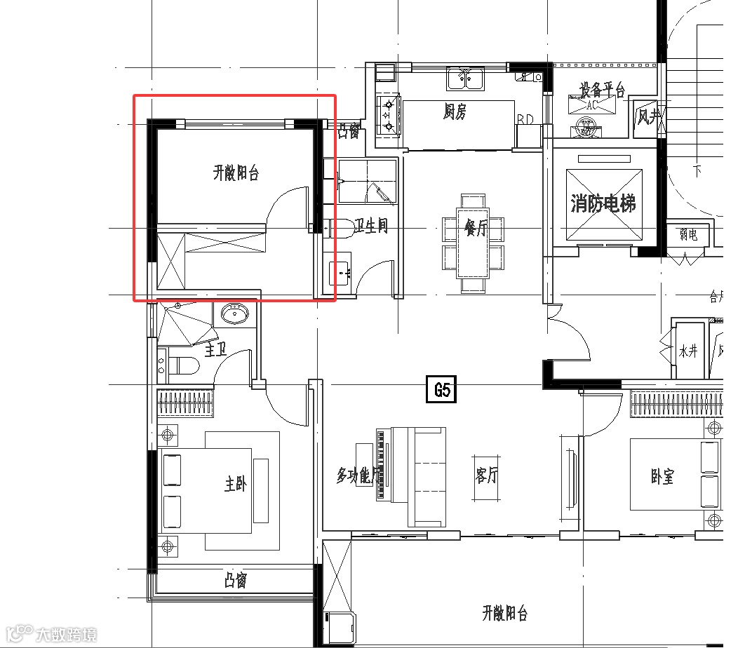
一张不够全面,我们再看一张利用阳台改卧室的情况:
下图阳台直接设置在主体结构内,如果地方允许做敞开阳台,面积同上只计入一半,后期可以直接改造成一个房间,要知道这在24年前大部分地区主体内的阳台算全面积,这样设计讨不到好因此大多不会这么去做,现在则不同,他同样可以让业主多得半个阳台面积!
除此之外很多地方陆续出台了关于居住小区品质提升的相关文件,包括节能率提升、层高提升、车位尺寸加大等等指导性文件
2025年的楼市战场,正在用"实打实"的平方米重新校准信任坐标:政策铁腕破冰,房企躬身入局,而购房者攥紧的房本,终将丈量出行业真正的价值底线。
老旧小区原拆原建!4大条件缺一不可,超70%居民支持焕新家!

