搜索
首页
大数快讯
大数活动
服务超市
文章专题
出海平台
流量密码
出海蓝图
产业赛道
物流仓储
跨境支付
选品策略
实操手册
报告
跨企查
百科
导航
知识体系
工具箱
更多
找货源
跨境招聘
DeepSeek
首页
>
《破解楼梯间“三宗罪”:陡峭、昏暗、占空间,这样设计全解决》
>
《破解楼梯间“三宗罪”:陡峭、昏暗、占空间,这样设计全解决》
麦塔建筑科技
2026-02-10
3
导读:破解楼梯间“三宗罪”:陡峭、昏暗、占空间,这样设计全解决
农村建房现在多以2~4层为主,楼梯作为建筑中垂直交通
工具
,在建房中,作用突出,本文从楼梯设计建造中方位、尺寸,
角度
以及细节要求做为
切入点,用图文结合的方式分解讲述
方位:
楼梯是向上走的交通工具,单层建筑中常将楼梯置于室外,室外楼梯间由于荷载小于建筑本身,年限久长以后常会出现沉降变形裂缝,规避这一个问题主要做法可以主体做好之后等几个月在浇筑楼梯的混凝土,见下图
多层建筑中常把楼梯放置于室内空间,放于室内时候方位选择时,如果有条件可以放于东侧,从农村传统习俗来讲东侧位高,楼梯讲究“步步高升”
楼梯不要放置正对大门位,大门是接纳气流的方位,楼梯直对大门,影响室内气流稳定,倘若无法避免时,可以采用玄关遮挡
角度及踏步尺寸
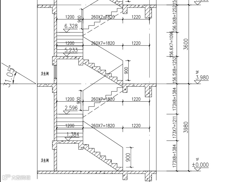
楼梯在设计中角度不宜大于35度,角度过大,爬行困难,角度太小楼梯占用空间尺寸过大,正常控制在20~35度之间,我们以踏步宽度260mm,高度157mm为例,楼梯角度为31度,是比较好用的一个尺寸,正常控制宽度不小于260mm,高度小于175mm,家中老人及儿童使用频繁的楼梯,可以适当再放缓
楼梯梯段及平台尺寸
楼梯梯段宽不宜小于1.2米(考虑两个人上下交错使用,一个人成年人肩宽+手臂摆幅宽度在550~600左右),
楼梯平台宽度应大于等于梯段宽度且不小于1.2米,经常搬运大件物品时,应适当加大,见下图:
楼梯梯段之间高度
楼梯上部梯段与下部梯段之间高度应大于2.2米,上部平台与下部平台之间高度应大于2.0米,这个高度要求主要是为了人疏散或者行走时惯性不至于碰头,见下图:
楼梯栏杆高度
梯段上栏杆高度不小于0.9米,考虑防护的同时考虑便于抓手使用,在平台处或者临空处,水平扶手
长度
大于0.5米时候,栏杆应加高至1.05米,见夏图:
家中有老人及儿童经常使用时候,可设置双层扶手,见下图:
楼梯梯井宽度可以留100~150为宜,过大时有儿童坠落的风险
扇形楼梯
咱们很多人在农村建房时候会考虑做挑空客厅+旋转楼梯,那么设计旋转楼梯时候虽然美观,要结合实用性考虑,扇形楼梯在距离扶手中心0.25米处梯段宽度应不小于0.22米,才是好用的旋转楼梯,见下图:
楼梯的采光
楼梯间由于平台的原因,外窗通常不能与周边外墙窗高度齐平,希望楼梯间外窗与周边墙体外窗高度一致时,可以选择平台梁内退,详下图:
如果做高位窗户可以选择在平台之上页可以选择在平台之下,建议选择在平台下,这样楼梯间通行时候不容易碰碎玻璃,而且没有楼板的遮挡,太阳光可以照射的更深,有助与采光,见下图:
在农村自建房中,想要一个方位合理,尺寸细节合适的楼梯,应在布局阶段详细规划好,避免在建房过程中临时修改,希望以上数据能帮助到你!!
感兴趣及需要建方设计的朋友欢迎关注:
好宅养人,好卧养神:打造自建房“黄金睡眠系统”的终极指南
厨房设计好不好,关键看这两点:环境风水与人体工程学详解(多图)
民房中堂屋设计全指南,兼顾礼俗与生活
藏风聚气,顺天应人:民宅设计中的千年环境哲学
【声明】内容源于网络
0
0
麦塔建筑科技
致力于建筑改造、乡墅领域的探索~
内容
48
粉丝
0
关注
在线咨询
麦塔建筑科技
致力于建筑改造、乡墅领域的探索~
总阅读
135
粉丝
0
内容
48