上海亲和源康桥社区:
在上海市南汇区康桥镇,隐匿着一处养老领域的璀璨明珠 —— 上海亲和源康桥社区。作为国内首个会员制养老社区,它以中高端定位,精心构筑起一片专属于老年人的温馨家园。
社区规划独具匠心,矗立着一栋 7 层的老年人度假酒店,散发着闲适与惬意的气息。12 幢无障碍设计住宅楼,充分考量老人的行动需求,为他们的日常出行提供便利。还有一栋护理楼,与配套社区医院紧密协作,让老人的居住、护理、医疗需求足不出社区便能得到妥善解决。
运营模式:
与普通养老院不同,居住单元以家庭为单位,让老人的居家习惯得以延续,每个老人配有一个管家、是即相对独立但又与社会有密切联系的大型养老社区,社区通过购买会员或缴纳年费的方式接纳老人入住,800 多套居室可轻松满足 1600 名老人的居住需求。
护理中心——颐养院
健康会所
度假酒店
酒店共设74套客房,公寓式配套,酒店式管理,提供分时度假、老年旅游休闲、短期托老以及亲和源老年新生活体验等服务。
配餐中心
建筑面积:2574.6平米,管理公司按营业额与亲和源分成,餐厅只为护理和疗养人员提供送餐服务,公寓内老人需自行前往餐厅就餐。
商业街
亲和学院
泛会所
亲和源的入住门槛较高,鉴于当前老年人的经济水平,这种运营模式主要面向了少部分的中高端群体。
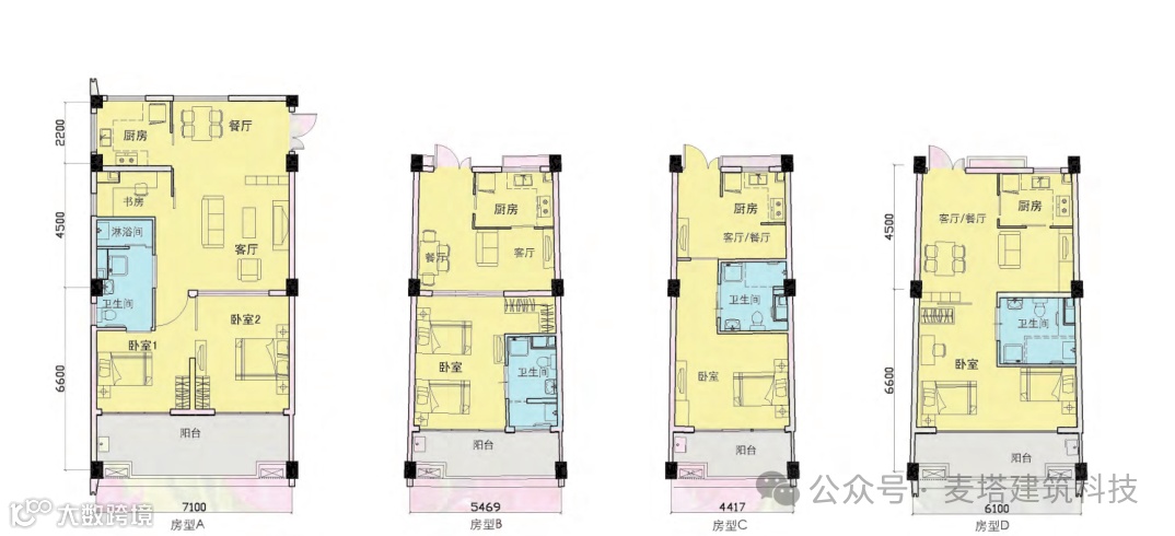
公寓户型设计:
细节设计:
居室内房间、通道既考虑轮椅的通行,也能满足担架通行,
所有户门净宽满足1.2m,卫生间考虑进入轮椅,面积均大于5平,卫生间无高差门槛,淋浴间设置扶手,也提供了座椅
阳台考虑轮椅通行,进深均大于5米,且与室内过渡不设置高差
紧急呼叫系统
在 客 厅 、 卧 室、床头 、 卫 生 间 内 均 设 有 紧 急 呼 叫 系 统 ,
一般 设 置 在 老 人 随 手 就 能 够 到 的 地 方
智能报警系统
对 于 独 居 的 老人,卫生间设置红外探测器,感应老人上厕所时间,若时间过长,将向管理中心和楼栋管理站报警,以便发生意外时进行紧急救 助 ;
卧 室 客 厅 设 置 红 外 探 测 器 ,若感应到老年人长时间不动,将向管理中心和楼栋管理站发出报警信号
公共区域设置闭路电视监控系统,由保安监控管理中心及时监控,应对突发事件,采取有效措施
在充分保障老年人居家生活之自由与私密的基础上,亲和源为老年人提供非常全面和具有针对性生活照料、专业的医疗保障、丰富的娱乐活动等服务。
自开园以来,入住率已达到90%以上!衰老从不意味着妥协,而是从容开启人生另一段华章。当专业照护遇上家的温度,当独立空间融入社群温情,这座浦东康桥的养老新地标,正在证明——品质养老,本该如此优雅且充满尊严!
新房入住5年渗水谁来买单?1篇文章告诉你房屋建筑各种材料质保期!

