图片来源于网络
随着经济、社会的迅速发展,城市规模不继扩大,城市化进程的不断加快,智慧交通已然成为推动经济增长和社会发展不可或缺的力量。浙江省作为交通强国建设试点省份,代表的不仅仅是智慧交通城市未来的新时代,更承载了一个又一个时代浪潮的引领者。
项目效果图
在深入实施“八八战略”,以“两个先行”打造“重要窗口”等重大部署以及萧山区“一会一馆一园一镇”的智慧交通产业发展政策大背景下,作为“一园”的智慧交通科技园以智慧交通与数字交通为产业核心,营造丰富产业超级生态圈,助力浙江省万亿级综合交通产业发展。
无缝对接 助力企业商务互动
智慧交通科技园坐拥便捷交通网,毗邻萧山国际机场,距离地铁11号线垦辉六路站(规划)直线距离约300米,地铁19号线(机场轨道快速路)知行路站直线距离约3.5公里,无缝对接杭州主城区“地铁时代”,全面释放区域影响力,将更有力加速企业的开放型经济发展与商务出行。
项目区位图
动静相宜 智慧交通与自然共生
园区双面滨水,秉承着“与生态融合、与自然共生”的先进设计理念,整体分布动静相宜、生态灵动的自然景观。规划滨水景观,屋顶花园,下沉广场等,风景与功能兼备。结合园区与智慧交通馆共享联动,并配备开放、便捷、智慧的园区路网与智慧交通基础设施。动静相宜的自然景观,园区双面滨水为企业带来舒适环境和智慧化展示平台。
项目效果图
加速发展 一站式孵化产研基地
园区包含独栋、平层等产品,建筑面积约1000-7000㎡不同面积段。同时还配置大轿箱货梯与隐形吊装窗口,探索“工业上楼”新模式。既能满足企业不同阶段的产品需求,又能满足后工业时代制造企业对智能厂房的使用。
项目效果图
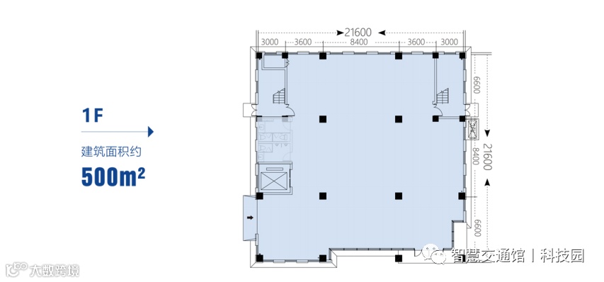
理想之选 7.8米层高灵活空间
首层7.8米层高开阔大气,室内格局方正、布局合理,灵活的建筑空间可自由组合,满足科技企业先进制造、研发实验、总部办公等不同需求,多元化需求尽在掌握,自由组合的建筑空间,也为企业未来增速发展带来无限可能。
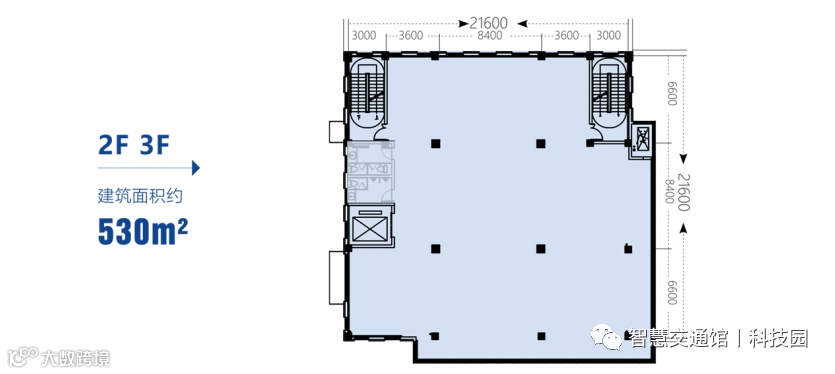
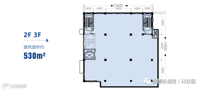
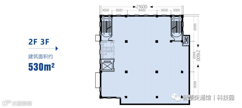
15#楼户型图
与城市共生长 共建高质量发展
智慧交通科技园将积极发挥未来智慧交通研发创新基地、企业总部基地、产业服务基地的功能,在前沿技术创新、综合交通产业培育、数字交通建设、产业合作等方面将引领浙江省综合交通产业的全面发展,为构筑浙江万亿级综合交通产业集群做好示范带头作用,夯实萧山综合交通产业示范区的基础,为浙江省推动高质量发展建设共同富裕示范区贡献力量。
层高约4.2-7.8M
建面约300-3000㎡
独栋+分层花园式产研基地
一站式孵化加速企业蓬勃发展
点击下方 了解更多项目信息
本文章信息仅供参考用作示例之用,其内容不能代表现在或将来的物业实际表现,最终规划设计以政府批文为准。本公司保留对宣传资料修改权利,如资料有误差或变更,恕不另行通知,亦不承担任何责任。

