好房子 新理念
立方之间,共享新生
全国“好房子”设计大赛-参赛作品
△ 项目视频 ©REAMC TY
△ 建筑低点视角效果图 ©REAMC TY
南京,中国古代六朝古都。作为长三角地区重要的经济、文化中心,充满历史厚重和城市的活力。城市发展日新月异,城市与历史、城市与自然、城市与人的关系日益紧张。而雨花台区,创新与科技齐飞,文化与生态共融,正在聚力打造“绿色生态宜居典范区”。
基于此背景,雨花台区板桥新城(南京市九大新城之一)中部组团作为全国“好房子”设计大赛选址之一,打造高品质“好房子”设计样本,以科技赋能和创新驱动新时代住房高质量发展。本次发布为睿住天元参赛作品。
△ 建筑鸟瞰视角效果图 ©REAMC TY
雨花台区板桥新城中部组团规划形成“双核、两轴、三带、六片”结构,急需一个整合文化、娱乐、便民服务的居住社区,满足市民需求。
本设计地处产城融合新兴片区,位于生态、娱乐休闲轴线上重要节点,以打造文化、生态、特色产业融合高地、自然生态宜居社区、青年人乐活之地为目标。
设计如何满足城市更新的迫切需求?设计考虑D地块与周边地块形成船舶工业遗迹群,工业历史文脉清晰,设计以新旧对话形式,规划A、D两地块联合打造。
以“活力山谷,造浪计划”为设计思路,通过“引水造浪”焕新老船厂空间活力。搭建轴线网格重构场地脉络,在A地块形成人才山谷居住组团,编织两地块多维立体交通网络,大面底板营造高面生态社区。
△ 周边现状 ©REAMC TY
△ 总平面图 ©REAMC TY
如何响应新时代住房高质量发展,满足日益增长物质与精神的生活需求?设计围绕“新设计、新住宅、新生活”的理念,并根据对年轻人购房核心关注点的调研,得出“协调美观、功能适配、百变户型、未来智慧、全龄友好、商业配套、经济舒适、文化传承”等内容为关键词的“好房子”需求。
推演出“立方之间,预见未来生活”设计主题。以科技、历史、绿色为载体,通过嵌入多元复合功能板块、绿色渗透打破自然与城市的界限、智慧社区底座数字化搭建等设计手法,打造产业融合、文脉传承、居住升级、个性与品质的复合社区,符合新时代住房高质量发展“适用、经济、绿色、美观”的建筑方针。
如何全方位实施“好房子”建设,全面提高住宅建筑产品品质?睿住天元设计团队打造了「好房子·137体系」。围绕“以努力让人民住上更好房子”一大核心目标,“工业化、数字化、绿色化“三化融合设计手法,搭建“七大场景”助力好房子建设。
该体系经过模型推演及项目实施反馈,具有较强的可实施性,可满足系统性居住性能提升的要求。
137体系
七大场景建设及应用
NO.1 建得美观
#建筑风貌——整体自然和谐
立面以群山为灵感,通过高低、形态的变化与组合,采用地面、平台与屋顶垂直绿化相结合的方式,打造了一个立体多层次的城市绿谷形象。
#开放社区——城市共融
“历史文化、社区邻里、生态宜居”三线交织,映现生活巧妙张力,打造一个“人、社区、城市”无界交融的活力开放社区。
#绿色共享——绿脉连通,环境协调
因地制宜的构建以社区中心绿廊为骨架的空间结构,连接住区与公园、城市绿轴,并营造出一系列亲切、实用、功能灵活的景观绿化空间。
NO.2 住得舒适
#绿色低碳节能技法
适应当地气候特征与场地条件,降低建筑供暖、空调、照明系统能耗,提高设备能效;充分利用可再生能源,以最少的能源消耗提供舒适的室内环境;在减碳的过程中,碳减排比碳补偿更为重要。
△ 低碳社区 技术亮点示意图 ©REAMC TY
#场地微气候
融合大区庭院绿化、宅间平台绿化、空中花园绿化、退台绿化、垂直绿化、屋顶花园绿化等多个绿色生态场景,打造多层次的绿化开放空间系统,降低场地热岛效应,创造有利的场地微气候,降低建筑外围护结构表面温度与室内空调负荷,节能环保。
#海绵城市设计
在设计中充分融入海绵城市建设理念,通过设置绿色屋顶、雨水花园、透水铺装、雨水收集与回收系统,实现控制雨水径流量、节约水资源及景观功能。
#新能源管理
本项目引入IOC智能运营中心、楼宇控制管理系统,光伏发电系统、空气源热泵辅热系统、新能源充电车位等措施,通过对建筑用电、用水、碳排放量、能源系统报警等数据分析,实现对建筑能耗的总控和绿色能源的高效利用,针对多种场景, 持续进行智能节能算法深入优化,合理实现碳管理系统,达到经济、可持续发展的目的。
#工遗保护与建筑更新
工遗改造延续城市记忆,同时让所在城市街区从单一生产的工厂区域,转变为多元文化艺术交融的生活地标。以工业风格为基调,保留旧元素,延续社区特色沿街商业,合理置入社区服务配套。
NO.3 玩得多样
#工业遗迹传承——建筑改造及街区活化
以“唤起、转化、植入”为思路,将工业元素保留转化,以“追溯、重塑、归宿”为主题,连接路径,联合空间,与城市空间与历史友好互动。
#文创商业空间——主题鲜明,情景多样
以工业记忆符号为元素,激活主题性特色商业街区,吸引人群。赋予多元业态高效组合,形成多场景集合的城市美好生活聚点。
#邻里共享—— 一体化微社区
将单元化的居住空间进行自由组合并与社区功能相融合,利用连廊、大板形成二层平台,高大的架空层与灰空间提供了鲜活、亲密、多样的开放活动空间。打破传统的居住方式,利用同层共享社区、竖向公共交往空间,营造微社区生活模式。
NO.4 活得个性
#单元私享花园
隔景相望的错层花园,不仅提供了更广阔的视觉体验和更丰富的立面细节,半开敞半遮蔽的空间形式更是闹中取静,既能实现邻里交往的社交需求,同时也提供了家人之间情感交流的私享空间。
#定制化的家庭空间
满足现代社会不同类型人群对日常生活、情感生活的需求,定制多元化的生活场景。
NO.5 设得齐全
#全龄友好———覆盖教育、运动、康养
整合教育文化资源,新建图书馆、创客学院、幸福学堂、托育中心等,实现“全龄化”教育覆盖。社区运动系统,将跑道、运动场、游憩场等场地串联成运动社交场所,激发社区活力,能让参与者得到运动与社交带来的加倍满足。整合医疗资源,新建长者照料中心、社区健康诊所、健康养生馆等,打造全龄化健康医疗服务。
NO.6 用得便捷
#线上线下融合——智慧社区&CIM智慧平台
结合现代科技,打造智慧型综合社区。搭建社区CIM平台,基于各试点子系统的数据互通,汇聚建设相关的关键指标和BIM、GIS等模型,形成全面的数据资产,为智慧化运营奠定基础。
#智慧家居——7大智慧场景,专属智慧家
利用AIoT平台、AI技术以及数字孪生技术,以空间智能为核心,为住户提供更智能、更便捷的生活体验。
NO.7 造得优质
#BIM正向设计&设计算量一体化
利用BIM模型三维可视化的特点,可以实时判断复杂位置设计的准确性与合理性。BIM全过程应用中可基于模型实时提取工程量,形成设计过程中的工程量报表,提前识别项目超限风险点。

#产品模块化——模块化建筑、装配化装修
住宅通过工厂内高效完成模块的结构、装修、水电、设备管线、卫浴设施等施工工序,在现场通过可靠连接技术快速组合拼装成建筑整体,是目前建筑工业化程度最高的绿色建造方式,实现了“像造汽车一样造房子”。综合考虑装配装修与结构系统、外墙系统、内墙系统、设备管线系统等一体化设计。
△ MIC 示意图 ©REAMC TY
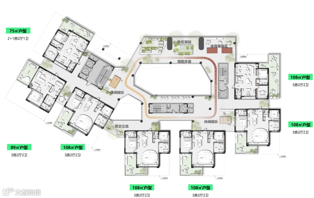
NO.8 设计图纸
△ 标准层平面图 ©REAMC TY
△ 标准层平面图 ©REAMC TY
△ 场地剖面 ©REAMC TY
△ 立面图 ©REAMC TY

▋▎关于我们
广东天元建筑设计有限公司(睿住天元)定位设计科技综合服务商,具备全过程全专业设计咨询能力及一体化的设计与服务。作为具有现代化管理思维的建筑设计十项全能企业,我们坚持以优质的设计与服务,为客户提供全专业、全品类建筑设计综合型解决方案。
企业拥有建筑设计甲级、规划乙级资质、园林乙级资质。业务范围涵盖城市规划设计、建筑设计、景观设计、室内设计、土建施工图设计、装配式设计、智慧生活设计、乡村&康养产业化设计、EPC&全过程工程咨询服务。
成为了广东省勘察设计协会理事单位、广东省建设工程绿色与装配式协会副会长单位、中国建筑业协会绿色建造与智能建筑分会会员单位,国家高新技术企业,列入广东省装配式建筑产业基地,参与国家BIM及智能化标准修编。
企业连续12年获广东省守合同重信用企业,获评2019年度广东省工程勘察设计民营企业勘察设计收入十强企业,成为华南理工大学、华南农业大学、广东工业大学等多个高校的校外基地。
编辑/视觉/校对:睿住天元战略发展部
本文由睿住天元平台发布,欢迎转发,如需转载请与后台编辑联系。
/ MORE /
……

