

GHDA环球人居设计大奖(Global Habitat Design Awards)由新微设计媒体矩阵联袂WHA世界人居设计联合会共同发起设立,旨在推动世界美好人居环境的进步。
广东天元建筑设计有限公司(睿住天元)美的·西径晓风售楼部项目以高质量高水准的完成度,斩获2021年GHDA环球人居设计大奖银奖。
我们都在追求一种生活本真的回归,栉沐清风,枕月而眠。
We’re all in pursuit of identifying the essence of our life.
见「云无心以出岫,鸟倦飞而知还」的造化,享「采菊东篱下,悠然见南山」的闲情,在都市快节奏中,寻求「结庐在人境,而无车马喧」的平衡。
In that kind of state, we can find inner piece of mind,enjoy the leisure moments, and also yearn for the precious moments of relaxation amid the rustling city life.

美的·西径晓风位于杭州市临安区锦北街道,背靠西径山风景区,西径山自古即为名胜之地,以其山水之秀美,环境之清幽,文化之灿烂,吸引了众多历代名人前来观瞻,谢安、李白、苏东坡曾来此游历题咏,史迹可寻。
Located at Jingbei Street, Lin’an District, Hangzhou City and backed by the picaresque,time-honored, and tranquil Xijingshan scenic spot, this site attracted many visitors in the past, including Xie’an, Li’ba, Su Dongpo, and other poets, and their inscriptions here could still be found here.


|漫·书香 _Scholarly fragrance
With the picturesque mountains and waters around, you center here and will be greeted by fragrance of books.
曲径递进后正是接待厅的空间,层层叠加的书架正如临安博物馆外立面的片石城墙,墙身的石材正如居所中夯土材料。
Through the trails, you will see the reception hall. The book-piled shelf looks just like the stone wall on the facade of Lin’an Museum. The stones of the wall are just like the rammed earth of the hall.
踏上曲形飘逸的书架旋转楼梯,漫步于楼梯之中如同于进入一片书海。
If you walk on the spiral staircase, you would fee as if moving around in a sea of books.
空间的转换,需有触发人的感官变换的渐进过程。通过曲长的旋转楼梯,拉住了至外而入的疾尘步伐。不同的节奏,示意着不同环境的开启。
Transition to different spaces also comes with visitors’ sensory changes.The spiral-shaped long staircase holds the attention of visitors and pushes them to slow down. Different paces also points to the transition to a different environment.

斜屋顶的天花如同于古人居住的曲面悬山屋顶,端正的沙盘区运用木饰面屏风来做为空间的划分。
The ceiling at the oblique roof looks like the curved, suspended roof ancient people had. The square sand table uses wood veneer screen to divide spaces,。
屏风是一种能巧妙分隔空间的形式。既不破坏空间的完整性,又能对空间进行新的功能划分和梳理。
The wood veneer screenas is also a very crafted way that not only keeps the space as a whole, but also divides functional areas well.

|妙·意趣 _Creative
紧靠窗布置的洽谈区域,无边框的落地玻璃,一眼往去,透过玻璃就如同于漫步在江南园林之中。
Located close to the window, the negotiation area has a frame-less French window, through which you would feel like walking in the gardens and forests.

曲折的山间小道,错落的叠山,平静的湖水,犹如站在西径山上看着临安景色,山水之秀美,环境之清幽,正是杭州的后花园-临安。
The winding mountain path, well-spaced mountains, and still lake would even give you the illusion that you were standing on Xijing Mountain enjoying the beautiful mountains and waters and quiet moments in Lin’an, the so-called back-garden of Hangzhou City.






开敞式的儿童活动区,有着卡通的蘑菇造型,跳跃的颜色,无限的童书正是欢乐的乐园 。
The wide kids’ area is dotted with carton-like and mushroom-shaped seats and in diversified colors. The large number of kids’ books does make it a paradise for the kids, giving them much joy and happiness.


过道空间以极简线条与立体建筑感为主线,建构起空间纯粹且简净的视觉表现,没有过多的装饰与繁复的色彩,留下的更多是感染人心的情绪与温度。
With the minimal lines used, the passage space created looks quite pure, clear and simple, without any excessive decoration or complicated colors, and feels more touching and warm.
借用造园手法,交换路径,欣赏不同景色。
By means of gardening, visitors can enjoy different kinds of landscapes.
卫生间洗手区,虚实交换的片墙,墙体开窗,正如园林景窗,移一步换一景。
The wash area at the restroom has been equipped with solid and non solid walls. And, with a window open through the wall, it creates a gardening landscape.
临安启始于吴越国文化,出土大量吴越国王陵及王室家族墓出土文物,有“越窑青瓷”、官款白瓷、王室玉器、金花银器等大量精美文物。记吴越文物,看临安文化。
Lin’an was set up in the reign of Wu and Yue Kingdom. Many cultural relics buried in the royal mausoleums of the emperor and his relatives at that time were unearthed, such as kiln (produced in Yuezhou),celadon, ceramic whiteware, jade, and gold-plated silverware. Here records the cultural relics of Wu and Yue Kingdoms and gives you insights into Lin’an culture.
情至现代,意敬传统,这是向吴越人文的致敬和对都市精英的献礼,亦是山居生活的回归。美的·西径晓风,诗意山居,与你共鉴。
The display of cultural relics is to reignite modern people’s feelings for ancient workmanship, while paying attribute to the traditions. It’s also a way to pay respects to the cultures in Wu and Yue Kingdoms, greet the elites in the cities, and to call for the return to the nature. Midea·West Jingshan Villa, to be with you.

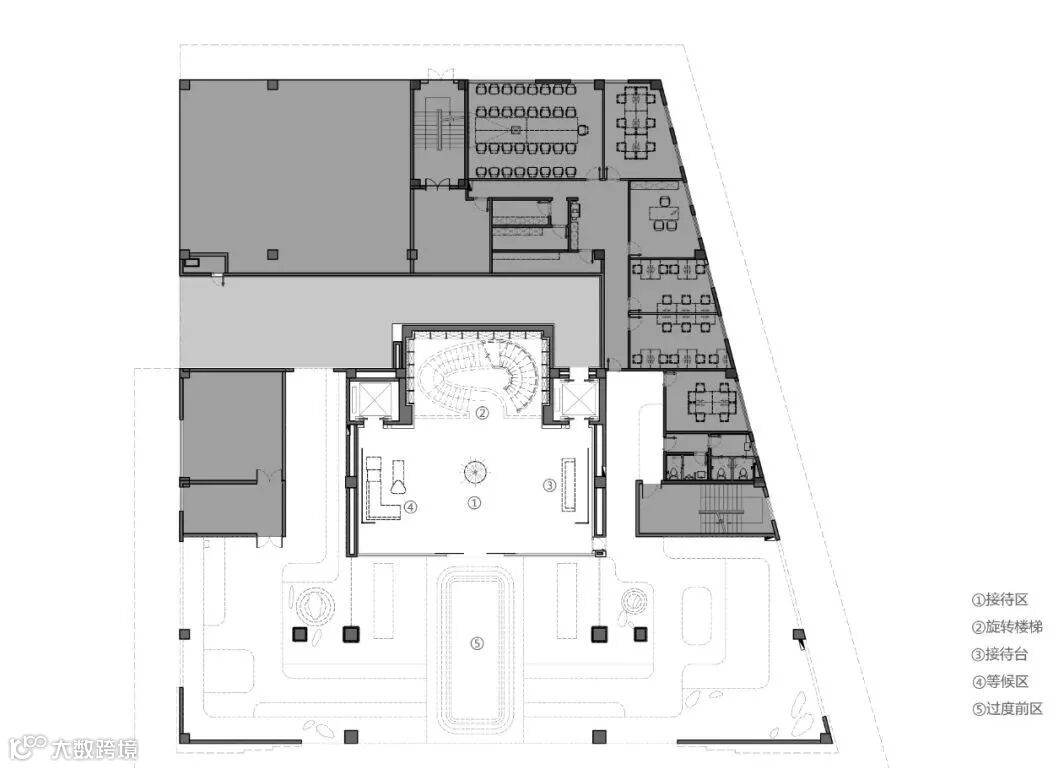
|平面图 _Plan

△ 一层平面图

△ 二层平面图
睿住天元室内软硬装一体化设计
软装实施服务一站式解决客户需求
装配式装修研发
将传统装修行业从“手工劳动“
转向“智能化、信息化定制”
精装与智能家居、智慧社区联动
项目信息
设计单位 | 广东天元建筑设计有限公司(简称睿住天元)
室内团队 | 何颖 黄锋森 刘双胜 王田庆
项目业主 | 美的置业浙闽区域公司
业主团队 | 梁智均 张深云 王静静
项目地点 | 中国杭州
设计面积 | 1150㎡
设计时间 | 2019年7月
竣工时间 | 2019年12月
本文由睿住天元平台原创发布,欢迎转发,如需转载请联系睿住天元品牌部
一触即发丨光辉城市&睿住天元Mars虚拟设计大赛,正式开启!
REMAC TY 品牌力 | 打造设计科技综合服务,智慧设计让生活更温暖!
REMAC TY 论坛三期 | 数字孪生技术与地产应用场景
REMAC TY 论坛二期 | 无人机数据服务与智能投排研发
REMAC TY 论坛一期 | 城市系统模型与人工智能
REMAC TY 论坛 | 科技延展智慧,畅想未来空间营造法则
睿住天元REMAC TY|2021年值得期待的15个重要项目
RIBA&REMAC TY城市会客厅设计科技国际城市智库启动
RIBA&REMAC TY城市会客厅设计科技国际城市智库启动