

工地、电力移动监控布控哨兵
产品概述:
工地移动监控布控哨兵要有集成高性能GPU模块,内嵌深度学习算法,集IPC接入、升降系统、4G传输系统、存储、管理、控制、智能分析于一体,实现安全帽+烟火检测等AI赋能,实时视频对工作人员的安全帽的佩戴和施工现场烟雾及火焰等进行实时识别和检测,对未佩戴安全帽的危险行为和施工现场抽烟、以及烟雾和火焰着火等危及施工现场的行为和现象 可实时监测和预警,告警视频、截图都可以在客户端显示,可以在现场部署音响和扬声器给出报警提示,在远程指挥中心实现弹屏报警,根据用户的需求也可以将报警信息推送给相关管理人员,协助管理人员安全生产管理。后台可远程喊话。安装方便、操作简单一体化设计,机身灵活,带有拖动轮胎,便于布防和移动;一体式伸缩支架,方便固定;监控杆体可升降、搭载高清360°旋转的摄像头;支持wifi/4G/5G无线网络信号传输;自带揭盖式显示屏,方便本地查看;内置1组蓄电池,可续航60H以上(根据电池大小);定制化功能,支持人流管控、温湿度监控、扬尘监控等功能。
产品视频:
产品特点:
1.快捷性:移动兵站监控系统无需布线安装,单人2分钟完成部署;
2.自给性:自带4G/5G网络、本地电池供电;
3.供给多样性:支持市电、太阳能、风能、车载供电;
4.简易性:所有操作采用傻瓜式操作设计;
5.扩展性:可扩展人脸识别、车牌识别、安全帽检测、在线扬尘监测,口罩和反光衣检测等;
6.信号多样性:4G/5G,WiFi,COFDM自组网等;
7.变化性:可根据要求更换摄像机,升降杆高度,电池大小;
8.灵活性:采用4个防震,静音橡胶轮,任意移动;
9.便携性:设备轻巧,方便托运及转场;
10.成本优势性:无需布线,无需供电,自带升降装置,一次性投入,多次性使用;
11.稳定性:采用军用和工用级别的防震设计;
12.模块化:采用模块化设计,方便拆装和维保;
13.广泛性:可以运用在公安应急监控和布控、交警违停、超速抓拍和移动声呐检测,城市管理执法监督,智慧工地的监控和AI赋能运用等;
14.定制性:可根据客户要求定制。
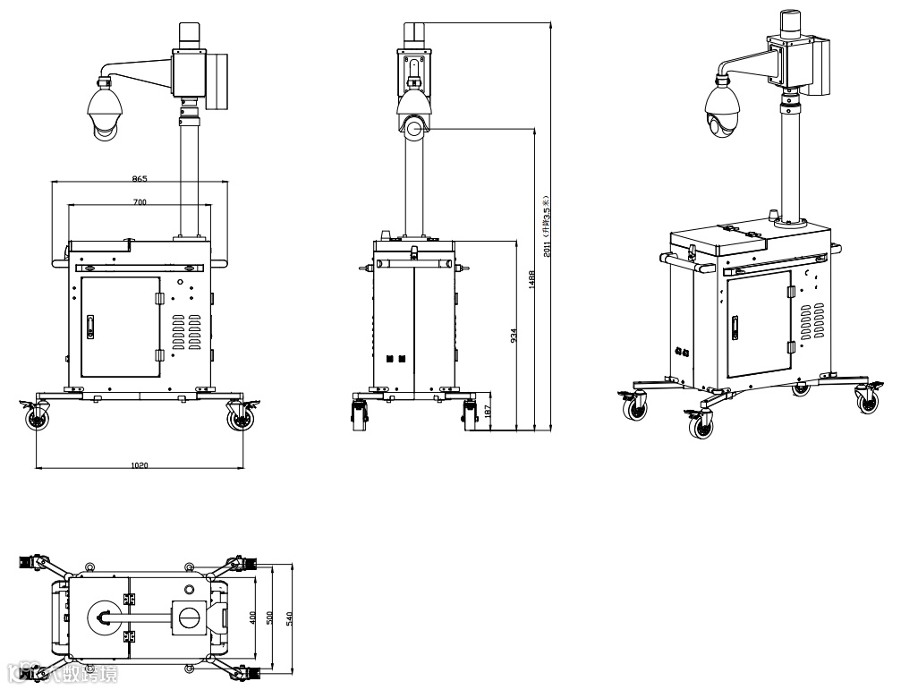
产品尺寸:

中科创欣

高清视界-由你我共同创造
创新 共赢 品质 服务
云台摄像机及配套产品定制生产商
咨询热线:18510868618

