
来源:筑龙路桥
小编有话说
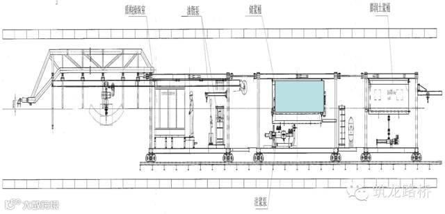
很多细部图哦
同步注浆工艺是盾构法隧道施工过程中的一道关键工序,对成环隧道结构的稳定、周围土体的变形控制等起到关键作用。下面就从同步注浆原理,施工流程,作用,材料,拌浆设备与压浆设备,浆液配合比,注浆工艺,常见问题及解决措施等八个方面对同步注浆进行全面的了解吧。
一、同步注浆的原理
随着盾构的推进,在管片和土体之间会出现建筑间隙。为了填充这些间隙,就要在盾构机推进过程中,保持一定压力(综合考虑注入量)不间断地从盾尾直接向壁后注浆,当盾构机推进结束时,停止注浆。这种方法是在环形建筑空隙形成的同时用浆液将其填充的注浆方式。

二、同步注浆施工流程


浆液运输:

掘进同步注浆:

三、同步注浆作用
1防止地表变形

2减少隧道沉降量

3增加衬砌接缝的防水功能

4改善衬砌的受力状况

5有利于盾构纠偏

四、同步注浆材料
1原材料



2材料要求
收缩率要小。浆体凝固时产生的体积收缩要小,其目的也是为了减少地表变形。
凝结时间要合适。初凝要快,即压出去的浆体在短时间内达到初凝,使浆体不易流失,保证压浆质量;终凝要慢,即要求压出的浆体在较长时间内应具有塑性,这样可防止破坏盾尾密封装置。
要有一定的强度。压浆的作用之一是支护地层,不使地层产生沉降变形,所以要求浆体在凝固前有一定的早期强度,而凝固后的强度要略高于原状土。
五、拌浆设备与压浆设备
1拌浆设备

2压浆设备
采用了注浆压力自动控制系统,一面使压力保持不变,一面直接向盾尾建筑空隙注浆。通过电磁流量记在监测流量的同时进行自动注浆。
浆罐带有搅拌轴和叶片,注浆过程中可以对浆液不停的搅拌,保证浆液的流动性,减少材料分离现象。

六、浆液配合比
惰性浆液在主要成分加量不变的情况下,只需调节添加剂的加量就能有效地控制、调节浆液的性能。在施工过程中,可以比较方便地对浆液的性能进行调整,以适应不同地层、不同掘进进度对浆液性能的要求。

七、注浆工艺
1盾构始发段同步注浆
(1)为防止同步注浆破坏洞门止水装置(即防止铰链板由于注浆压力崩断及防止袜套外翻)影响止水效果,需等盾尾脱出加固区方可进行同步注浆。由于此段(约6m)为出洞加固区,土体自立能力较强,地表沉降相对较小。
(2)当推进至20环时,对洞门进行注浆,防止可能的土体流失。
(3)由于现场条件的限制,此阶段盾构后配套台车位于地表,浆液拌制好后直接通过地表管路泵入到后配套台车的注浆罐中,再经泵送至盾尾浆液注入点注入地层。浆液输送管路较长,应避免管路堵塞,影响同步注浆。在施工结束及时压注膨润土浆液,疏通浆液泵送管路,减少堵管的可能,做到同步施工。
(4)此段盾构施工过程中,盾构掘进出土时进行同步注浆,以控制注浆压力为主兼顾注浆量,从盾尾上方A1,A4两点注入。在拼装管片时,停止注浆,以免拼装时千斤顶部分松开时注浆会造成管片移位、变形。
(5)通过本段施工,加强对地面变形情况的监测分析,掌握盾构推进同步注浆量。

2盾构掘进正常段同步注浆
(1)每环开始推进前,先拌制足够一环使用的浆液打入注浆罐。当开始掘进后,保证注浆罐储存的浆液能够满足同步注浆要求,保证施工的连续性。
(2)严格控制同步注浆量和浆液质量,通过同步注浆及时填充建筑空隙,减少施工过程中土体的变形。做好地面变形情况及地表监测分析,及时调整注浆量。
(3) 要合理控制注浆压力,尽量作到填充而不是劈裂。注浆压力过大,管片外的土层将会被浆液扰动而造成较大的沉降,并易造成跑浆。同时,注浆压力过小填充速度过慢,填充不足,也会使变形增大。
(4)在管片脱出盾尾5环后,对管片的建筑空隙进行壁后二次注浆,整个区间每隔5环注浆一次,压浆量的控制根据变形信息确定。
3盾构掘进小半径曲线段同步注浆
(1)小半径曲线施工时,管片从盾尾脱出后如果不能立即与周围土体形成一体,盾构推进就不能充分取得反力,导致产生较大的管片变形和隧道位移的危险性。
(2)同步注浆浆液应选择体积变化小,早期强度高的注浆材料。
(3)曲线段推进必然导致土体损失的增加。由于设计轴线为圆滑曲线,而盾构是一定长度的直线,故在实际推进过程中,实际掘进轴线必然为一段段折线,且曲线外侧出土量又大,这样必然造成曲线外侧土体的损失,并存在施工空隙。因此在曲线段推进过程中同步注浆必须加强对曲线段外侧的压浆量,以填补施工空隙,加固外侧土体,使盾构顺利沿设计轴线推进。注入量的多少还是以地表沉降监测为指导。
4盾构掘进浅覆土段同步注浆
浅覆土地段的壁后注浆,由于盾尾建筑空隙会立即影响到地面或地下建(构)筑物,要进行充分的壁后注浆管理以控制地层变形,同步注浆宜使用有早期强度的壁后注浆材料,同时,要通过实验确定注浆压力及注浆量。
5盾构掘进大坡度段同步注浆
大坡度施工中的壁后注浆材料,宜采用体积变化小,早期强度高的 瞬结性材料。下坡度时,容易出现漏浆现象。出现漏浆现象可采取以下措施预防解决这一问题:
(1)同步注浆的同时应当注意盾尾油脂的及时填充,盾尾刷及盾尾油脂的配合使用能起到阻挡浆液倒流,避免漏浆。
(2)在盾尾油脂压注到位的情况下,盾尾漏浆大多是由于注浆压力过高或注入速度过快造成,可以通过控制推进速度,调整同步注浆流量及调整注浆压力,防止浆液击穿盾尾漏浆。
(3)在出现漏浆的情况下,应当立即停止压浆,压注盾尾油脂,在管片间隙漏浆处塞上海绵条等防漏材料,待漏浆结束后在推进过程中适当加大注浆量,填补漏失的浆液,同时,根据监测报表决定是否进行壁后二次注浆。
6盾构穿越建筑物及重要管线同步注浆
(1)穿越建筑物及重要管线前,应当对建筑物的桩基基础类型、埋深、建造年代及管线的口径、埋深、走向等进行详细的勘查,综合考虑该处的地质情况确定同步注浆参数。
(2)同步注浆的浆液在填补建筑空隙时可能会存在一定间隙,且浆液的收缩变形也存在地面沉降的隐患,因此在隧道掘进的同时,根据地面监测情况,必要时进行二次壁后注浆,浆液视情况采用单液浆或双液浆。浆液通过管片的注浆孔注入地层,并在施工时采取推进和注浆联动的方式,注浆未达到要求,盾构暂停推进,以防止土体变形。根据施工中的变形监测情况,随时调整注浆量及注浆参数,壁后二次注浆根据地面监测情况随时调整,从而使地层变形量减至最小,达到保护建筑物及管线的目的。
7盾构盾构掘进进洞段同步注浆
进洞段同步注浆施工除了填充建筑空隙,控制地面沉降外,还应配合盾构轴线控制,采取灵活多变的注浆方式,确保盾构顺利进洞,当盾构机靠上盾构基座后停止同步注浆,待盾构机进入完全停靠在盾构基座,洞门封死后在进行洞门的补压浆,防止水土流失。

8壁后二次注浆
(1)盾尾间隙已在盾构施工同步注浆时充分填充,如再超量进行注浆,有可能扰乱土体,引起地面隆起和压实沉降等问题。所以二次注浆基本上不需进行。如果出现管片漏水等现象时,则根据实际情况,对注浆方法和材料确定后,进行补充注浆。
(2)压浆时指派专人负责,对压入位置、压入量、压力值均作详细记录,并根据地层变形监测信息及时调整,确保压浆工序的施工质量。
(3)为防止浆液在注浆系统内的硬化,定时对工作面注浆系统及地面上的拌浆系统进行清洗,清洗时间根据实际情况确定。
壁后二次补注浆浆液配比如下表:


9其它
当地层属于软土层时,地下水位高,土质的含水量基本饱和,所以应一次注浆体材料,以防土体流失。盾尾后间隙一旦形成,应立即进行压浆,并保持一定的压力,压浆工艺对盾尾密封要求较高,要有一个不易漏浆的盾尾密封装置,并有堵浆的措施及备有堵浆的设备和材料。施工中如果发现注入量持续增多时,必须检查超挖、漏失等因素。而注入量低于预定注入量时,可以考虑是注入浆液的配比、注入时期、盾构推进速度过快或出现故障所致,必须认真检查采取相应的措施,一般可采取加大注浆压力或在盾构掘进后进行补浆。
八、同步注浆常见问题及解决措施
1浆液质量不符合质量标准
现象:
在盾构推进过程中,由于注浆浆液质量不好,使注浆效果不佳,引起地面和隧道的沉降。
原因分析:
(1)注浆浆液配合比不当,与注浆工艺、盾构形式、周围土质不相适应;
(2)拌浆计量不准,导致配合比误差,使浆液质量不符合要求;原材料质量不合格;
(3)运输设备的性能不符合要求,使浆液在运输过程中产生离析、沉淀。
预防措施:
(1)根据盾构的形式、压浆工艺、土质情况、环境保护的控制要求及经济效益正确设计浆液配比,并通过试验,使其符合施工要求;
(2)应在满足合理的精度前提下,考虑使用简单可靠的计量器具。同时应保养好计量器具,定时作检定。发现计量器具精度误差超标,应及时校正或换新;
(3)对拌浆材料的质量进行有效的管理。保证各种材料采购的渠道,并附有相应的质量保证单。应按规定对材料进行质量抽检;
(4)拌浆设备的工作环境差,使用中要主要定期维修保养,经常清洗拌浆机。如在使用中机械发生故障应及时修复,不能让设备带病作业;
(5)浆液的输送应视浆液的性能而定,选择合理的输送方法。用管路输送时,管子的直径要适当;用拌浆车输送时,拌浆车上的拌浆机应有充分的搅拌能力;
(6)加强对拌制后浆液的检测,要确保浆液的质量符合施工所需。
治理方法:
(1)不符合要求的浆液重新进行拌浆;
(2)不符合质量要求的原材料不得使用;
(3)如浆液经使用确认配比设计不合理,应及时作配合比的设计和试验,最好决定出实际应使用的配合比;
(4)更换浆液运输设备,以适应浆液性能及压浆工艺。
2沿隧道轴线地层变形量大
现象:
沿隧道轴线地层变形过量,引起地面建筑物及地下管线损坏。
原因分析:
(1)盾构开始掘进后,如不能同步地进行注浆或注浆效果差,则会产生地面沉降;
(2)盾尾密封效果不好,注浆压力又偏高,浆液从盾尾渗入隧道,造成有效注浆量不足;
(3)浆液质量不好,强度达不到要求,不能起到支护作用,造成地层变形量过大;
(4)注浆过程不均匀,推进过程中有时注浆压力大,注浆量足,有时注浆量少,甚至不注浆,造成对土体结构的扰动和破坏,使地层变形量过大。
预防措施:
(1)正确确定注浆量和注浆压力,及时、同步地进行注浆;
(2)注浆应均匀,根据推进速度的快慢适当地调整注浆的速率,尽量做到与推进速率相符;
(3)根据本节“一.注浆质量不符合质量标准”所述的措施,提高拌浆的质量,保证压注的浆液的强度;
(4)推进时同时、均匀、经常地压注盾尾密封油脂,保证盾尾钢丝刷的使用功能。
治理方法:
(1)根据地面变形情况及时调整注浆量、注浆部位,对于沉降大的部位可采用补压浆的措施;
(2)损坏的盾尾进行更换,或采用在盾尾内垫海绵的方法对盾尾进行堵漏;
(3)注浆口离盾尾太近引起盾尾漏浆,可采用从管片上进行壁后注浆的方法,减少浆液的渗漏。
(4)经常施测浆桶确定实际压出浆量,避免受盾构机计数器误导。
3单液注浆浆管堵塞
现象:
采用单液注浆时浆管堵塞,无法注浆,甚至发生浆管爆裂的情况,严重影响施工质量和进度。
原因分析:
(1)停止注浆的时间太长,留在浆管中的浆液结硬,引起堵塞;
(2)浆液中的砂含量太高,沉淀在浆管中,使浆管通径逐渐减小,引起堵塞;
(3)浆管的三通部位在压浆过程中有浆液积存,时间长了就沉淀凝固。
预防措施:
(1)停止推进时定时用浆液打循环回路,使管路中的浆液不产生沉淀。长期停止推进,应将管路清洗干净;
(2)拌浆时注意配比准确,搅拌充分;
(3)定时清理浆管,清理后的第一个循环用膨润土泥浆压注,使注浆管路的管壁润滑良好;
(4)经常维修注浆系统的阀门,使他们启闭灵活。
治理方法:
将堵塞的管子拆下,将堵塞物清理干净后重新接好管路。
4双液浆管堵塞
现象:
双液注浆时浆管堵塞,无法注浆,甚至发生浆管爆裂的情况,严重影响施工质量和进度。
原因分析:
(1)长时间未注浆,浆管没有清洗,浆液在管路中结硬而堵塞管子;
(2)两种浆液的注浆泵压力不匹配,B液浆的压力太高而进入A液的管路中,引起A液管内浆液结硬,堵塞管子;
(3)管路中有支管时,清洗球无法清洗到该部位,使浆液沉淀而结硬。
预防措施:
(1)每次注浆结束都应清洗浆管,清洗浆管时要将橡胶清洗球取出,不能将清洗球遗漏在管路内引起更厉害的堵塞;
(2)注意调整注浆泵的压力,对于已发生泄漏,压力不足的泵及时更换,保证两种浆液压力和流量的平衡;
(3)对于管路中存在分叉的部分,清洗球清洗不到,应经常性用人工对此部位进行清洗。
治理方法:
将堵塞部位的注浆管路拆卸下来进行清洗,然后重新安装恢复压浆。

提示:长按指纹,识别二维码,即可关注哦!

【联系方式】
投稿及内容合作咨询:
QQ:407157822
微信:koreyoshi888

