小编发现,近年来小户型在市场上十分走俏,成为创客青年和一些投资客的“心头好”,一些城市甚至出现了供不应求的局面,堪称“疯狂”。
小户型没有明确的概念定义,业界比较认可的说法是,指销售面积不超过60㎡的一居室, 还有销售面积不超过80㎡的二居室。
一般情况下,90㎡以下的房源都属于小户型,像这样:
广州绿地城46㎡户型图
都说小户型具有性价比高、过渡性强、投资风险小等优点,类型却多种多样,想入手一套满意的,选择犹豫症犯了肿么办?
来,小编特地咨询了绿地广东资深置业专家,在这给你支招,不纠结。
Tip1:整体形状要方正
整体形状方正指的是,各个房间和功能区域呈方方正正的矩形。没有弧线和斜边的户型设计,房子才更实用。
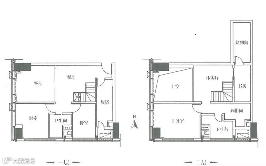
广州绿地城88㎡户型图
通常来说,为了保证生活质量和居住的舒适度,小户型的面积应在30㎡之上。广州绿地城88㎡四房三厅的户型,方正通透,布局紧凑,实用价值杠杠的。
Tip2:面宽进深比要协调
面宽大,采光好,舒适度高;进深大,空间利用率高。尽管小户型受制于面积,应以空间利用率为先,同时也要面宽与进深的比例,确保舒适度。
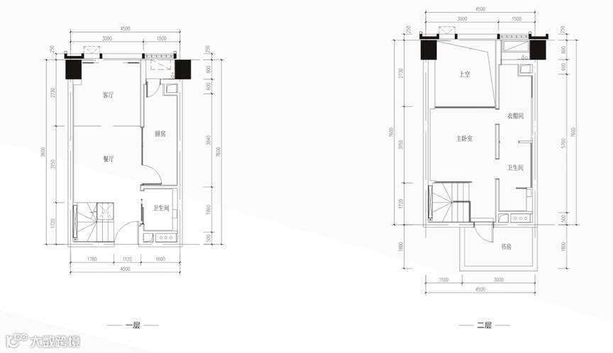
广州国际空港中心小户型效果图
小编觉得广州国际空港中心的小户型,时尚、大气,既保证了空间利用率,又不失舒适度,可商可住,简直可以成为小户型改造的模板了。
Tip3:各功能区面积分配要合理
小户型由于整体面积较小,要特别注意各功能区的面积分配,最好具备保证居住者基本生活的五大件:客厅、餐厅、厨房、卧室和卫生间。
广州国际空港中心Loft公寓户型图
在广州国际空港中心41㎡Loft公寓中,不但“五大件”都齐了,而且有阳台,独立衣帽间,还附带多功能的收纳室,还真是“麻雀虽小,五脏俱全” 了。
Tip4:客厅需大卧室要小
客厅在住宅中承担着绝大部分活动空间,需要有足够的面积放下沙发、电视柜和餐桌等家具。因而客厅的大小首先要保证,卧室则可退居次位。
广州国际空港中心小户型客厅客厅活动现场图
小户型虽没法容纳三到五个人来开趴,也应该有足够的空间能让一两个亲朋好友串串门儿,广州空港中心小户型中高挑大气的客厅显然可以出色甚至超额完成任务~
Tip5:套型布局要开放
想要提高使用面积,你可以选择开放式布局的套型。这种套型省去墙体等公摊面积,看起来也更通透。
广州绿地城小户型样板间
在广州绿地城小户型,你可以发现,通过尽量缩短功能区间动线,客厅和餐厅、书房和卧室、阳台和工作室等相互借用,局部交叉,布局开放,可融入多种功能,提高房屋利用率,增强舒适度。
Tip6:地段要好配套要完善
小户型总价低,选择商圈较为成熟的地段,例如广州绿地城(配套详情请点击此处)所在的中新知识城或者广州绿地越秀·海玥(配套详情请点击此处)的广纸新城,才能激发保值增值的潜力。
而且在这种地段的楼盘往往经济便捷,周边交通、医疗、购物等配套设施相对完善,无论自住、办公还是出租、投资,都不会让你们失望哟。

