
由室内设计联盟举办的
2024年第一期平面户型设计优化比赛圆满落幕!
比赛由原投票分数的基础上,经过特邀评委
老K/建哥/陈晨 三位实力设计师
评审后得出排名

本次参赛作品共计81份
(全部作品获取方式见文末)
我们精心挑选了14份优秀作品
(包含前三名)
邀君共赏
创作要求
【项目概况】
房屋所属区域为冬天相对较冷地区,是单栋楼最西户顶楼其中客厅及书房位置层高5.8米,可浇筑或搭建复式。常住人口为:夫妻俩人及一对儿女
【业主需求】
1、现户型厨房较小,外部餐厅设西厨(因为访客数量较多,空间允许下做圆桌设计)
2、客厅书房挑空5.8米,充分利用空间,计划全部搭建二层,需新增卫生间,楼梯位置及样式依据空间着重考虑布局(通往露台门可在二层北侧客厅上方墙体任意位置放置)
3、三个卧室(空间尽可能大),一间书房,供学习办公使用(可开放),需要考虑晾晒区
4、衣帽及收纳空间尽量多

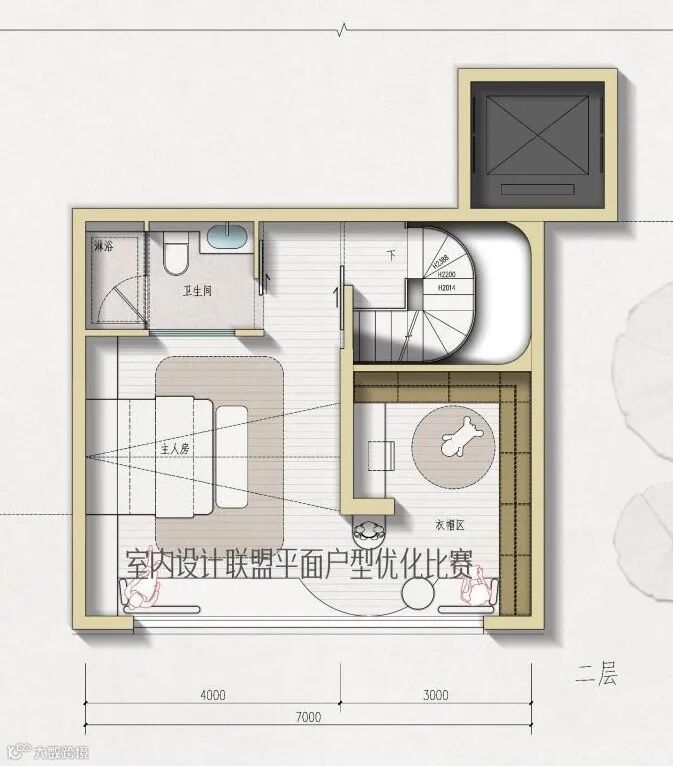
老K点评:
【优点】
1.这张图非常的完整,方案行云流水,且形成了一个个性的蛋的构造,整体设计的表达,包括表现都是非常成熟的,有个强项是北向有个东西向的延展,在西边有一个北向的开放式书房家庭厅来延展餐厅的空间感,然后客厅的话,有一部很秀的楼梯,上去是整个的主卧套,中间有一个两个卫生间合并的一个蛋啊,而且利用了蛋的这个面积去创造一些个性的立面和一些沙发区啊,有一些造型等等。
2.主卫的配套也非常的舒适,二楼的整个配套都是比较舒适的。
【缺点】



























