一、竞价标的
-
竞价标的名称:深圳市龙岗区平湖街道白坭坑社区丹农路1号海吉星物流园5栋4楼的物业租赁使用权。 -
竞价标的存放地点:标的物所在地。 -
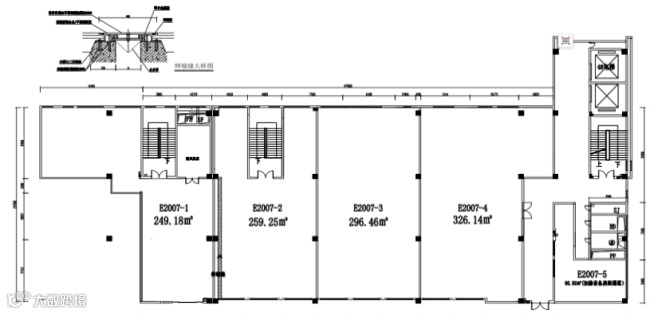
竞价标的说明:海吉星物流园5栋4楼5间物业,租赁面积合计1197.95平方米,状态为简单装修。
5栋4楼物业编号及面积
|
|
编号
|
建筑面积(㎡)
|
E2007-1
|
249.18
|
E2007-2
|
259.25
|
E2007-3
|
296.46
|
E2007-4
|
326.14
|
E2007-5
|
66.92
|
合计
|
1197.95
|
4.租赁方案:
-
租金单价:不低于40元/㎡/月,租期内保持不变; -
租期:1-3年; -
免租期:1-3个月; -
保证金:3个月租金; -
租金支付:第一年按年支付;第二、三年按季度支付。
二、竞价人资格
-
具有完全民事行为能力的自然人、法人或其他组织。 -
须于2026年1月19日前完成竞价登记及保证金缴纳手续。 -
以公司名义竞价的,应提供营业执照及法定代表人身份证;以个人名义竞价的,应提供本人身份证;委托他人代理的,须提供授权委托书及代理人身份证。
三、竞价安排
-
保证金:每1万元对应一个标的竞价权,须与竞价人名称一致。 -
竞价方式:现场书面报价。竞价增价幅度为0.1元/平方米/月的整数倍。 -
成交规则:原则上“价高者得”,在租金相同情况下,按以下顺序优先确定承租人:
-
累计租赁面积较大者; -
租期年限较长者; -
已在海吉星干货区经营的现有商户; -
企业客户; -
经营规模较大者。
五、重要说明
-
标的按现状租赁,竞价人应在报名前实地看样,了解并接受物业现状及瑕疵。 -
本物业用途限于干货副食品选品中心或临时仓储。 -
若仅有一名有效意向客户,可采取协议租赁方式,租金不得低于上述底价。 -
本公司保留对本次竞价活动及相关文件的最终解释权。

