

一本读不尽的湖泊传奇,
一座城市载动无数梦想,
屹立优雅之上,引一抹动人湖光,
包容着人们内心的眷恋与归属。
年初,每个人都以许愿开始新的路程,而在过去的300多天里,也正是小小的梦想在每个黎明叫醒自己,在2017年仅10余天之际,人们选择天鹅湖,因无畏于时代,人们爱上天鹅湖,因这里改变着世界。
城市是有生命的,放眼合肥快速城市化的这些年,沧海桑田的奇迹可谓不胜枚举,而天鹅湖的蝶变在中心城市背书下更加璀璨。

示意图 | 图片来源于网络
地标,这一社会凝聚力的象征是天鹅湖的亮点,也是起点。自融创进入合肥市场,与这座城市共生长,在此波势如破竹的发展态势之下,获得了令人难以想象的快速发展。四子荣耀天鹅湖,致敬这片热土,融创城——作为承载融创归心社区首次全面展示的项目,更让它的行业内外关注度达到了前所未有的高度。
当人们透过地标与天鹅湖对望时,或许能够从绵延起伏的天际线,看到一座城市散发的动力。
时代奔跑向前,关于天鹅湖的地标也在快速切换,奥体中心、合肥大剧院一闪而过,广电中心、商业建筑群等伴随着城市整体开发而推进,在这片荣耀之地,融创看天鹅湖将会是另一种风范。

示意图 | 图片来源于网络
从城市规划的视角,融创城保证各个角度都有一个理想的生活效果,让环湖商业与自身配套有一个绝佳的互动。一座未来城市的商业,也是一座城市文化交流、生态旅游的聚集地,于地铁三号线(在建中)上规划约45万方综合体,作为城市级项目势必将成为一张闪亮名片。汇集五大业态,更加注重体验感的商业设计理念,让每一次购物都是一次都市里的休憩时光。
当房子成为一种驱壳,而房子里的生活却像是一首细水长流的诗歌,变成真正值得思考的问题。
跟奋斗几十年后把房子作为人生的馈赠来说,年轻的城市人没有这种感觉,对他们来说房子只是人生的一个阶段,不同的阶段对房子有不同的需求,当这个房子内部的空间设置刚好是他们想要的,只需享受这个阶段就好。

融创城 | 实景图
当生活品质不断提高时,更多的人开始重拾审美,追求家的生活美学。融创基于洞察生活所需,在强调追求生活美学的同时,更加注重居住的舒适度,诠释精致生活。
走进融创城,一切看起来都是精心准备的。一直专注高净值家庭生活需求,盛邀业界精英设计,历经数月磨砺,无数次精修户型设计图纸,考究城市人居习惯,打造阳光大三房户型。

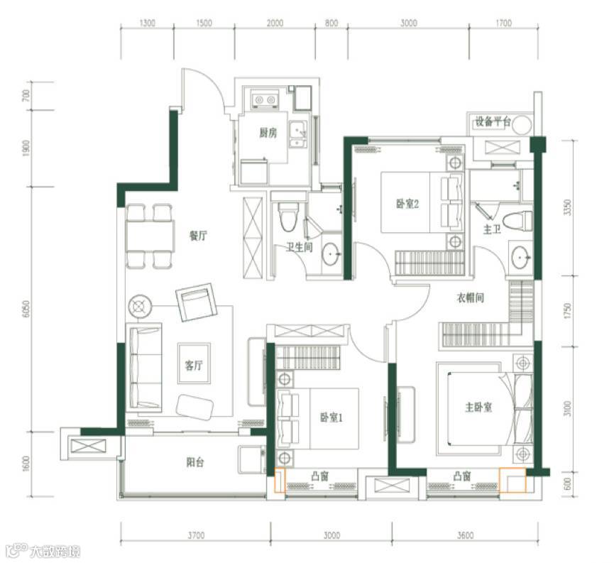
融创城109平米户型图
融创三房,温馨舒居的生活体验
约109m2经典三房,保留主卧套房设计,私密领地满足生活想象,再为偶尔小住的父母亲友保留一间卧房,其余空间尽情奢享,气派通透,附加的空间更盛纳所有的生活爱好。
动静分离,每一种享受不被打扰
一进家门,右侧分布厨房、餐厅、客厅、阳台,厨房和餐厅远离卧室,家人团聚其乐融融;左侧为休息区——主卧、次卧,主人睡眠阅读,保证安静不受干扰。
方正客厅,大气沉稳的空间表情
客厅格局方正,内接餐厅,外接观景阳台,引阳光美景入室,极大丰富了厅堂的活动空间,彰显主人的身份和对生活完美的追求。
套房主卧,与次卧并向朝南伸展
每个房间格局方正,主卧、次卧南北布局,配有观景飘窗,整个房间光线充分,宽敞明亮,空气流通好;3房2卫的配置,能够更好满足两三代人的生活需求。
私密清爽,干湿分离人性化设计
卫生间采用干湿分离设计,保证家中环境干净清爽;主卧设独立卫生间,保护私密性,次卫生间位置居中,方便使用。
作为中国高端精品生活创领者,融创始终秉持着在最好的城市拿最好的土地,做最好的产品。设计之初,便深知成长型住宅对品质人居的先导作用,从空间到尺度,从功能性到舒适度,融创城都以契合人们生活所需进行匠制。真正解决客户生活的痛点,提供更好的产品,让客户把融创当作为最后的家,以全生命周期户型,唤醒一生一宅的居住理想。
从天鹅湖诞生第一天开始,就选择向因循守旧说再见,融创城精心构筑美好生活,不断超越昨日的辉煌,2017引领城市品质人居前行,用心阐释艺术与日常的结合,只为同样懂得生活的你而来。
归心提示:
·本项目推广名为“融创城”,地名办核准名为“融科城”,开发商名称为“合肥联创智融房地产开发有限公司”。
·本项目预售许可证号:合房预售证第20171013号、第20171014号、第20171015号
·本宣传资料中提到的商品房面积为商品房建筑面积;
·本宣传资料为要约邀请,不作为要约或承诺;
·相关宣传内容不排除因政府相关规划、规定及开发商未能控制的原因而发生变化;
·出卖人可能会不定期对宣传材料进行修改;
·买卖双方的权利义务以双方签订的《商品房买卖合同》及附件等协议为准;本宣传资料发布的日期为2017年12月19日,本资料有效期为3个月,敬请留意最新资料。
·本宣传资料中涉及的价格、折扣、付款方式等信息,因销售时间、户型楼栋、楼层、方位等不同有所差异,以实际签约信息为准。
本宣传资料所涉及的户型仅供示意参考,其装修、家具、陈设不属于交付范围,也并非交付标准。不同户型的面积尺寸,功能布局,空间分割、门窗/管井形态位置等均有不同;相同户型因楼栋、楼层、单元等差别,局部结构、面积等也可能不同,具体以政府最终审定的图纸和销售合同为准。

