

在2019年的宜城楼市纪事中,“融创”必然是一个绕不开的高频热词。刷屏朋友圈、登上安庆权威报刊杂志,甚至连示范区也成了网红打卡地。这样的火爆态势,带动着本就火热的中轴板块持续走高,成为宜城楼市的一抹亮红。
据融创时代宜城项目台账显示,目前来访客户预约量已达900组左右,预约名额已不足10%。红盘的爆发力,也推动了客户对于板块前景的认可。据案场相关统计显示,目前来访客户对于中轴板块的认可度高达96%,全市客户来访比例相较于前月亦持续走高。

城市中轴,向来是汇聚鼎盛资源的“价值海洋”。从整个安庆脱颖而出的独秀大道,以城市中轴的光环汇聚着市政府、体育中心、市立医院及欧尚超市等精粹;融创时代宜城,正根植于这片“价值海洋”,以融创的低密营造功力打造中轴3.0版的理想生活。它择址独秀大道北部生态宜居片区,坐揽九塘公园(规划中)与白泽湖公园(规划中)的双重静谧,轻松通达市政府、安庆七街、紫峰大厦等重要配套。
在这样一片划定城市天际线与低密人居版图的土地之上,融创时代宜城诚聘地平线建筑设计公司,以大面积水晶灰双层中空玻璃(公共区域外窗及阳台外窗除外),搭配断桥隔热铝型材(封阳台使用的材质除外),呈现更高级、更具质感的外立面设计,为宜城匠筑一座高颜值建筑。

成长系童梦社区,则是融创时代宜城引爆安庆楼市的又一重磅杀手锏。
在历经多轮调研后,融创时代宜城巧妙地以儿童为视角、以“海洋化”的空间内容为载体,并根据不同年龄段业主的生理与心理特征,融入海洋奇缘与小鱼儿主题,个性化设置“欢乐海洋”、“小鱼儿海岛”、“魔法海岛”、“秘密海岛”四大成长活动区,寓教于乐。
同时,联动社区架空层,引入果壳PARK、书享ZONE、足迹SPACE特色归心空间,与整个园林的景致相互交融。未来,融创还将通过“欢乐系”活动及“小鱼儿”社群活动,进一步激活归心空间,使温暖和谐的人居体验,在自然意趣中共生、滋长。

外在越是精到,内里愈发经典。融创时代宜城在室内生活场景的营造上,更是充分彰显大师级的深厚功底。
首批建筑面积约98-132㎡的户型规划,让“住融创”的梦想更趋近现实。宽境阳台(部分)、多功能套房主卧(部分)、一体化餐客厅(部分)等亮点设计,告别将就,让美好生活理想得体绽放。
在精装设计上,融创时代宜城则告别了安庆多数楼盘的同质化思路。以智能化系统破题,深入宜城人居特点量身定制,31项人居细节设计,一切以舒适、温暖的感性体验出发,将品质生活落实到每一处,实现全生活覆盖。
当然,作为一座城市的红盘担当,融创时代宜城未开先火的因素绝不止于此。也许只有置身于这场热潮之中,亲身品鉴童梦社区生活的无限魅力,才能更好地感触宜城人居的全面进阶。
目前,融创时代宜城首批建筑面积约98-132㎡低密精装洋房,即将于10月20日重磅首开。一场遍及全城的竞藏热潮即将来袭,你准备好了吗?
归心提示:
1、本项目推广名为“融创时代宜城”,地名办核准名为“时代融城”,开发公司为:“安庆融创新宜置业有限公司”,商品房预售证号为宜房商预字第“00528”、“00529”;
2、本资料为要约邀请,不作为要约或承诺;买卖双方的权利义务以双方签订的《商品房买卖合同》及其补充协议、附件等书面文件为准;
3、相关宣传内容不排除因政府相关规划、规定及出卖人分期规划、未能控制等原因发生变化;
4、本宣传资料中提到的商品房面积为商品房建筑面积;
5、文中提及归心空间、归心活动仅做示意,具体以实际交付为准;
6、文中提及的“预约客户900组、板块认可度96%”等数据源自项目台账;
7、文中所提及双公园(规划中)九塘公园及白泽湖生态湿地规划信息来源于安庆市自然资源和规划局意见征集“安庆市城市总体规划(2010-2030年)修改(草案)”附件:图30 中心城区绿地系统规划图,网址:
http://aqxxgk.anqing.gov.cn/show.php?id=624111,仅供参考;
8、交通规划设置、市政配套设置不排除因政府规划、政策规定及出卖人未能控制的原因而发生变化,本资料旨在提供相关信息,不代表着出卖人对此作出要约或承诺;
9、资料中涉及的各类设备、材料品牌仅供参考,以实际交付为准;
10、本资料对项目与周边环境、交通、公共设施的地理关系示意,旨在协助提供相关信息,不意味着公司对此作出任何承诺;
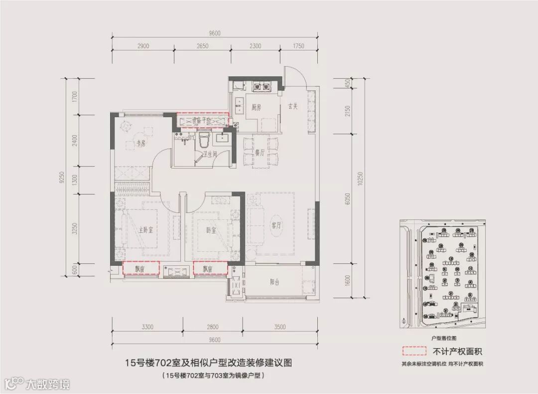
11、文中户型图为“改造装修建议图”,本宣传资料所涉及的户型仅供示意参考,其装修、家具、陈设等非交付标准,不属于交付范围。不同户型的面积尺寸,功能布局,空间分割、门窗/管井形态位置等均有不同;相同户型因楼栋、楼层、单元等差别,局部结构、面积等也可能不同,具体以政府部门最终审定的图纸和销售合同为准;
12、本宣传资料对商业的具体业态、开业时间等仅作介绍,不代表出卖人对此作出要约或承诺,具体以经营者实际经营为准。
13、本资料所发布内容为2019年10月18日前的信息,出卖人将不定期对宣传材料进行修改,敬请留意最新资料。