点击蓝字 · 关注我们
地址:Brentwood, Sydenham Road, Dundrum, Dublin 14
房型:六室八卫
面积:约147m²
价格:3,750,000 欧元
(约 29,250,000元人民币)
按私人条约出售
开售日期:即刻
这栋住宅无疑是都柏林最引人注目的翻新维多利亚式住宅之一。该住宅于 2008 年进行了翻新、扩建和改造,然后由其前任业主再次进行了翻新、扩建和改造。住宅坐落在僻静环境中的电子入口大门后面,有一条宽阔的车道,铺着古朴的鹅卵石,提供宽敞的停车位和一段台阶,这是一座出色的维多利亚式住宅,融合了 21 世纪的现代风格和创新技术。每个房间都有 Creston 照明系统,有 32 个加热区,每个房间都可以通过广泛的闭路电视系统进行单独控制,可以通过电话访问。整个住宅都有一个音响系统,每个房间都有控制装置,一个带有杜比环绕声的非凡家庭影院,设有地暖、浴室,当然还有泳池区等等。
位置简直不能再好了。坐落在邓德鲁姆最受追捧和最负盛名的道路之一,距邓德鲁姆市中心和 LUAS 仅一步之遥,并可轻松前往 M50 高速公路。当地有各种各样的便利设施,包括商店、酒吧、餐厅和备受追捧的学校。附近地区的娱乐设施包括众多高尔夫和体育俱乐部以及马利公园和都柏林山脉的风景优美的步道。
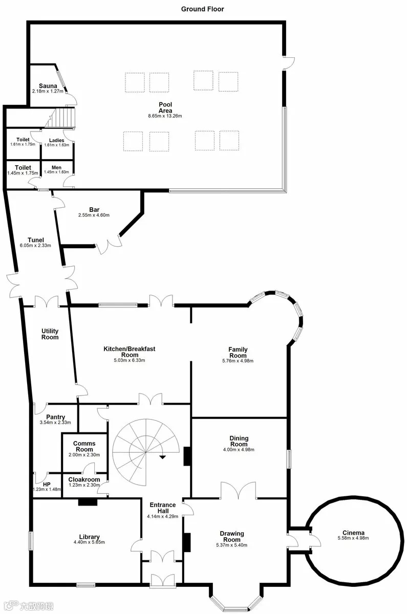
住宅平面图
住宅内外实景图
周边设施
14区位于都柏林南部,这个区域住房的最大特点是价格较低、性价比高、周边配套设施全面便捷,因此这里的住房备受青睐。这里有欧洲最大的单体购物中心Dundrum Shopping Centre,还有Nutgrove购物中心,购物方便快捷,能带给您绝佳的购物体验。14区的交通也非常方便,Luas经过这里。此外,附近还有很多学校,特别是爱尔兰较好的私立学校,适合有小孩的家庭居住。
餐饮&购物中心
这栋住宅位于黄金地段,距离众多便利设施仅几分钟车程,包括当地商店、邓德拉姆市中心、邓德拉姆卢亚斯、山羊酒吧和烧烤店。
交通设施
图源网络,侵删
公共交通较为完善,有公共交通车以及绿线 Luas,可以方便地来往于都柏林市中心和爱尔兰其它地方。
学校&医院
这栋住宅位于黄金地段,距离众多便利设施仅几分钟车程,包括当地商店、邓德拉姆市中心、邓德拉姆卢亚斯、山羊酒吧和烧烤店。
扫码关注我们
快来关注我们
微信号|爱岛博乐房地产投资管理

