H S A
建筑美好 设计生活

近年来,深圳旧改项目越来越多,6.0以上的高容积率屡见不鲜,但在2011年,这么高的容积率是非常少见的,而我们当时接到这样一个项目:容积率达到7.0,以住宅为主的城市综合体。
面对高容积率往往会采用超高层的方式来应对,但是由于项目地处机场一侧,严格的航空限高把所有楼栋的高度都限制在100米范围内,在这个限制下如何妥善布置建筑容量,能满足严格的规划和日照要求,合理布局各种复杂的功能,又能为居民带来良好的居住环境,对规划布局和建筑设计而言都是一个巨大的挑战。我们都喜欢和勇于接受挑战,希望通过团队的集体智慧完美地完成这个看上去“不可能的任务”。

多年后,这个项目已经竖立在深圳机场边上,当飞机在跑道上滑行、起飞的时候,望向窗外的旅客都能看到它——星航华府。
01.
项目概况
项目基地位于深圳市宝安区福永片区,地处深圳市区西部门户位置,规划为二类居住用地,在深圳宝安机场东面,西侧紧邻107国道,总建设用地面积42872.11平方米,规定计容建筑面积为295680平方米,其中住宅213800平方米,商业79000平方米,公共配套2880平方米。

用地呈由东南向西北的不规则长条五边形,沿107国道展开,长约340米,南面宽约74米,北面宽约167米;整个项目用地南低北高,高差约为3米。
地块周边有良好的景观资源,东北面与北面为凤凰山郊野公园,西北面为高尔夫景观,东南面远眺珠江口。

02.
设计主旨
充分利用地块周边景观资源和城市的视线空间,户户观景,提升项目品质,降低开发风险;在遵循90/70的同时,以创新的户型及组合提供可持续发展的居住空间;重视项目在城市空间的昭示性,立面突显美好、温馨的形象;设计良好的商业界面,提供活跃的商业节点,提升商业价值。

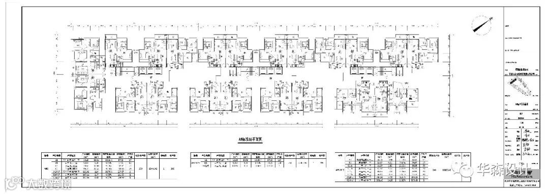
3.
总平面设计
由于用地实在太紧张,同时周边又有良好的景观和视野条件,因此将塔楼沿用地边缘布置,以围合的方式为住宅争取最大的景观面。
塔楼体量通过特殊处理尽量压扁、拉长,从而尽量放大围合出来的中心花园,使楼栋两侧的住户都能有景可借。在地块中段设置宽阔的楼距,一方面为整个小区带来良好的通风和日照效果,另一方面向城市打开豁口,缓解楼栋密度。

项目有大量的商业面积,为尽量降低住宅和商业的相互影响,提高商业建筑的价值,采取将商业集中布置的方式:集中商场层数为4层,布置在南区,商业屋顶形成的花园周边布置高层塔楼和1栋高层办公楼,而面向北区花园的一侧打开,通过退台的处理在小区内形成别有生趣的垂直花园,并连接南北两区,在有限的用地内形成颇具趣味的中心大庭院。

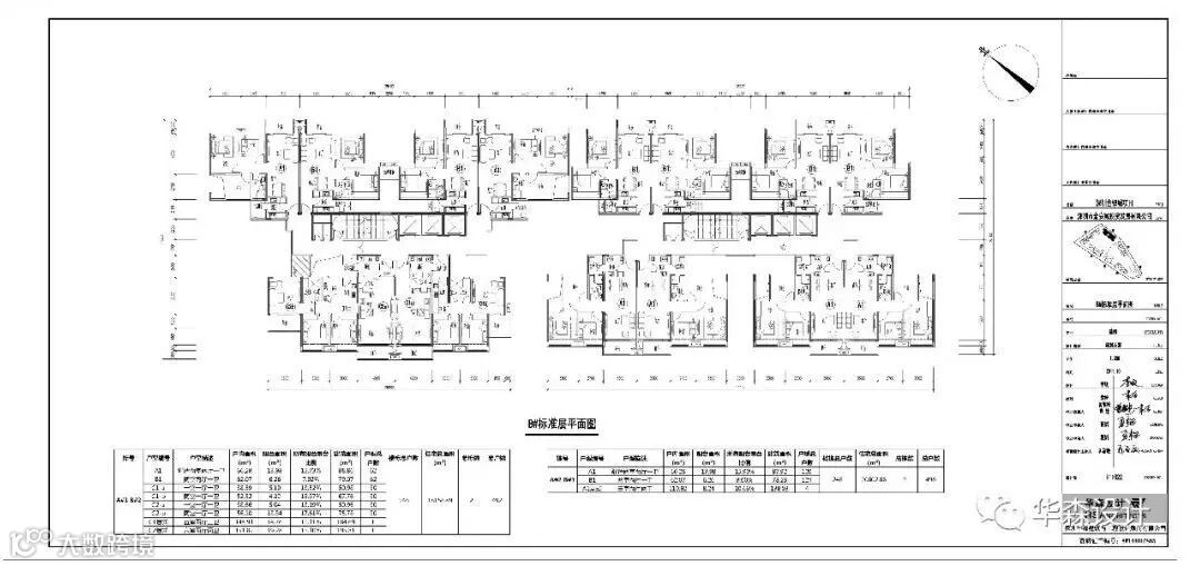
4.
平面设计
住宅楼栋平面基本呈“工”字形,提升梯户比的同时也有限压缩了楼栋进深,而且保证了每个户型朝外的面宽,楼栋间形成的开放式天井改善了每个户型的通风效果。
扁长型的办公楼平面为内部的办公空间带来优异的采光和景观资源,南侧的曲线处理为内侧的住宅让出了宝贵的日照通道。


四层的购物中心包含零售、餐饮、超市、影院等功能,满足周边居民的生活、休闲、娱乐需求,曲线化的平面处理带来流畅的空间感受,提升商业体验感。

5.
造型及立面
本地块位于城市门户地带,在城市空间中的昭示性很重要。
办公楼面向广深公路,体现为简约有力的现代风格,以不同的幕墙材质切分建筑体量:面对城市空间的一侧强调竖向感,采用竖向金属构件的玻璃幕墙直接落地,形成冲入云霄之感;面向住宅的一侧则采用横向线条为主幕墙,且降低玻璃的反射率,避免对住宅的光污染。

住宅立面设计为带有些许古典意味的现代风格, 对新古典风格元素进行简约、提炼、融会,以竖线条为主,传达典雅、鲜明之感,形成强烈的视觉效果。外墙材料的运用强调尊贵的感觉以迎合项目的定位,以沉稳高贵的暖色面砖为主,局部采用深褐面砖,对墙面进行细致的分缝,形成高贵的古典意味;顶端由玻璃幕墙和竖向金属构件构成,强调竖向感和轻盈感。

商业立面以实体为主,强调不同材质、体量的穿插,体现出强烈的现代感,除一层商铺和几个主要出入口采用玻璃幕墙以外,都使用干挂石材形成厚重的体量感,注重细节的打造和广告位的统一规划,激发商业活力。

项目获奖情况:
深圳市第十七届优秀工程勘察设计评选二等奖
2017年广东省优秀工程勘察设计评选三等奖


