两馆技术交流会
8月18日,深圳当代艺术馆与城市规划展览馆(以下简称两馆项目)全专业技术交流会在华森成功举办。参与两馆项目设计的设总和各专业负责人来到活动现场,为我们解剖两馆项目从方案设计到建设完成的技术问题。交流会由华森副总经理、执行总建筑师、两馆项目总负责人肖蓝主持。
上一篇我们已将建筑、结构专业的交流内容进行公布(链接:两馆项目技术交流总结),今天为大家总结的是机电和景观专业的内容。
给排水设计
李仁兵
给排水专业负责人李仁兵分享了两馆项目给排水系统设计内容。
给排水系统设计
给水系统
1. 采用分区供水。二层及以下部分采用市政给水直接供给,二层以上部分采用水箱+变频泵组供水。生活给水泵房设置地下二层。
2. 根据用水功能,分别设置计量水表。水表需具有远传功能。
排水系统
1. 整个项目排水系统将采用雨、污水分流,污、废水合流,专用通气管的排水形式。
2. 地上部分室内污、废水采用重力流排出,地下部分采用压力排水。
3. 厨房废水采用两级隔油,废水经厨房内设置隔油器处理后排入废水管道,再经设置于室外的隔油池处理后排入室外污水管道。
4. 位于艺术馆展厅上方的卫生间采用同层排水,避免排水管道进入展厅区域。
雨水系统
1. 屋面雨水采用虹吸排水,内排水系统,雨水经过雨水斗收集再经雨水立管排至室外雨水管道。屋面雨水设计重现期按照50年考虑。场地雨水按照2年重现期设置。
2. 为满足申请绿色建筑三星要求,对屋面雨水进行回收处理后用于绿化浇洒、道路和地下车库地面冲洗及冷却塔补水。
3. 回收水源包含屋面雨水和空调冷凝水两部分。
4. 雨水回用系统采用水箱+变频供水。
屋面及首层均设有排水沟,可收集整个外立面雨水,则雨水可收集汇水面积约为8000 m³。冷凝水年收集量为8200.2 m³。
雨水收集池容积为800m³,收集池位于室外,水处理机房设置在-1层。
雨水水量平衡计算表
室外消火栓系统
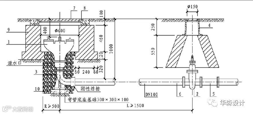
室外消防用水由市政水直接供应,本工程自福中路和金田路各引入一根给水管道,在建筑周边设置成环状供水管网,并在管网上设置室外消火栓供消防车取水。
应景观园林设计要求,西侧主入口广场上地上式消火栓改成地下式。


室内消火栓系统
室内消火栓用水由地下二层的消防泵房和消防水池提供。火灾初期用水及维持平时管网压力由屋顶消防水箱及增压稳压装置提供。

报警阀间

消防水泵间
消火栓设置
因本项目有很多大空间、大平台设计,为满足消火栓设计要求:“室内消火栓的布置应满足同一平面有2支消防水枪的2股充实水柱同时达到任何部位的要求”,消火栓位置选择有难度,故采用了特制的落地式消火栓箱。
喷淋系统
除净高大于12米的区域、艺术品库房及不宜用水扑救的部位外均设置喷淋系统,其中对于艺术馆陈列、展览厅采用预作用喷淋系统(即艺术馆整体采用预作用系统),规划馆采用湿式喷淋系统。
预作用系统的喷头采用干式下垂型喷头,其在准工作状态时配水管道内不充水,火灾时由火灾自动报警系统自动开启雨淋报警阀后,转换为湿式系统的闭式自动喷水灭火系统。
大空间数控水炮
超出喷淋保护范围的大空间采用数控水炮灭火。单个水炮参数: 流量20L/S,压力0.8MPa,射程50米。大空间消防炮采用CXZKP数字图像消防炮系统。CXZKP数字图像消防炮系统集防火、防盗、监控于一体,以图像型火灾探测报警系统为核心,消防水炮能在火灾发生时,自动寻找火源、定位、锁定后实施自动喷水灭火,并在探测到火源消失以后自动控制停止喷水恢复监控状态的系统。具有定位精确、灭火效率高、保护面积大、响应速度快等特点,同时对非火灾区域所造成的损失可减至最小。

气体灭火系统
地下室高、低压变配电室、柴油发电机房、展品中转区采用有管网七氟丙烷(FM200)气体自动灭火系统,并设气瓶间。艺术品展厅区域预留出的封闭空间(与运营顾问协调确认)、弱电通讯及网络机房采用无管网七氟丙烷灭火系统。

钢瓶间
水节能、节水设计单元
太阳能热水系统
太阳能热水按每日5m3/d设计,用于物业工作人员淋浴使用。淋浴间设在地下车库淋浴房。太阳能热水系统在屋面设有平板集热器,集热器铺设面积为120㎡,共60块,屋面设有空气源热泵辅助加热。项目全部热水均采用太阳能系统供应,供应热水比例为100%.



节水灌溉
本项目采用喷灌节水方式进行室外绿化浇洒。

合理雨水径流途径
项目室外能降低雨水径流系数的主要有下凹式绿地,其余为硬质铺装道路。项目下凹式绿地面积为2685㎡,室外地面面积为17554.16㎡,综合径流系数计算如下:ψ=(2685×0.15+17554.16×0.5)/(2685+17554.16)=0.45
项目场地综合径流系数为0.45,满足0.65绿标要求。
空调设计
张 伟
暖通专业负责人张伟分享两馆项目空调设计内容。
空调风系统设计
本项目主要区域有展区及服务用房。展厅、艺术馆、大堂、缓冲及制作区域、多功能厅、文化沙龙采用一次回风全空气空调系统。

CFD气流模拟分析
其中展厅等高大空间利用CFD气流模拟软件进行模拟分析,研究喷口送风方式下的温度场和速度场分布以及空调区域的热舒适性,分析送风射流参数、风口角度等因素对人员活动区域空气分布特性的影响,从而获得合理的气流组织形式,保证人员的舒适性。
针对CA0102一层艺术馆特展厅举例分析如下:

距地面1.5m平面的温度、速度分布云图

CFD气流模拟结论:展厅CA0102的喷口角度设置为15度时,温度场、速度场分布状况较好,人员活动区的平均温度分别为24.3℃,风速分别为0.19m/s,基本满足人员活动舒适性要求。
BIM技术的应用

建筑造型整理效果

五层云平台出地板送风接管BIM模型一

现场照片
绿色节能的通风
空调系统节能分析
利用DeST进行建筑全年能耗模拟可知,实际设计建筑的全年总能耗为深圳地标参照建筑的74.24%,相当于节能率62.88%.

绿色节能的通风方式
本项目利用幕墙可开启扇自然通风结合机械通风实现绿色节能的通风方式,保证室内空气品质。本项目幕墙型式有以下几种:


结合幕墙顾问的试验数据,在满足安全性前提下有限度的开启幕墙实现过渡季节自然通风。

电气设计
马 骏
电气专业负责人马骏分享两馆项目电气设计亮点和难点。
照明设计
对于当代艺术馆,灯光是营造气氛、引导观众、呈现展品艺术价值重要的工具。
当代艺术馆照明设计理念:安全、舒适、表现作品。


安全:
除了照明设备的电气安全外,更注重防护灯光红外热效应和紫外化学反应对展品的损坏。
灯光红外辐射会引起展品表面局部热效应,加速展品的老化,甚至表面变形或开裂。
常见装饰光源红外辐射由小到大排序:LED→荧光灯→卤素灯→陶瓷金卤。
灯光紫外辐射(波长在100nm到400nm之间的光线)会引起展品表面产生化学反应,造成展品褪色、发黄等老化损害。纸张、纺织品、绘画、陶器、染色皮革等类型的展品都对紫外光有较强敏感度,设计应选用光源的紫外光相对含量小于20μW/1m(博物馆要求)。
通过选用专业LED光源,可有效减少红外和紫外损坏。同时,配合DALI控制系统、调光设备、光线感应器等智能控制设备,以及幕墙电动可开启窗扇,有效控制室内照度水平,限制展品的年曝光总量,延长展品寿命,也让灯光管理更加人性化和智能化。
舒适:照明均匀度和眩光控制。
照度均匀度:指规定表面上的最小照度与平均照度之比。
借鉴博物馆照明要求:对于平面展品,最低照度与平均照度之比不应小于0.8;对于高度大于1.4米的平面展品,则要求最低照度与平均照度之比不应小于0.4;只有一般照明的展室,地面最低照度与平均照度之比不应小于0.7。
以此要求,通过专业软件计算,模拟实际光效,达到最佳效果。
眩光控制:在观众观看展品的视场中,不应有来自光源的直接眩光或来自各种表面的反射眩光。
观众或其他物品在光泽面上产生的映像不应妨碍观众观赏展品。
设计采用可调节格栅射灯及导轨射灯,可在布展时让灯具调整到无反射眩光干扰的布灯区域,避免眩光的困扰。。
表现作品
选择合适的色温:应选用色温小于3300K的光源作照明光源。
选择高显色性光源:艺术馆展厅,对辨色要求高,采用一般显色指数(Ra)不低于90的光源作照明光源;对辨色要求不高的场所,可采用一般显色指数不低于80的光源作照明光源。
防雷设计
两馆屋面系统形式多样,形态复杂。采取何种防雷措施才能在不破坏建筑外观的情况下,有效保护建筑免遭雷击,成为我们防雷设计需要思考的问题。
首先需要分析两馆屋面的形态及材质情况,对不同形式的屋面需要采用不同的防雷措施。

直立锁边系统外衬石材屋面
设置明装接闪带作接闪器,材料为25*4热镀锌扁钢,沿石材板缝隙立装,通过直立锁边防水屋面(1.0mm铝镁锰板、T形码支座)及其钢通支撑与主体钢构形成持久电气贯通,形成防雷体系。

直立锁边系统外衬不锈钢板或氧化铝板屋面
利用不锈钢面板、氧化铝板直接作接闪器,所有金属板通过其铝合金支架梁、直立锁边防水板、钢通支撑相互连通,并与主体钢构形成持久电气贯通,形成防雷体系。

玻璃天窗外衬穿孔不锈钢板屋面
利用穿孔不锈钢面板直接作接闪器,所有钢板通过外加导电片、钢通支撑相互连通,并与主体钢构形成持久电气贯通,形成防雷体系。

其他类型屋面均利用自身金属构件作为防雷装置
如:单层次结构玻璃天窗屋面的铝合金封边框通过其钢通支撑相互连通,并与主体钢构电气贯通,形成防雷体系;两馆筒心上金属格栅直接作为接闪器,与结构内钢筋网或型钢钢骨焊接,形成防雷体系。

景观设计
熊 健
景观专业负责人熊健对两馆项目的景观设计进行简单分析。
景观设计

通过巨石旋转造型完成的建筑设计,同时也考虑了建筑的主入口位置正对中间轴线节点。

方案设计主要分为西侧主入口疏散广场空间、南侧树荫坐凳休闲等候空间两个主要景观功能场地设计。同时南北两侧作为主要的车行出入口。
欣喜

欣喜的是树荫坐凳休闲空间营造了最初方案设想的大效果,相信今后开放后会成为受市民欢迎聚集休闲的绿荫场所。

黄花风铃木与两馆建筑、观赏草与清水混凝土坐凳之间的软硬碰撞为空间带来了强烈的对比。
遗憾

地铁风井的设计与常规的四方四正的出风口不同,做了异形的设计,与建筑遥相呼应。但遗憾的是现场施工没有完成我们图纸设计的与建筑一致的穿孔板装饰设计。

同时也还有清水混凝土因工艺原因也未能达到预想的效果。不过现场也一直在整改,相信整改后的两馆的景观更能衬托起两馆这块“巨石”。
交流会结束后,两馆项目各专业负责人带领参会人员一同前往两馆进行参观,并为参观人员讲解。以下为参观人员镜头下的两馆,在此感谢粉丝们提供照片。








以上图片来自吴南凯、尚逸
往期项目回顾




