
5月24日下午,在华森公司副总经理肖蓝的主持下,华森书院围绕适老建筑设计进行了漫谈。活动邀请了华森公司前同事、加拿大阿尔博塔大学人类生态学博士、养老设计咨询师任晖、华森南京分公司执行总建筑师章晓宇、华森公司副总建筑师王瑜进行专题分享。经过踊跃报名,三十多位建筑师参与了本次活动。
任晖《养老建筑设计》
——

任晖主要从三个方面进行分享:养老/老龄人建筑研究;养老体系和居住种类(加拿大);案例分析。
养老/老龄人建筑研究内容包含环境老龄学、人类地理学、设计学、行为学和物质文化学,主要设计方法有循证设计、参与设计、移情设计和生活经历启发设计等。
任晖通过介绍加拿大阿尔伯塔省的养老居住体系和案例分析,让大家对养老居住设施有了深刻的了解。她在移情设计等方面的理论研究,也为建筑师拓宽了设计的出发点。
章晓宇《南京金陵天泉湖养生养老社区》
——

南京金陵天泉湖养生养老社区由金陵饭店集团投资建设,总体建筑规模约120万平方米,整体定位为大型综合养老社区,天泉湖养生养老社区探索一种新的社区、家庭式老年居住模式。

华森公司担任了本项目一期的设计顾问,并承接了二期从规划到单体的全程设计。
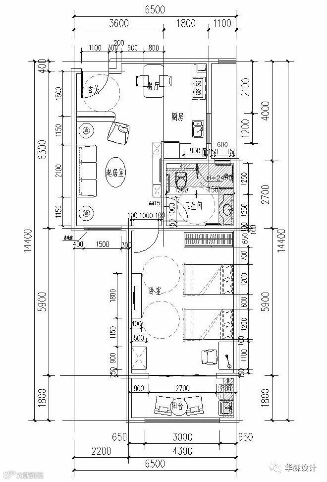
二期户型优化:


小户型建筑面积93.7㎡

大户型(建筑面积115.13㎡)
二期户型细节设计:
考虑到使用频率的差别,建议保证餐厅空间,入户门洞1100。

餐厅净宽:两侧座椅空间900,餐桌800,餐厅净宽2600。

厨房
卧室
门垛最小100,尽可能150留足门框位置,确保丁字墙门套施工方便。家具布置预留南向窗帘位置150空间,卧室阳台无高差设计。
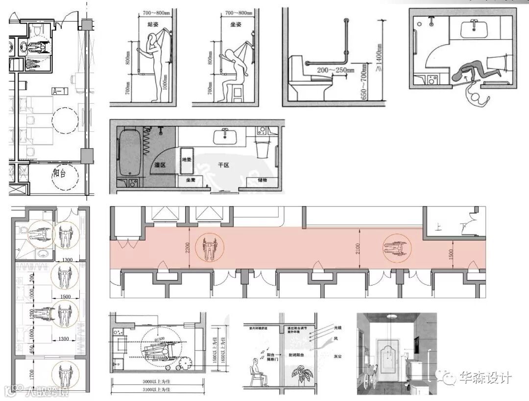
大堂功能模块化、标准化

公共区域的扶手

小面板

走道公共休息区
章晓宇结合项目特点,深入浅出地为大家介绍了项目设计过程,并总结了居家养老型社区设计应注意的问题:私密性、社会交往、可选择性、可识别性、安全性、可达性与易操作性、适度的刺激性、适度的声光环境、环境的熟悉性和连续性、细部尺度适宜。



项目荣获“2018中国养老社区十大品牌”

项目荣获“2018中国医养结合十大品牌”
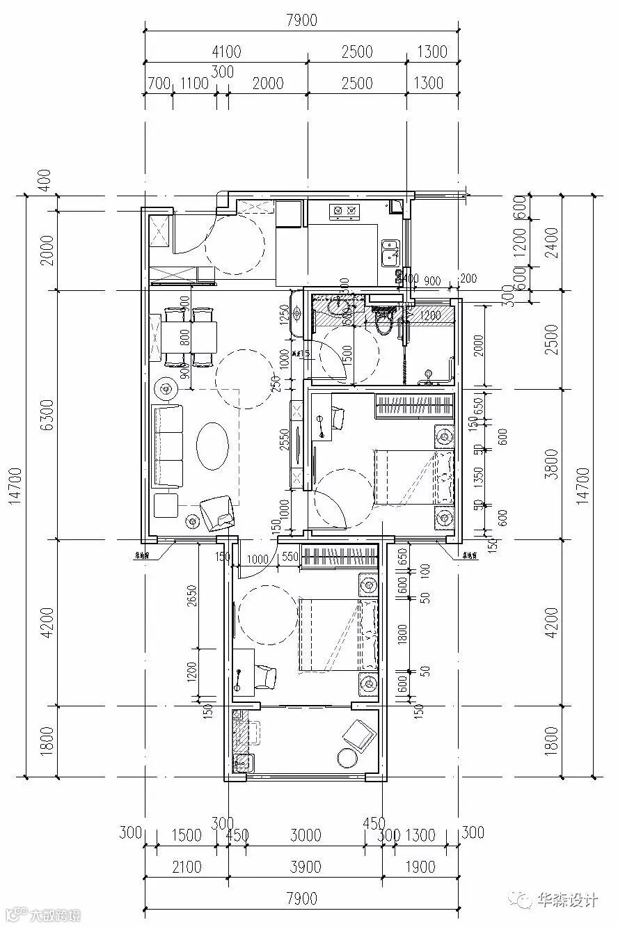
王瑜《前海人寿·幸福之家养老院》
——

我国正在进入人口老龄化的快速发展阶段,同时也迎来了“独子养老”时代。王瑜分析了现阶段我国的养老模式,道出了老年公寓在未来发展的重要性。
总平面图
设计团队应该如何加强项目的示范效应?如何营造、完善内部多元的养老社区?如何提供针对全龄化的产品?王瑜通过分析前海人寿幸福之家项目的设计过程,回答了这些问题。

功能分析

景观分析

适老化设计分析




项目实景图
————————
十九大后,健康中国战略已经全面展开,对建筑设计等行业提出了更高的要求。作为建筑师,如何从自身的专业角度出发,去顺应国家对于养老工作进程的要求,发展居家、社区和互助式养老,在推进大健康产业的背景下发展养老建筑和养老事业,对新时代的医养产业有着重要的意义。华森公司将继续关注养老建筑的发展,并为此努力做出贡献。
往期精彩回顾
豪方天际花园和她的城市气质
机场边上的星航华府
深圳蛇口招商桃花园
惠州·佳兆业中心三期







