
初到项目用地,是一阵小雨过后,天空放晴,丰富的植被青翠欲滴,现场还能听到山泉流下的声音。脑子里冒出的第一个念头就是,最大限度地保持原生环境,架空建筑,创造与地形紧密结合、有多种可能性的校园空间。一起去的甲方负责设计的老总听到这一想法也欣然赞同。
深圳市桃源居中澳实验学校(原深圳清华实验学校)占地20万平方米,总建筑面积14.5万平方米,现在校生规模1.2万人,是深圳目前唯一的单一校区过万人的基础性教育学校。

△从学校西北角的最低点到东南角的最高点,高差有83米(摄影 曾天培)。
我们从2000年开始规划,之前已于2006年建成了三期。国际高中部是学校的四期,设计始于2016年,其位于东南角1.3万平米的用地是整个校区的最后一块。
从学校西北角的最低点到东南角的最高点,高差有83米,而四期用地内的高差就有52米。也就是说,四期占地不到校区7%的用地面积要消化整个校区60%以上的高差, 本身狭小的用地由于巨大变化的高差更加紧张。
另外,学校临近宝安机场,有航空限高限制。所以,这样一个本身容积率并不高的项目,由于来自各个方向的空间挤压,面对了城市高密度环境高容积率中小学校同样的问题。
如果项目内的教学楼和宿舍的建筑体量直接从用地的低点升起,势必有一大半体量给埋在“山”里,基本的功能都满足不了,更别说架空层了。
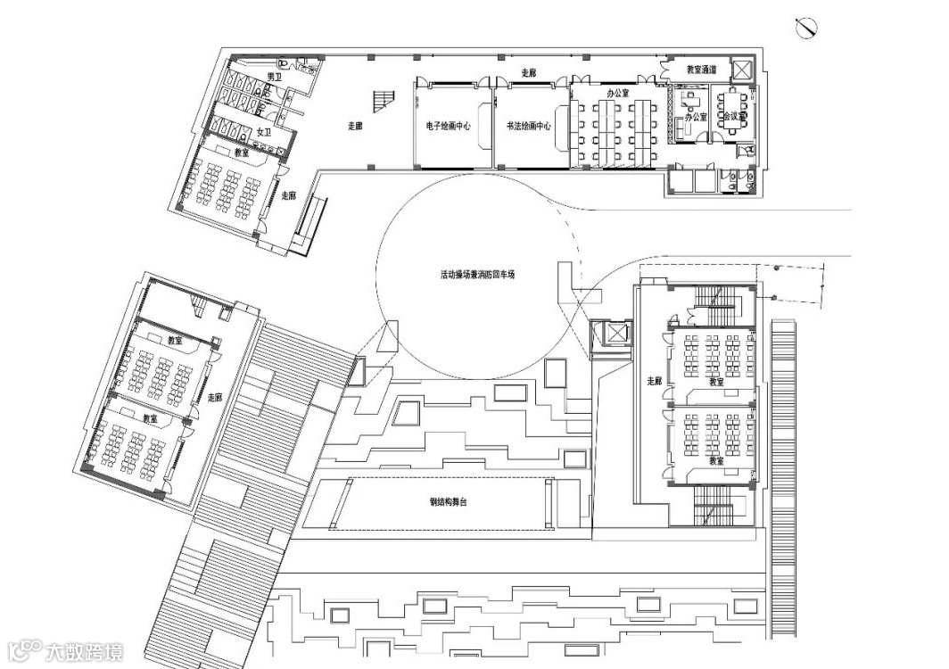
我们的策略是将建筑正负零零标高抬高两层,下方是合班教室、图书馆、食堂等公共功能空间,从南到北设置了一条消防车道,穿过宿舍和教学楼下面的架空层,使消防车能到达主要教学区活动场地,在此平台标高之上设置了六层的教学楼,其中第六层为教师办公室。
这样,建筑的体量被释放,并由此产生了开敞庭院、公共大台阶、表演舞台、架空层、退台、出挑等一系列不同标高但又自然连接、丰富多样的公共空间。
用地所在的平峦山脚,距西面的海边直线距离虽然有6公里,但由于建筑的整体抬升,和总平面的开口朝海的双U字型结构布局,使教学楼和宿舍顶上几层的视线可以越过西侧紧邻的三期宿舍,到达海湾。
△教学楼和宿舍:朝海的双U字型整体布局(摄影 曾天培)。
教学楼北翼那个朝西出挑9米的大悬挑可视为建筑在挣脱周边空间挤压,体量得到释放后,朝海的方向一个略为张扬的表情。为了这个两层出挑结构的下层保持其边梁高度与同层连续的线条一致,结构在上层做个两根高1.2米的反梁,以一个普通的结构形式达到了这种悬挑加悬挂的效果。
△教学楼北翼出挑9米的大悬挑,朝海的方向一个略为张扬的表情(摄影 李涟)。
△从教学楼和宿舍的高楼层可以望到西面的海湾,平台之上是山海之间的舞台(摄影 曾天培)。
唯一的遗憾是,由于一系列阴差阳错,从一开始就想把出挑结构底面做平的想法没有实现,最终效果没有宿舍楼的小悬挑底面干净利落。
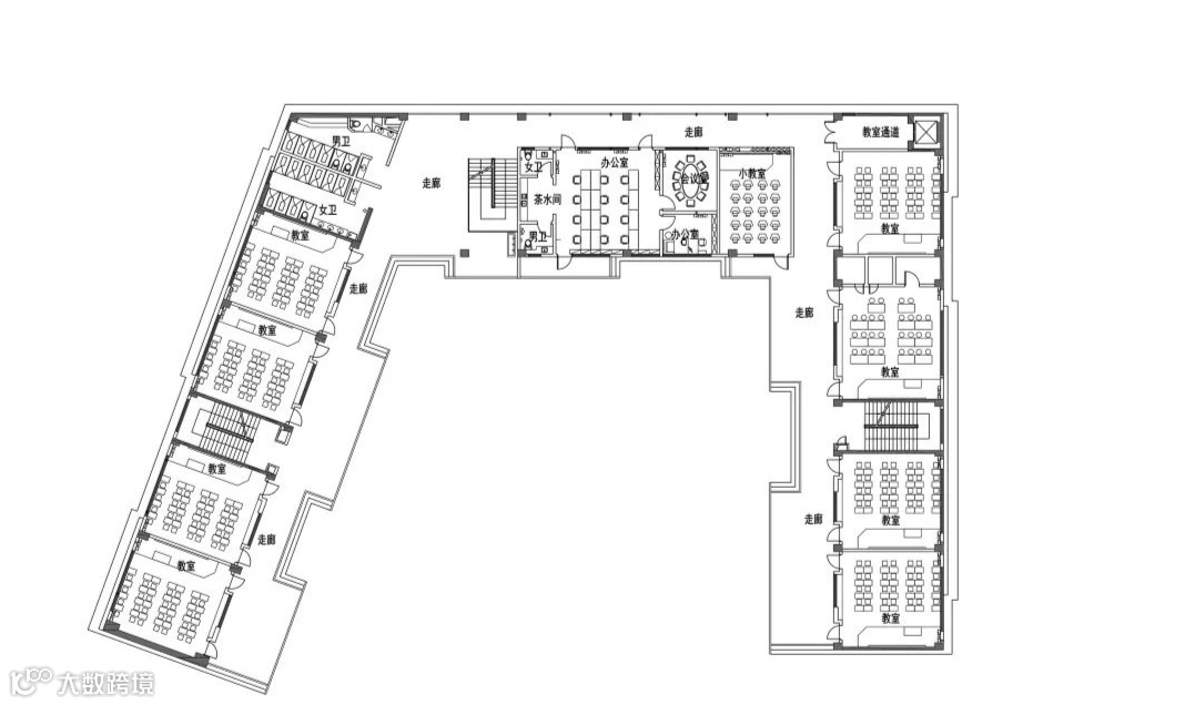
教学楼走廊的标准宽度为3米,并在此基础之上局部扩展到4.5米,上下错落布置,走廊外设花池,给同学和老师更多的活动和亲近自然的空间。
这种空间的扩展有的是偶然而得,入口大台阶原设计是教室下部的侧墙直落到底,施工过程中发现,原侧墙的位置有一块原始地形的岩石,表面已喷了水泥浆固化后准备封砌,在现场和甲方及施工单位商议后,干脆取消原设计的侧墙,将岩石表面浮石凿掉,直接裸露出原始的地质结构,平台延伸到岩石底部,扩展了活动空间,也为校园增加了一景。
放大的走廊、每层交通空间之外出挑的平台,退台空间形成的多层露台、阳台,位于教学楼中心的露天小剧场和舞台,主入口大台阶和建筑之间凸显原始地貌的岩石形成的放大空间,消防车道穿过宿舍楼形成的架空文化展廊,以及位于这些空间之间的那些模糊的“缝隙”,这些多样化空间的设定,让教学和宿舍的功能有更多拓展的可能,给同学们提供了在教室之外的“玩乐”场所,让空间具有更多的可能性。
即便是教学空间的到达,孩子们除了从出入口的大台阶进入以外,还可以从宿舍和教学楼的二层连廊、“书山有路”的庭院、位于建筑后面靠山一侧的漫步道,以及架空文化展廊等多种选择方式。
这种多样化空间的选择和设定以及同学们对空间的再创造,给课堂外的“玩”提供了更多可能性,于是,新的“学习”空间产生了。
项目名称:深圳市桃源居中澳实验学校四期(国际高中部)
方案团队:李涟 卫泽民 余霖 庄均才 林水泉 张静容 钟良
建筑:张晖 林少群 张菊芳 许雯 程莉
结构:曹伟良 周锋 刘通
给排水:周克晶 李仁兵 谢荣 姜冬冬 温丽娟
暖通:张伟 丁艳国 李百公
电气电讯:皇甫敏、马建涛、汤丽明
总图:万维