星河盛世名居位于惠州市惠阳区淡水下寮内环路西侧,周边交通便捷,淡水河和高尔夫公园近在咫尺,景观优势突出,旅游资源丰富。周边有多个社区在建,3公里生活圈内生活配套完善,市政配套齐全。

该项目方案设计旨在依托周边大量楼盘的人气和商业资源,顺应外部城市和自然环境,打造地块内部空中花园和景观步行系统,形成一个公园化的绿色生态、宜业宜居的活力社区。

01
总体规划布局
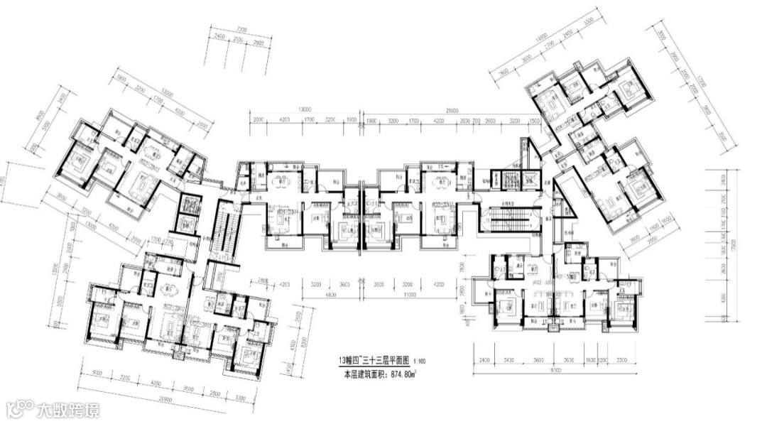
总体高层沿退线南面塔楼点式布局,北面为1T4和1T5的两拼排布,围合出中间300米×100米的完整庭院。

各户型在保证间距的前提下分别扭转一定角度,建立视线通廊。户户可享有近处的大庭院景观和远处的自然风光。北侧享有院景,南侧有体育公园用地景观和淡水河景观,大户型主要靠近南侧布置,机翼户型全部做到南北通透。小区一共由13栋楼,17个单元组成,归纳后为4种单元,5种户型。
项目周边楼盘正在建设中,商业氛围尚未形成,幼儿园设置在西南角独立用地,在保证日照要求下与住宅部分相对区隔,减少相互干扰。

地面停车主要设置在商铺沿街和公共配套用房沿街(197辆),幼儿园外侧有部分停车供上下学接送,其余停车位设置在地下一层及二层。
02
立面设计
延续星河传统立面风格,强调现代感、挺拔感、明快感。本期立面设计,增加沿街视角立面的特殊设计,使得每个视角色彩红黄交替出现,每栋塔楼都有独特的色彩搭配,增加黄色部分的比例,使整体效果更加明快。

营销中心的建筑立面设计,通过石材、百叶、玻璃幕墙的合理运用,打造社区形象展示面。
入户大门同样采用星河标准化的大门设计,增强社区统一感,和商铺一起打造风情街氛围。

03
景观设计

以“印象派园林”为设计概念,采用曲线硬质铺装、丰富的植物群落,主题性的具象雕塑等打造各主题园区氛围。

地块地下室整体抬高,东西两地块主要人行入口联通,在住区得到一个完整的空中花园,通过景观平台、景观步道、中庭花园、会所等休闲设施,立体化、公园化景观系统,并与南侧公园和体育用地相接,共同构成一个完备的景观体系。
04
户型设计

厅房方正实用、明厨明卫、动静洁污分区明确。在户型设计中充分挖掘景观面资源。在悠闲享受自然的同时,兼顾了安全性与私密性。

尽最大可能的保证南北通厅,满幅凸窗设计,最大限度增加室内空间,厅外视线开阔,不会有自身遮挡。
项目档案
项目名称:惠州星河盛世名居
项目地点:广东惠州
委托业主:惠州曦景园林绿化工程有限公司
竣工时间:2020年6月
方案/施工图团队:深圳华森建筑与工程设计顾问有限公司
方案:岳子清工作室
建筑:陆洲 周圣捷 郭锦标 张菊芳 周慧
结构:毛俊义 吕伟斌 陈源鑫
给排水:周克晶 李仁兵 姜东东 林瑾 周萍 洪玉康
暖通:李百公 钟玮 郑康鸿 赵庆 熊小平 吴善旭
电气电讯:高扬 马建涛 肖启权 于芳超 黄科龙
总图:王帆
项目总监:王海康
供稿:潘志达
编辑/排版:白国庆
