
庭院既然依附建筑而生,那其本身的各种元素自然也受建筑的影响。从规模、布局、风格、主题到植被、铺装、山石、水景,都有一定设计成分。庭院虽小,却可五行兼备。咫尺之间,若有千山万壑,也是可以通过设计手法实现的。
虽然更多时候,庭院是作为图底的留白部分存在,但希望通过本期的庭院专题,可以让设计师们重新审视庭院本身的魅力。
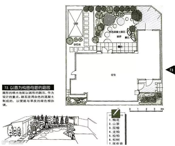
下面精选75款庭院设计图,欢迎各位朋友一起来讨论。
图纸百度云:https://pan.baidu.com/s/1TYoYxG9MgXe-VCAme_R5Bg
密码:i7tf 需自取











































































推荐阅读:
《墨尔本的乡村住宅》
《自家庭院设计方案》
想看到更多精致庭院?
扫码关注微信公众号:庭院造景
想要这要的庭院?
咨询请加微信:15380834510
热线:15380834510
联系人:孙先生

