作为年轻的结构工程师,
要做好传承的接力棒,
才能青出于蓝而胜于蓝
【受访嘉宾】
游健 深圳华森建筑与工程设计顾问有限公司广州/海南公司总经理
【采访团队】
《建筑结构》杂志社 团队
中建科技华南公司设计中心结构总工程师 张伟
传统设计和创新理念相互碰撞时,您会选择自己熟悉拿手的项目,还是会去接受新领域的挑战?
众所周知,土木工程是比较传统的一个行业,现在已经进入了新发展阶段,无论是业主方还是施工单位、建筑师,包括结构工程师在内,其实都会有一些新要求和新条件需求。在传统设计与创新方面,每做一个结构方案其实都会有多方案的对比。在做结构设计的过程中,首先肯定是会拿出“常规武器”,比如考虑采用常规结构体系、成熟的结构布置和普通钢筋混凝土材料的应用等;另外现在创新的理念不仅是体现在结构体系,还包括对新材料、新理念、数字技术等的应用,以及对绿色建筑、“低碳”的理解和应用,这些方面对于结构行业从业人员来讲,需要的专业知识储备量是越来越大的。这就要求我们不仅需要解决结构自身力学和结构概念问题,可能还会涉及材料、建造问题,甚至有必要了解所建项目所引起的社会效应等。在可持续发展的新时期,整个行业对结构工程师各方面的要求会越来越高。
作为年轻的结构工程师,我觉得创新一定是大家应该追求和推崇的设计方式,这也是促进从业人员自身技术提高和行业进步的一个主要因素。之前每个发展阶段,从早期的手算到电算,到现在各种弹塑性分析、先进算法和人工智能等,不论是建筑的样式还是需求,对结构工程师的挑战都越来越大,大到国家工程,小到地方民生项目,需要掌握的知识和技能应该是越来越多的。特别是现在,随着BIM、参数化设计等数字技术的迅猛发展,已经不单单是通过理念和传统工艺去建造,而是会借助更多的数字技术手段和跨界应用技术。从个人的角度来说,比较推荐用创新的理念去武装自己,这对美好建筑的实现和个人的技术进步发展都是很有益处的。其实一个建筑或者一个结构,当采用创新的理念做出来之后,取得的成就感是完全有别于采用传统方式实现的,那种欣喜是结构工程师的最大幸福感之一。
海口安华项目为海南省首例采用双钢板组合剪力墙结构的超高层建筑,高效的结构抗侧力体系较好地解决了高烈度抗震设防区的结构刚度和抗震性能需求,相比常规的钢筋混凝土结构,该体系塔楼核心筒墙体厚度减薄30%~40%,标准层平面有效使用率提高20%~30%。
我们都是社会发展过程中的传承人,如果我们每一个人都能够把上一代的优良传统和技术经验继承下来,同时通过我们自己的努力,又能把更多更好的技术创新和实践经验继续传承下去,更进一步到建筑结构领域的发展,作为年轻的结构工程师,做好传承的接力棒,我们才能青出于蓝而胜于蓝。
在专业领域上,您在个人的前期发展和现阶段所关注的问题侧重点有什么不同?哪些方面感触比较深?
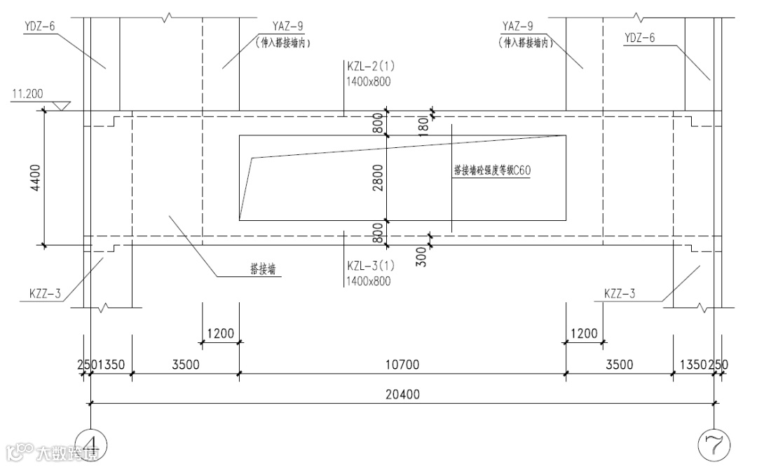
我2004年本科毕业于华东交通大学。刚毕业的时候关注更多的是怎么能够更快成长为一名合格的结构工程师,画出让“师傅满意”的图纸。当时计算机技术和结构计算程序的发展远远没有现在这么好,记得当时我们团队做一个高度为160米的框架-剪力墙超高层项目,存在一个大跨度的框支转换结构。当初也是通过这个项目让我对结构设计有了更深刻的认识,也掌握了一些新的技术,现在说起来这个故事还是蛮有趣的。这个项目当时是傅学怡大师指导我们进行结构设计和计算分析,项目存在一跨度为20.4米的转换结构,按照常规技术做一个大的转换梁或者转换桁架,就算是比较大的突破,并且当初还是采用传统的钢筋混凝土结构居多,应用钢结构还不多。傅总指导我们采用搭接墙转换的方式,非常巧妙地把这个大跨度转换结构采用合理高效的结构形式和比较小的结构断面顺利实现。
△搭接墙转换结构立面大样
△搭接墙转换结构计算模型(衷心感谢傅学怡大师的悉心指导)
通过这件事情,让我们感受到原来结构设计是这么有趣,并不像大家通常惯性认知的那样,结构工程师只是一个画图匠。当然图纸是结构工程师表达内心及思想的语言,图纸画得“漂亮”的项目做出来一般也不会太差。
所以在初入设计院时,也就是工作的第一个阶段,我觉得想成为一个合格的结构工程师,需要更多地从结构概念、计算分析能力、规范化制图、现场服务沟通等等方面进行统筹思考。第二个阶段,如何成为合格的结构专业负责人甚至是项目负责人的时候,就不能只专注于结构专业,而要关注整个项目涉及的方方面面和社会效益。一个项目就是一个系统工程,就像大家知道的那样,不能只站在一个专业的角度去谈建筑的好与坏,要从多方面综合判断。因为通俗点说,建筑工程其实是建设单位花费大量的人力、物力让建筑师和结构工程师等专业技术人员去表达、去创造空间的社会组织活动,设计方把业主方的构想与未来要使用的功能需求通过技术手段“描绘”呈现。在这个过程中,业主方花费的心血绝对不亚于设计方,建筑的落地和实现真正的创造还是依靠辛勤的建筑工人和劳动人民。如果从系统、社会的角度去理解项目的时候,很多更复杂的问题会摆在面前,这时作为结构工程师还是非常幸运的,因为我们只是在其中的一个环节努力,做好相应的技术性工作。
典型项目:
金山岭长城悦苑酒店,采用现代钢结构与传统木结构工艺实施建造,华森设计团队与各参建方精诚合作,从设计到土建完成仅用时6个月。作为国内第一家悦苑酒店,项目建成后有效地促进了项目周边村民的收入和生活水平,本项目荣获广东省优秀工程勘察设计一等奖。
南海文化中心项目,华森公司与美国贝氏建筑事务所联合设计,图书馆、美术馆、非遗馆、科技馆和综合馆“五馆合一”。结构空间和体系复杂,双曲钢结构屋面系统,球形空间采用吊挂结构并设置结构振控装置,存在平面超长、大跨度、大悬挑、大中庭、大转换等诸多结构设计特点和难点。
个人介绍
游健,2004年毕业于华东交通大学土木工程专业,现任深圳华森建筑与工程设计顾问有限公司广州/海南公司总经理,一级注册结构工程师,首届建筑结构行业杰出青年,广东省超限高层建筑工程抗震设防审查专家委员会委员。
毕业至今一直从事结构设计工作,主持或参与完成珠岛09号工程,广州洲头咀天誉半岛、岭南新世界云门、海口安华领秀城、金山岭长城悦苑酒店、厦门银聚祥邸、厦门邮轮中心客运联检大楼、南昌瑞颐大酒店等复杂和超限工程结构设计工作,在超限高层、钢结构、消能减震等方面具有一定的技术研究和创新应用,所参与项目获省市优秀工程勘察设计行业奖超过20项。
“结构有约”是由《建筑结构》杂志社组织发起的人物访谈栏目,将邀请工程建筑领域的从业者,针对业界关注的话题,结合自身成长经历、实践经验等,给出自己的独到见解,为从业者答疑解惑,为行业献计献策。
华森出品
深圳太子广场丨国家知识产权局专利局专利审查协作广东中心丨深圳南山区文化馆丨惠州家路公馆丨蕉门河水岸广场丨杭州大华春山明月丨深圳地铁科技大厦丨深圳万科壹海城三区(2期)丨深圳方大城更新改造项目丨昆明双铁韵城丨中国铁建南方总部基地丨深圳会展湾南岸广场丨深圳市桃源居中澳实验学校四期丨深圳建行大厦
↓↓↓点击“阅读原文。

