在上几期华森设计官微内容中,曾发布《华森公司桂林漓江园田居项目获好评》的喜讯。此后受到广大读者关注,并对该项目的设计过程、项目户型等方面尤感兴趣,希望获得更多相关资讯。
目前,已有35年发展历程的华森公司,与深圳乃至全国的改革发展大势同步前行,在全国各地塑造了众多优秀项目,为客户赢得效益,深受客户好评,华森公司感谢客户的信任与支持,也将铆足干劲、再接再厉、持续前行!
在此,为感谢朋友们对【园田居】的关心与支持,#项目进程大放送啦#:


园田居
位于桂林市东南,距离桂林市中心(三里店)约8公里,距离高铁南站约15KM、机场40KM、阳朔60KM。项目具有得天独厚的区位优势,地处漓江风景名胜区上游,在桂林东线旅游路线的起点位置。







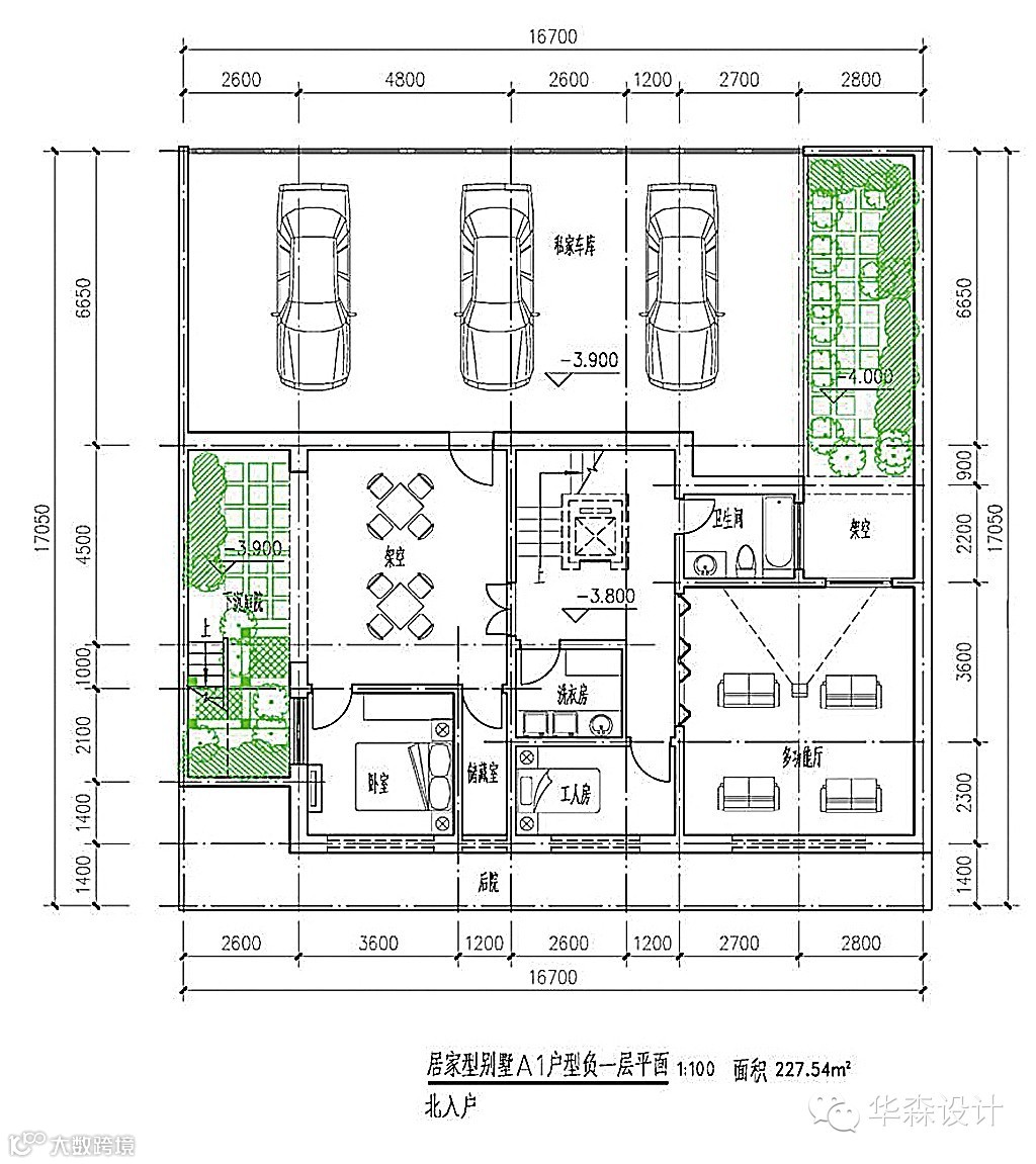
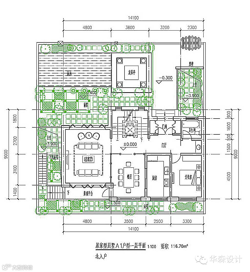
A1户型图
整栋地上建筑面积 272.20m2
整栋地下建筑面积 227.54m2
总建筑面积 499.74m2





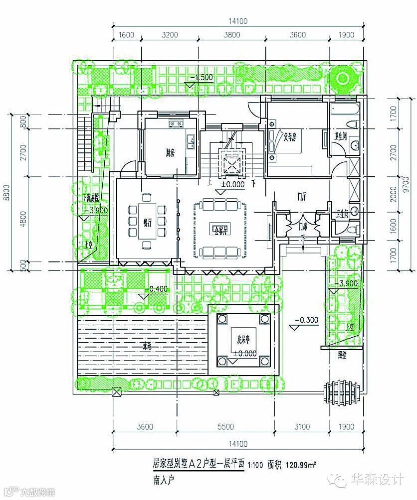
A2户型图
整栋地上建筑面积 275.90m2
整栋地下建筑面积 219.83m2
总建筑面积 495.73m2


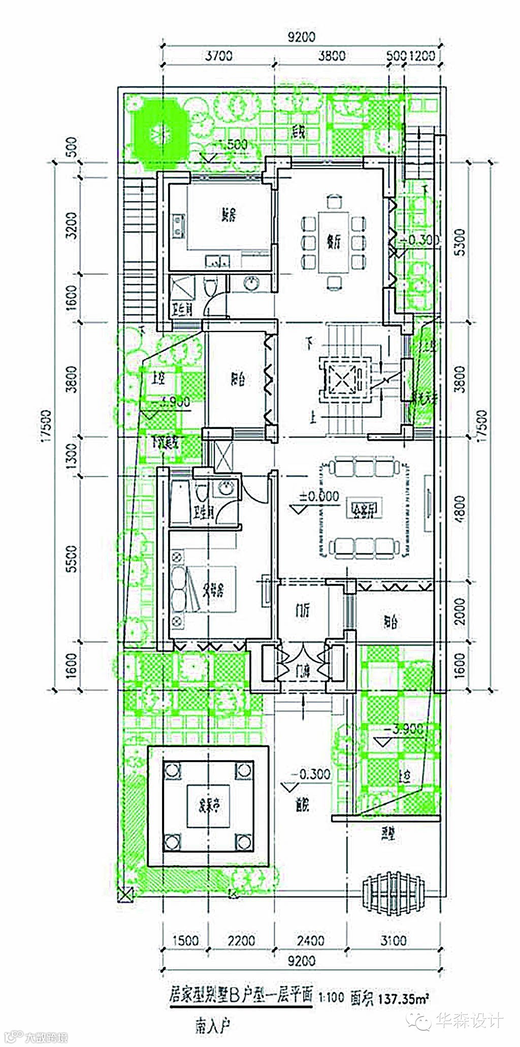
B户型图
整栋地上建筑面积 248.92m2
整栋地下建筑面积 174.60m2
总建筑面积 423.52m2


C1户型图
整栋地上建筑面积 270.44m2
整栋地下建筑面积 161.07m2
总建筑面积 431.51m2

C2户型图
整栋地上建筑面积 214.23m2
整栋地下建筑面积 161.07m2
总建筑面积 431.51m2


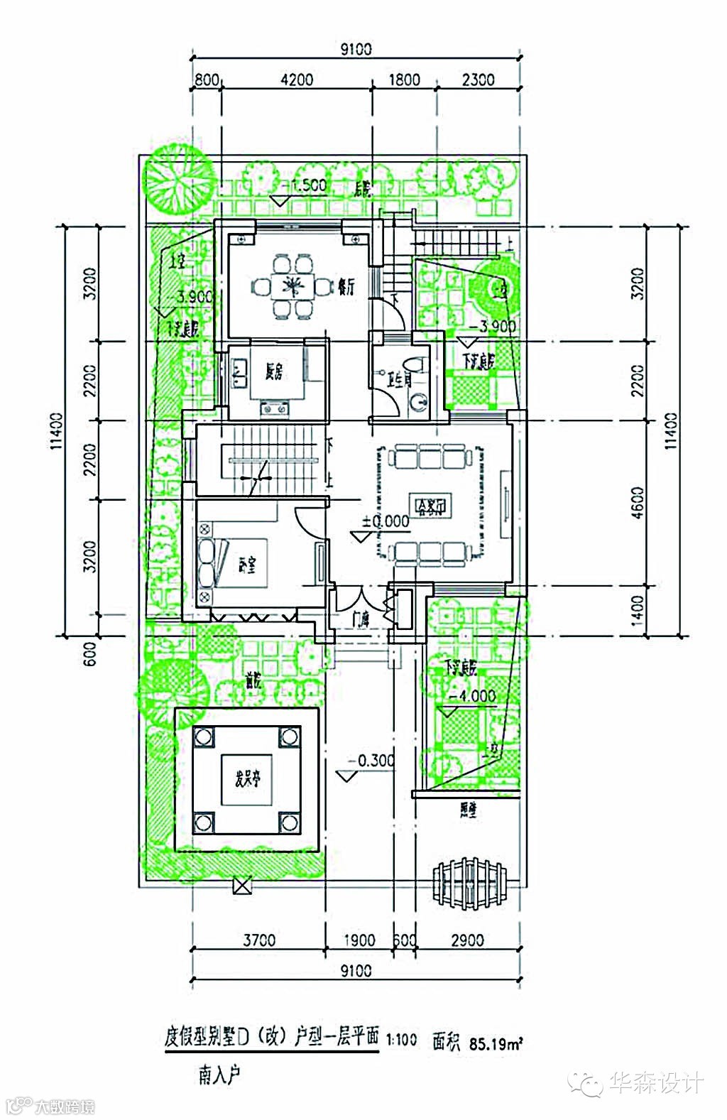
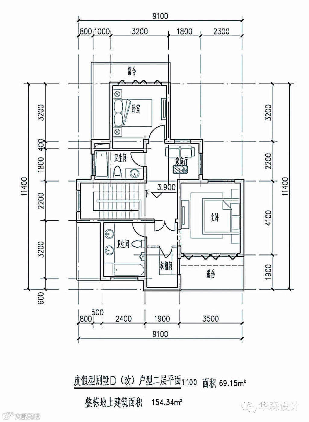
D1户型图
整栋地上建筑面积 154.34m2
整栋地下建筑面积 138.60m2
总建筑面积 292.94m2



D2户型图
整栋地上建筑面积 154.75m2
整栋地下建筑面积 138.60m2
总建筑面积 293.35m2


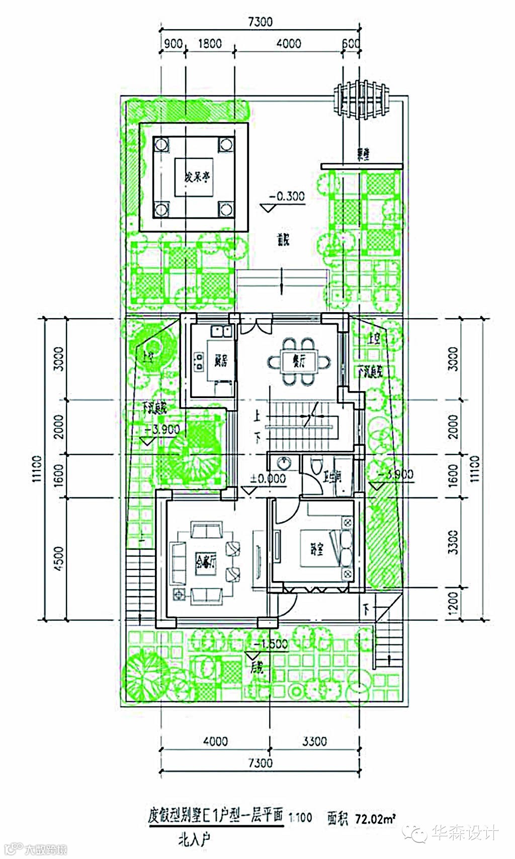
E1户型图
整栋地上建筑面积 126.30m2
整栋地下建筑面积 120.07m2
总建筑面积 246.37m2



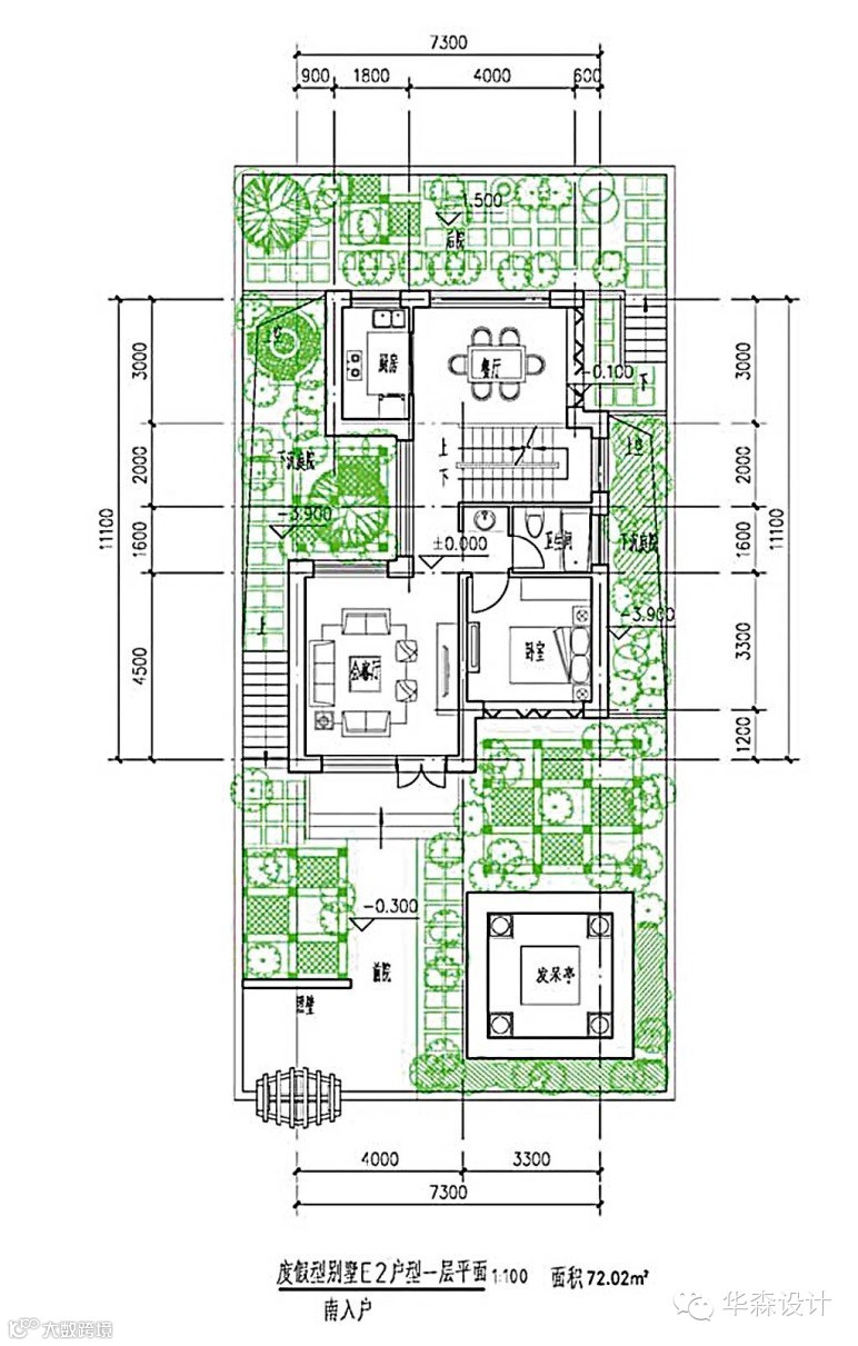
E2户型图
整栋地上建筑面积 126.30m2
整栋地下建筑面积 111.85m2
总建筑面积 238.15m2

E3、E4户型图
整栋地上建筑面积 147.60m2
整栋地下建筑面积 120.07m2
总建筑面积 267.67m2




