近期,深圳市建筑产业化协会举办了2021年度先进表彰大会,华森公司设计的深耕村项目被评为2021年度深圳市装配式建筑示范工程;项目主要设计师邹嘉桐获“2021年度深圳市建筑产业化行业先进个人 · 优秀装配式建筑设计师”称号
深耕村项目
深 汕 特 别 合 作 区 人 才 保 障 性 安 居 房
▲效果图
▲总平面图
01 特色亮点及主要技术应用
装配式建筑相关亮点、新技术探索创新
项目采用剪力墙结构体系,预制构件种类为预制凸窗、预制外墙、预制内隔墙、预制混凝土墙、预制楼梯,装配式模板采用铝合金模板,形成一套完整的装配体系。
▲预制构件图
在建筑设计阶段,室内设计提前介入,针对建筑设计中不合理的地方进行改造,两者结合起来,统一设计,例如预制飘窗窗檐高度及净宽要满足室内空间要求,空调摆放位置要求及排水位置要求,预制内隔墙满足机电专业线盒及管线预留预埋要求,包括结合机电专业预留管道等要满足内装设计要求;建筑结构等构件加工时管线、线盒按装修图精确预埋、安装到位,确保建筑、机电、装修一次成活。
▲室内设计图
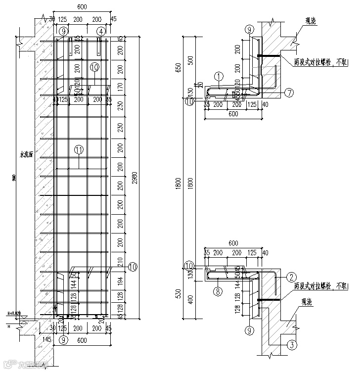
结构分析设计阶段,根据预制构件与主体结构的连接方式,进行了预制凸窗上挂板与现浇梁叠合为一个整体,施工图设计时在原现浇结构边梁放大系数基础增加0.2考虑计算。现浇非承重外墙对结构刚度影响也已在模型计算时考虑,采用包络设计。
▲结构凸窗链接图
设计阶段BIM模型基于建筑与结构原始设计数据,综合考虑装配式建筑的特点,BIM应用从项目装配式方案策划到竣工验收全程贯穿,在建造过程中结合项目情况综合应用BIM信息化技术,辅助项目工程管理和预制构件生产装配顺利进行。通过集合相关产业资源完成的从策划、设计、制造、施工到维护的全过程体系平台。
▲BIM模型展示
02 管理模式创新
项目管理模式创新、突出的质量管理措施
① 合理应用BIM技术实施项目管理:在进行施工过程中装配建筑可能会出现一定的施工质量问题,如果问题没有进行及时处理时,可能会增加建筑使用的安全隐患,而BIM技术的应用可以转变这些问题出现的局限。BIM技术拥有可视化、情景化的特点,能够对施工过程进行可视化模拟,对未施工之前工作分析在施工过程中可能出现的问题,进而采取相关的技术措施进行规避。
▲BIM流程
② 加强装配式混凝土建筑技术管理:装配式建筑在施工过程中最为重要的是如何保障构件之间的连接质量,如果构件施工过程中没有做到紧密的连接就会出现装配式建筑不稳定现象,影响建筑的抗震能力。因此在进行实际的施工过程中应当对不同构件之间连接的质量进行分析,保证连接的紧密性。在进行施工之前可以对施工人员实施技术交底,交底施工人员如何正确安装构件,保证构件安装质量。
▲标准层平面图
③ 加强装配式混凝土建筑安全管理:在进行安全管理时,应当完善安全管理体系,制定合理的安全管理计划,要求安全管理人员定期对现场施工过程中的吊装、安装、固定等进行检查,把握各个环节的安全性。
▲施工现场
④ 积极应用精细化管理模式实施建筑管理。利用程序化手段、数据化技术及标准化要求。对施工过程中不同组织单元进行精细管理,使不同单元可以持续以相互配合、自我完善的状态完成建筑施工。
03 示范效益
项目管理模式创新、突出的质量管理措施
项目装配式构件深化设计时选取凸窗、楼梯、阳台隔墙、楼梯隔墙、预制隔墙板作为应用部位,预制率达15.4%,装配率达52.69%。与传统施工工艺相比,深耕村工程采用装配式构件的施工工艺带来的优势主要体现为:
① 凸窗、楼梯、阳台隔墙、楼梯隔墙、预制隔墙板,项目通过装配式、混凝土铝膜协同深化及过程质量严控,现场所有装配式构件均达到免抹灰标准,深耕村工程单层住宅内墙面积约1100平方米,外墙面积约550平方米,按20mm厚的抹灰砂浆计算,13栋塔楼标准层可节约14000立方米抹灰砂浆;
② 室内隔墙采用轻型混凝土隔墙板,经对比分析采用加气块砌筑项目将出现亏损,在设计阶段内隔墙直接按轻型混凝土隔墙进行设计,不仅可保证项目收益,且施工速度快,单层劳动力可比加气块节约50%左右;
③ 凸窗及阳台隔墙构件尺寸误差较小,安装定位准确,外立面平整顺直。
装配式设计团队主要人员
练贤荣、朱婷、项兵、邹嘉桐
主体设计团队
华森广州分公司
个人荣誉
优 秀 装 配 式 建 筑 设 计 师
- 邹嘉桐-
荣获“2021年度深圳市建筑产业化行业先进个人 · 优秀装配式建筑设计师”称号。
曾担任过多个项目的装配式负责人,熟悉装配式项目全流程。胜任从方案设计、计算书与实施方案编写、装配式上会、申报到后期构件深化等一系列工作,熟练操作相关BIM软件。
代表业绩:
• 玫瑰园住宅项目
• 深圳前海泰康国际医院项目
END
供稿:装配式工程中心
图文整理:白国庆
深圳太子广场丨国家知识产权局专利局专利审查协作广东中心丨深圳南山区文化馆丨惠州家路公馆丨蕉门河水岸广场丨杭州大华春山明月丨深圳地铁科技大厦丨深圳万科壹海城三区(2期)丨深圳方大城更新改造项目丨昆明双铁韵城丨中国铁建南方总部基地丨深圳会展湾南岸广场丨深圳市桃源居中澳实验学校四期丨深圳建行大厦 丨深圳市第二十二高级中学
八大优势板块
超高层|商业综合体|住宅社区|酒店文旅
办公楼|医疗健康 |产业园区|文体教育
八项服务模式
建筑设计与设计总包|城市设计与景观设计
装配式建筑技术应用|联合EPC|商业策划
审图与特色咨询|绿色正向设计|BIM技术应用
长按二维码关注我们:
▼
建筑美好 设计生活

